Prodej rodinného domu k rekonstrukci se stavebním povolením - Čechyně u Rousínova
Nabízíme k prodeji rodinný dům určený k rekonstrukci v klidné části obce Čechyně u Rousínova, okres Vyškov.
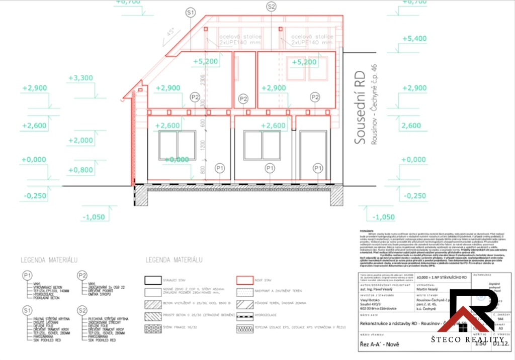
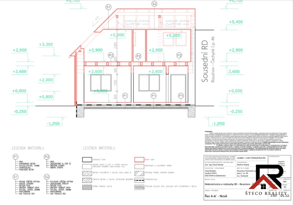
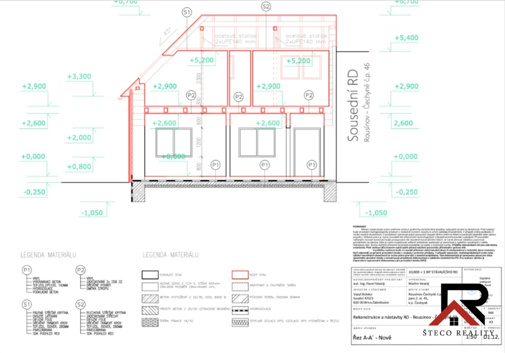
Nemovitost je připravená na stavební úpravy, stavební povolení k dané úpravě je již zažádáno na stavebním úřadě.
Součástí prodeje je stavební dokumentace na moderní rodinný dům 4+1 se dvěmi koupelnami. Součástí projektu je také napojení na obecní vodovod a kanalizaci. Součástí projektu je také zřízení dvou parkovacích míst na vlastním pozemku.
V domě je již částečně výměna elektroinstalace, součástí prodeje je také materiál určený na budoucí fasádu. Dle projektové dokumentace se rozpočet na dělání domu pohybu v rozmezí 2,2 až 2,5 milionu korun v závislosti na materiálech budoucího majitele. K rekonstrukci je možné využít dotaci, kterou vám rádi pomůžeme vyřídit.
V případě zájmu nás neváhejte kontaktovat pro bližší informace či prohlídku.
Pomocí naší hypoteční kalkulačky si můžete udělat orientační představu o výši měsíčních splátek hypotéky. O vše ostatní se pak postaráme my ve spolupráci s našimi obchodními partnery.
14 778 Kč
* Odhadovaná měsíční splátka vychází z výše úvěru Kč s pevnou úrokovou sazbou % po celou dobu trvání úvěru.
Uživatel serveru RealityMIX.cz (dále jen „Server“) dostupného na internetové adrese (URL) https://www.realitymix.cz, který provozuje společnost DALTEN media s.r.o., se sídlem Na Harfě 916/9a, Praha 9, 190 00, IČO: 271 35 306 (dále jen „Správce“) jako provozovateli tohoto Serveru uděluje svůj výslovný souhlas v souladu s ustanovením § 5 zákona č. 101/2000 Sb. O ochraně osobních údajů a o změně některých zákonů, v platném znění (dále jen „zákon o ochraně osobních údajů“), se zpracováním uživatelem poskytnutých osobních údajů a dalších dat.
Uživatel poskytuje Správci osobní údaje v rozsahu: jméno, příjmení, e-mailová adresa, telefonický kontakt a další data, a to z důvodu projeveného zájmu o nemovitost, kde prostřednictvím služby Serveru Správce osloví Uživatel inzerenta uvedeného v detailu
nemovitosti - Šteco reality s.r.o. (IČ 23193018) se zájmem o jeho služby.
Uživatel tyto osobní údaje poskytuje dobrovolně a bere na vědomí, že součástí služeb Správce, které Správce Uživateli poskytuje, je vyhledání všech Uživateli vyhovujících (dle parametrů - cena, typ nemovitosti, lokalita atd.) nemovitostí. Správce za tímto účelem provozuje aplikace Hlídací pes a newsletter. Tyto služby je možné z každého zaslaného emailu odhlásit. Souhlas se zpracováním osobních údajů Uživatel poskytuje Správci na dobu neurčitou s tím, že svůj udělený souhlas může Uživatel kdykoliv na drese správce info@realitymix.cz odvolat. Správce garantuje Uživateli i další práva uvedené v ustanovení §11 a §21 zákoba č. 101/200 Sb. Ve znění pozdějších předpisů.
Více informací o zpracování údajů získáte zde (realitymix.cz/zasady-ochrany-osobnich-udaju)