Realitní kancelář ALLE reality&development s.r.o. Vám v exkluzivním
zastoupení deveklopera nabízí projekt nízkoenergetických samostatně stojících rodinných
domů v Olomouci. Jedná se o ucelený komplex osmi samostatně stojících domů
o dispozici 4+kk, nebo 5+kk s garáží. Domy jsou zděné, dvoupodlažní s možností mnoha
klientských změn a nadstandardních prvků.
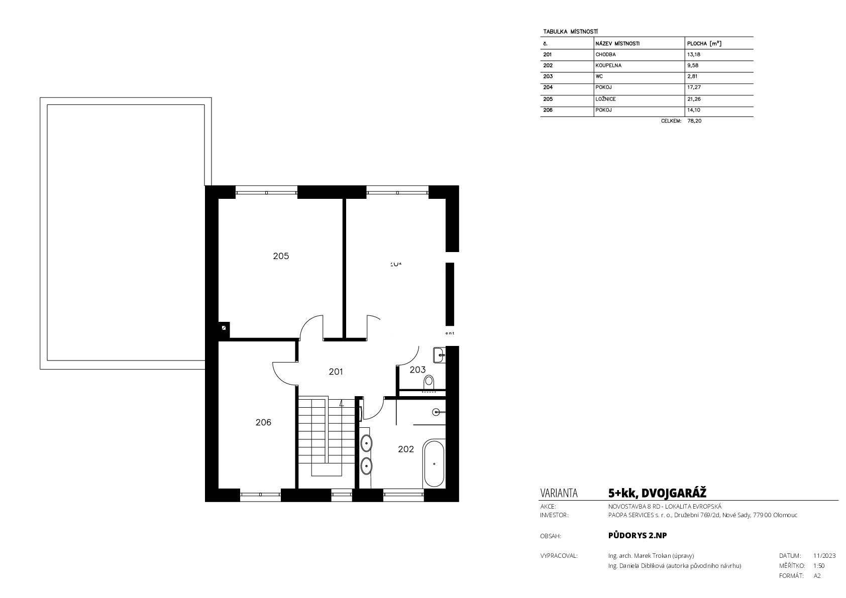
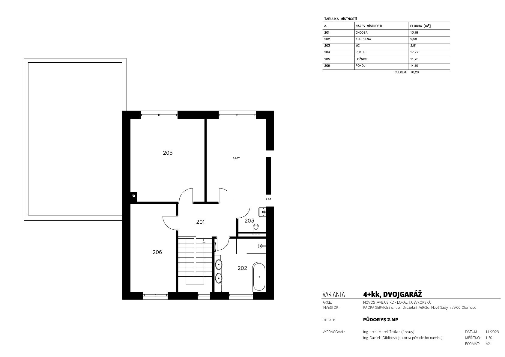
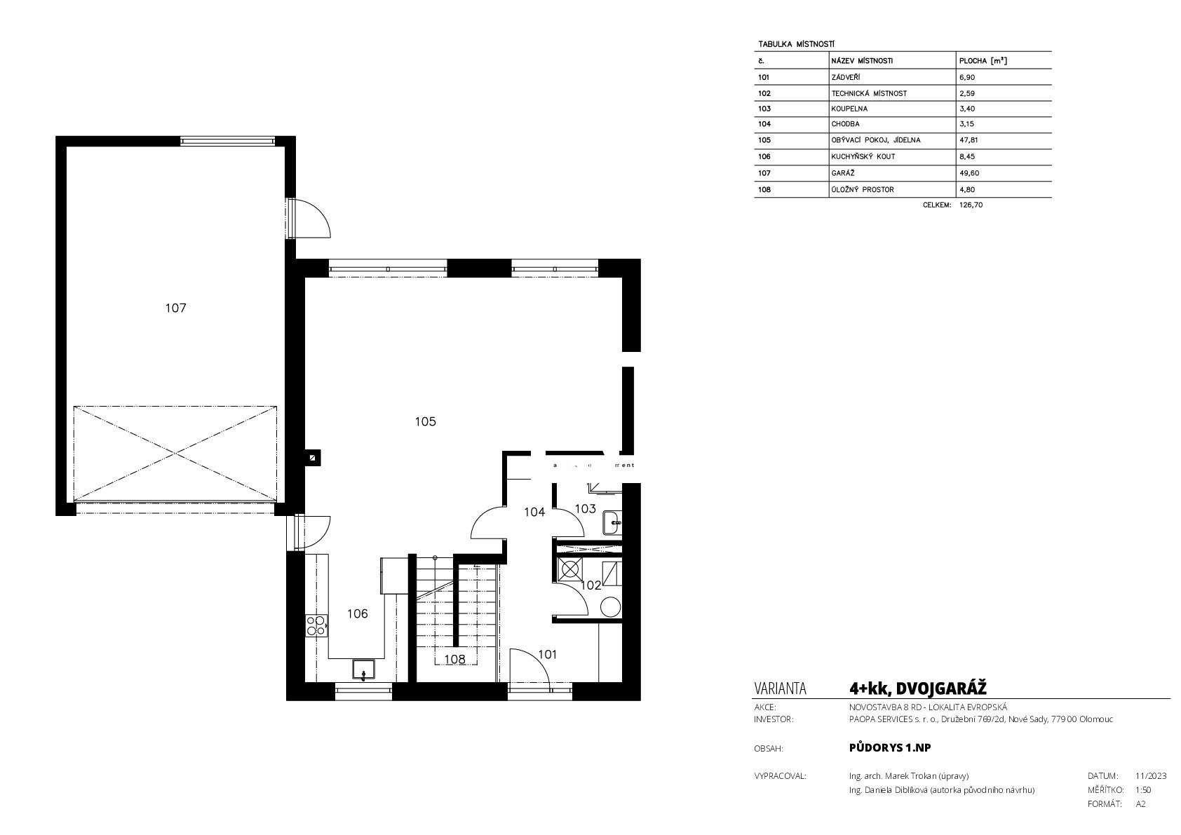
RD 2 o dispozici 4+kk/5+kk má užitnou plochu 205 m2 a pozemek 440 m2. Dominantou
přízemí je velkorysý obytný prostor s jídelnou, prosvětlený velkoformátovými
okny, se vstupem na terasu a zahradu. V přízemí se dále nachází jeden pokoj
(pracovna/ložnice) s výměrou 13 m2, technická místnost, koupelna se
sprchovým koutem a toaletou. V patře se pak nachází tři ložnice s
nadstandardními výměrami a prostorná koupelna s vanou, sprchovým koutem,
dvou umyvadlem + samostatné WC. Garáž o výměře 48 m2 má přístup i na
zahradu. Pohodlně zde zaparkujete dvě auta, díky nadstandardní délce garáže zůstává
dostatek uložného prostoru na zahradní techniku, kola a jiné sportovní vybavení.
RD 2 je k nastěhování již v roce 2026.
Projekt rodinných domů je realizovaný v městské části Olomouc – Holice.
Jedná se o klidnou lokalitu poblíž širšího centra města. Lokalita je
oblíbená především pro klidné rodinné bydlení v moderní zástavbě, se
skvělou dopravní obslužností a občanskou vybaveností. V blízkosti projektu
najdete odpočinkovou zónu rybník Amerika. Milovníci přírody jsou za několik
minut v Holickém lese. Poloha lokality zajišťuje vynikající dopravní
dostupnost do centra Olomouce, ale i na dálniční koridory.
Domy splňují veškeré požadavky moderního, komfortního a kvalitního bydlení.
Důraz je kladen na kvalitu materiálů a jednotlivých prvků. Nároční klienti
jistě docení možnost a variabilitu klientských změn. V rámci projektu je
možné žádat o dotaci na pasivní dům s PENB A.
Klient hradí nad rámec kupní ceny poplatek za právní a administrativní servis.
Pomocí naší hypoteční kalkulačky si můžete udělat orientační představu o výši měsíčních splátek hypotéky. O vše ostatní se pak postaráme my ve spolupráci s našimi obchodními partnery.
60 690 Kč
* Odhadovaná měsíční splátka vychází z výše úvěru Kč s pevnou úrokovou sazbou % po celou dobu trvání úvěru.
Uživatel serveru RealityMIX.cz (dále jen „Server“) dostupného na internetové adrese (URL) https://www.realitymix.cz, který provozuje společnost DALTEN media s.r.o., se sídlem Na Harfě 916/9a, Praha 9, 190 00, IČO: 271 35 306 (dále jen „Správce“) jako provozovateli tohoto Serveru uděluje svůj výslovný souhlas v souladu s ustanovením § 5 zákona č. 101/2000 Sb. O ochraně osobních údajů a o změně některých zákonů, v platném znění (dále jen „zákon o ochraně osobních údajů“), se zpracováním uživatelem poskytnutých osobních údajů a dalších dat.
Uživatel poskytuje Správci osobní údaje v rozsahu: jméno, příjmení, e-mailová adresa, telefonický kontakt a další data, a to z důvodu projeveného zájmu o nemovitost, kde prostřednictvím služby Serveru Správce osloví Uživatel inzerenta uvedeného v detailu
nemovitosti - ALLE reality&development s.r.o. (IČ 08716986) se zájmem o jeho služby.
Uživatel tyto osobní údaje poskytuje dobrovolně a bere na vědomí, že součástí služeb Správce, které Správce Uživateli poskytuje, je vyhledání všech Uživateli vyhovujících (dle parametrů - cena, typ nemovitosti, lokalita atd.) nemovitostí. Správce za tímto účelem provozuje aplikace Hlídací pes a newsletter. Tyto služby je možné z každého zaslaného emailu odhlásit. Souhlas se zpracováním osobních údajů Uživatel poskytuje Správci na dobu neurčitou s tím, že svůj udělený souhlas může Uživatel kdykoliv na drese správce info@realitymix.cz odvolat. Správce garantuje Uživateli i další práva uvedené v ustanovení §11 a §21 zákoba č. 101/200 Sb. Ve znění pozdějších předpisů.
Více informací o zpracování údajů získáte zde (realitymix.cz/zasady-ochrany-osobnich-udaju)