Ve výhradním zastoupení majitele Vám realitní kancelář ALLE reality&development s.r.o. nabízí pronájem bytu v příjemné a klidné lokalitě města Olomouce na Loudově ulici.
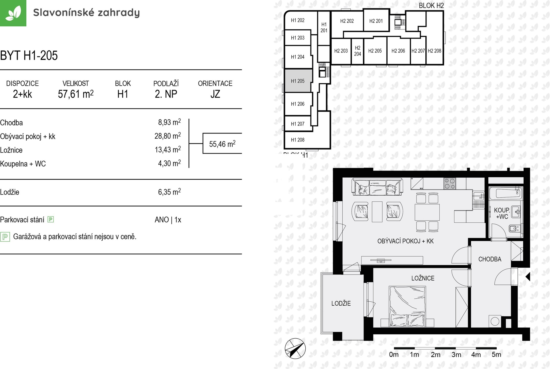
Úplně nový byt H1-205 o dispozici 2+kk má podlahovou plochu 57,61m², balkon o velikosti 6,35 m² a nachází se ve 2NP bytového domu s nízkým počtem bytových jednotek.
Vysoký komfort bydlení je zajištěn moderním standardním vybavením: podlahové vytápění po celé ploše jednotek, obložkové zárubně, vinylové podlahy, keramické obklady. Kuchyň je plně vybavená ledničkou, mrazákem, troubou a varnou deskou s digestoří. V ložnici se nachází úložná skříň a postel s matrací a v koupelně si můžete dopřát odpočinek ve vaně.
Součástí bytu je jedno garážové stání a komora.
Velkou předností lokality je dostatek zeleně, odpočinková zóna kolem přírodního rybníku Hamrys, cyklistická stezka, to vše pro čas odpočinku. Skvělá občanská vybavenost, vynikající dostupnost MHD včetně nově prodloužené tramvajové tratě, a bezproblémový výjezd na dálnici naopak usnadní pracovní část dne.
Doporučujeme prohlídku s makléřem.
Cena:
19 500 Kč / (za měsíc)
Poznámka:
+ 3.500,- Kč služby, + 39.000,- Kč jistota
Datum k nastěhování:
19.12.2025
Dispozice/podlahová plocha:
2+kk/55 m²
Číslo zakázky:
REALITYMIX-00908
Podrobné informace
Bezbariérový byt:ano
Dispozice bytu:2+kk
Číslo podlaží v domě:2
Počet podlaží objektu:5
Celková podlahová plocha:55 m²
Druh objektu:cihlová
Stav objektu:projekt
Vlastnictví:osobní
Balkon:6 m²
Umístění objektu:klidná část obce
Doprava:vlak, dálnice, silnice, MHD, autobus
Elektřina:Elektro - 230 V
Voda:Voda - dálkový vodovod
Odpad:Kanalizace
Energetická náročnost budovy:B - Velmi úsporná
Ukazatel energetické náročnosti budovy:143 kWh/m²
Energetický ukazatel podle vyhlášky:č. 78/2013 Sb.
Uživatel serveru RealityMIX.cz (dále jen „Server“) dostupného na internetové adrese (URL) https://www.realitymix.cz, který provozuje společnost DALTEN media s.r.o., se sídlem Na Harfě 916/9a, Praha 9, 190 00, IČO: 271 35 306 (dále jen „Správce“) jako provozovateli tohoto Serveru uděluje svůj výslovný souhlas v souladu s ustanovením § 5 zákona č. 101/2000 Sb. O ochraně osobních údajů a o změně některých zákonů, v platném znění (dále jen „zákon o ochraně osobních údajů“), se zpracováním uživatelem poskytnutých osobních údajů a dalších dat.
Uživatel poskytuje Správci osobní údaje v rozsahu: jméno, příjmení, e-mailová adresa, telefonický kontakt a další data, a to z důvodu projeveného zájmu o nemovitost, kde prostřednictvím služby Serveru Správce osloví Uživatel inzerenta uvedeného v detailu
nemovitosti - ALLE reality&development s.r.o. (IČ 08716986) se zájmem o jeho služby.
Uživatel tyto osobní údaje poskytuje dobrovolně a bere na vědomí, že součástí služeb Správce, které Správce Uživateli poskytuje, je vyhledání všech Uživateli vyhovujících (dle parametrů - cena, typ nemovitosti, lokalita atd.) nemovitostí. Správce za tímto účelem provozuje aplikace Hlídací pes a newsletter. Tyto služby je možné z každého zaslaného emailu odhlásit. Souhlas se zpracováním osobních údajů Uživatel poskytuje Správci na dobu neurčitou s tím, že svůj udělený souhlas může Uživatel kdykoliv na drese správce info@realitymix.cz odvolat. Správce garantuje Uživateli i další práva uvedené v ustanovení §11 a §21 zákoba č. 101/200 Sb. Ve znění pozdějších předpisů.
Více informací o zpracování údajů získáte zde (realitymix.cz/zasady-ochrany-osobnich-udaju)