Ne vždy se Vám naskytne možnost bydlet v takto ikonickém domě, který zná snad každý. Je totiž kulturní památkou. Ano, bydlet v takovém domě může mít jisté nevýhody, avšak pojďme se podívat na výhody.
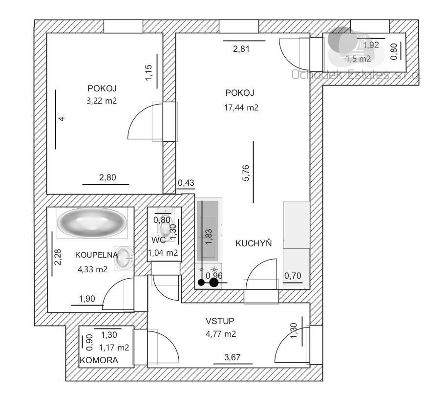
Byt o dispozici 2kk o výměře 42 m2 se nachází v šestém nadzemním podlaží bytového domu. První důležitou výhodou je výtah. Nebudete mít tedy problém se ke svému bytu pohodlně dostat. Je však nutno zmínit, že dům není bezbariérový. Byt se prodává v původním plně funkčním stavu. Ovšem rekonstrukce by mu jistě slušela. Otevírá se zde tedy možnost upustit uzdu fantazie nového majitele a přizpůsobit si byt dle svých představ.
Po vstupu do bytu se ocitnete v malé, ale praktické chodbě. Z chodby již vstupujete do hlavní obytné místnosti, ve které vás ihned zaujme velkorysý kuchyňský kout a zároveň dostatek místa na vytvoření vaší odpočinkové zóny. Hnedle dveře do komory, dveře do koupelny a na samostatnou toaletu. Důležitou místností je neprůchozí ložnice. A i když byt není nafukovací, nachází se v něm malá místnůstka, která čeká na uplatnění nového majitele, třeba k vytvoření “zašívárny”.
Nachází se v lokalitě Ostrava – Poruba. Je to velmi příjemná lokalita disponující nejen spousty relaxačních míst v zeleni pro trávení volného času, ale hlavně veškerou občanskou vybaveností.
Pozn: Uvedená cena je BEZ zprostředkovatelského poplatku ve výší 150.000 Kč vč DPH pro RK. Financování pomůžeme zajistit. Energetický štítek prozatím uvádíme G, SVJ bez úvěru.
Pomocí naší hypoteční kalkulačky si můžete udělat orientační představu o výši měsíčních splátek hypotéky. O vše ostatní se pak postaráme my ve spolupráci s našimi obchodními partnery.
12 915 Kč
* Odhadovaná měsíční splátka vychází z výše úvěru Kč s pevnou úrokovou sazbou % po celou dobu trvání úvěru.
Prodáváte nemovitost a potřebujete zjistit její reálnou hodnotu?
Uživatel serveru RealityMIX.cz (dále jen „Server“) dostupného na internetové adrese (URL) https://www.realitymix.cz, který provozuje společnost DALTEN media s.r.o., se sídlem Na Harfě 916/9a, Praha 9, 190 00, IČO: 271 35 306 (dále jen „Správce“) jako provozovateli tohoto Serveru uděluje svůj výslovný souhlas v souladu s ustanovením § 5 zákona č. 101/2000 Sb. O ochraně osobních údajů a o změně některých zákonů, v platném znění (dále jen „zákon o ochraně osobních údajů“), se zpracováním uživatelem poskytnutých osobních údajů a dalších dat.
Uživatel poskytuje Správci osobní údaje v rozsahu: jméno, příjmení, e-mailová adresa, telefonický kontakt a další data, a to z důvodu projeveného zájmu o nemovitost, kde prostřednictvím služby Serveru Správce osloví Uživatel inzerenta uvedeného v detailu
nemovitosti - Ochodek Estates s.r.o. (IČ 19934661) se zájmem o jeho služby.
Uživatel tyto osobní údaje poskytuje dobrovolně a bere na vědomí, že součástí služeb Správce, které Správce Uživateli poskytuje, je vyhledání všech Uživateli vyhovujících (dle parametrů - cena, typ nemovitosti, lokalita atd.) nemovitostí. Správce za tímto účelem provozuje aplikace Hlídací pes a newsletter. Tyto služby je možné z každého zaslaného emailu odhlásit. Souhlas se zpracováním osobních údajů Uživatel poskytuje Správci na dobu neurčitou s tím, že svůj udělený souhlas může Uživatel kdykoliv na drese správce info@realitymix.cz odvolat. Správce garantuje Uživateli i další práva uvedené v ustanovení §11 a §21 zákoba č. 101/200 Sb. Ve znění pozdějších předpisů.
Více informací o zpracování údajů získáte zde (realitymix.cz/zasady-ochrany-osobnich-udaju)