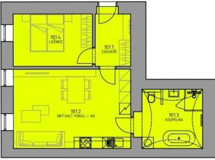
Nabízím Vám ke koupi byt o dispozici 2+kk a výměře 42 m² s lodžií, na adrese Balcarova 2241/7, Moravská Ostrava.
Tato část města prochází v posledních letech zásadní proměnou. Jen v okruhu cca 500 metrů byly během posledních 5 let dokončeny nové rezidenční projekty a další jsou ve výstavbě či ve fázi přípravy.
Z původně industriální lokality s dělnickou historií vzniká moderní městská čtvrť s investičním potenciálem. Tohle je přesně ten moment, kdy se kupuje budoucnost.
Byt se nachází v 6. nadzemním podlaží revitalizovaného domu s novým výtahem. Samotný byt prošel v průběhu posledních 15 let postupnou rekonstrukcí a je velmi udržovaný.
Nabízí:
obývací pokoj s kuchyňským koutem, samostatnou ložnici, lodžii s příjemným výhledem, koupelnu a WC, praktické dispoziční řešení bez zbytečných ztrát metrů!
Díky umístění ve vyšším podlaží je byt světlý a klidný.
Náklady a technický stav domu:
Fond oprav: 2 165 Kč / měsíc.
Z fondu se připravuje: výměna střešní krytiny a stupaček. Dům je průběžně udržován a plánuje další investice do zhodnocení nemovitosti
Parkování:
Volně dostupná parkovací místa bez omezení i parkování s městským povolením (MO Ostrava).
Pro koho je byt ideální?
Startovací bydlení pro jednotlivce nebo pár
Investiční byt k dlouhodobému pronájmu
Příležitost vsadit na lokalitu s dynamickým růstem hodnoty
Shrnutí
Byt na Balcarově ulici představuje kombinaci:
dostupné dispozice, nízkého fondu oprav a především lokality, která má před sebou výrazný rozvojový potenciál.
Pokud hledáte nemovitost, která má dnes dostupnou cenu a zítra vyšší hodnotu, rád Vám byt osobně představím.
Bc. Roman Brettschneider
Certifikovaný makléř
Cena:
3 817 800 Kč
Poznámka:
Cena zahrnuje provizi RK, právní servis a veškeré poplatky spojené s převodem nemovitosti., včetně p
Pomocí naší hypoteční kalkulačky si můžete udělat orientační představu o výši měsíčních splátek hypotéky. O vše ostatní se pak postaráme my ve spolupráci s našimi obchodními partnery.
15 457 Kč
* Odhadovaná měsíční splátka vychází z výše úvěru Kč s pevnou úrokovou sazbou % po celou dobu trvání úvěru.
Prodáváte nemovitost a potřebujete zjistit její reálnou hodnotu?
Uživatel serveru RealityMIX.cz (dále jen „Server“) dostupného na internetové adrese (URL) https://www.realitymix.cz, který provozuje společnost DALTEN media s.r.o., se sídlem Na Harfě 916/9a, Praha 9, 190 00, IČO: 271 35 306 (dále jen „Správce“) jako provozovateli tohoto Serveru uděluje svůj výslovný souhlas v souladu s ustanovením § 5 zákona č. 101/2000 Sb. O ochraně osobních údajů a o změně některých zákonů, v platném znění (dále jen „zákon o ochraně osobních údajů“), se zpracováním uživatelem poskytnutých osobních údajů a dalších dat.
Uživatel poskytuje Správci osobní údaje v rozsahu: jméno, příjmení, e-mailová adresa, telefonický kontakt a další data, a to z důvodu projeveného zájmu o nemovitost, kde prostřednictvím služby Serveru Správce osloví Uživatel inzerenta uvedeného v detailu
nemovitosti - Realitní kancelář Brettschneider s.r.o. (IČ 09546898) se zájmem o jeho služby.
Uživatel tyto osobní údaje poskytuje dobrovolně a bere na vědomí, že součástí služeb Správce, které Správce Uživateli poskytuje, je vyhledání všech Uživateli vyhovujících (dle parametrů - cena, typ nemovitosti, lokalita atd.) nemovitostí. Správce za tímto účelem provozuje aplikace Hlídací pes a newsletter. Tyto služby je možné z každého zaslaného emailu odhlásit. Souhlas se zpracováním osobních údajů Uživatel poskytuje Správci na dobu neurčitou s tím, že svůj udělený souhlas může Uživatel kdykoliv na drese správce info@realitymix.cz odvolat. Správce garantuje Uživateli i další práva uvedené v ustanovení §11 a §21 zákoba č. 101/200 Sb. Ve znění pozdějších předpisů.
Více informací o zpracování údajů získáte zde (realitymix.cz/zasady-ochrany-osobnich-udaju)