Hledáte prostorné bydlení v Pardubicích?
Pak vás může zaujmout byt o dispozici 3+kk v ulici Gagarinova 387.
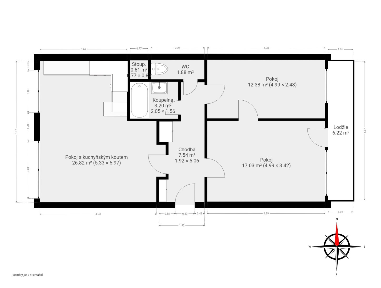
Bytová jednotka o celkové ploše 79,8 m² se nachází v 6. patře (7.NP) revitalizovaného panelového domu se dvěma výtahy. Byt, který prošel v roce 2006 rekonstrukcí, je velmi dobře dispozičně řešen – všechny místnosti jsou přístupné z chodby.
Po levé straně chodby se nachází obývací pokoj s kuchyní na míru, která je vybavena vestavnými spotřebiči (lednice s mrazákem,mikrovlnná trouba, myčka, elektrická trouba, plynová varná deska, digestoř). Po pravé straně chodby najdete dva pokoje, přičemž z jednoho z nich je vstup na prostornou lodžii o ploše 7 m². Na konci chodby se nachází oddělené WC a koupelna s vanou. Byt je zabezpečen bezpečnostními dveřmi.
Byt má zděné jádro, vylité podlahy a rozvody elektřiny v mědi (vyjma dvou stropních světel v pokojích).
Na patře je k dispozici komora, sklep se nachází v suterénu domu.
V bytě je zaveden optický internet, plyn je v bytě pouze na vaření a vytápění je dálkové.
Byt je celou dobu obýván pouze jednou osobou a proto je v zachovalém stavu.
Praktické informace, jako jsou poplatky, prohlášení vlastníka, LV, bezdlužnost, apod. naleznete na mé webové stránce uvedené na konci videoprohlídky.
Těším se na vás na prohlídce.
Pomocí naší hypoteční kalkulačky si můžete udělat orientační představu o výši měsíčních splátek hypotéky. O vše ostatní se pak postaráme my ve spolupráci s našimi obchodními partnery.
23 483 Kč
* Odhadovaná měsíční splátka vychází z výše úvěru Kč s pevnou úrokovou sazbou % po celou dobu trvání úvěru.
Prodáváte nemovitost a potřebujete zjistit její reálnou hodnotu?
Uživatel serveru RealityMIX.cz (dále jen „Server“) dostupného na internetové adrese (URL) https://www.realitymix.cz, který provozuje společnost DALTEN media s.r.o., se sídlem Na Harfě 916/9a, Praha 9, 190 00, IČO: 271 35 306 (dále jen „Správce“) jako provozovateli tohoto Serveru uděluje svůj výslovný souhlas v souladu s ustanovením § 5 zákona č. 101/2000 Sb. O ochraně osobních údajů a o změně některých zákonů, v platném znění (dále jen „zákon o ochraně osobních údajů“), se zpracováním uživatelem poskytnutých osobních údajů a dalších dat.
Uživatel poskytuje Správci osobní údaje v rozsahu: jméno, příjmení, e-mailová adresa, telefonický kontakt a další data, a to z důvodu projeveného zájmu o nemovitost, kde prostřednictvím služby Serveru Správce osloví Uživatel inzerenta uvedeného v detailu
nemovitosti - ID reality spol. s.r.o. (IČ 27506606) se zájmem o jeho služby.
Uživatel tyto osobní údaje poskytuje dobrovolně a bere na vědomí, že součástí služeb Správce, které Správce Uživateli poskytuje, je vyhledání všech Uživateli vyhovujících (dle parametrů - cena, typ nemovitosti, lokalita atd.) nemovitostí. Správce za tímto účelem provozuje aplikace Hlídací pes a newsletter. Tyto služby je možné z každého zaslaného emailu odhlásit. Souhlas se zpracováním osobních údajů Uživatel poskytuje Správci na dobu neurčitou s tím, že svůj udělený souhlas může Uživatel kdykoliv na drese správce info@realitymix.cz odvolat. Správce garantuje Uživateli i další práva uvedené v ustanovení §11 a §21 zákoba č. 101/200 Sb. Ve znění pozdějších předpisů.
Více informací o zpracování údajů získáte zde (realitymix.cz/zasady-ochrany-osobnich-udaju)