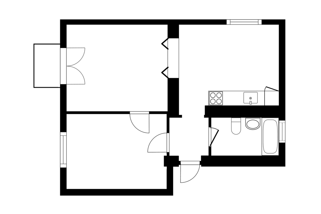
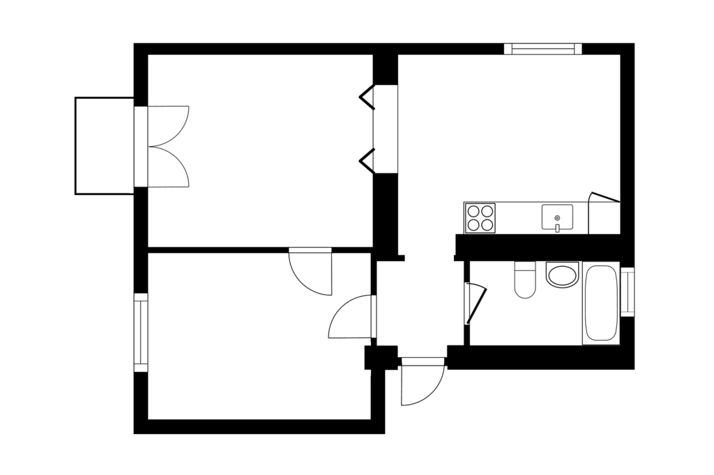
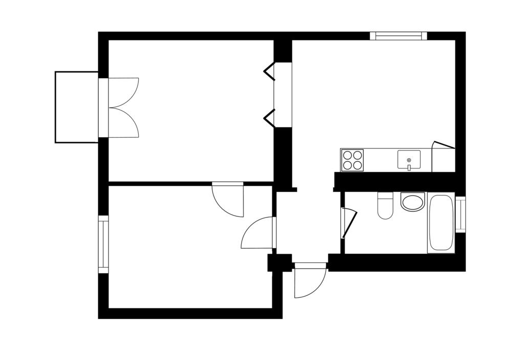
K prodeji nabízíme byt o dispozici 2+1 (48 m2) s balkonem (2 m2) nedaleko centra města v Plzni na Slovanech, ulice Úslavská. Bytová jednotka je umístěna ve 3. patře (4. nadzemním podlaží) cihlového domu a její dispozice zahrnuje obývací pokoj, ložnici, kuchyň, předsíň a koupelnu s toaletou. K bytu náleží sklepní kóje (4 m2) v suterénu domu.
Byt prošel částečnou rekonstrukcí, při které byla osazena plastová okna s vnitřními žaluziemi, převážně vyměněny rozvody elektřiny, kompletně vyměněny rozvody vody, položeny nové podlahové krytiny a instalovány nové interiérové dveře. Součástí úprav byla také rekonstrukce koupelny, která zahrnovala nové obklady, dlažbu i sanitární keramiku.
Vytápění bytu je centrální (Plzeňská teplárenská), vodu ohřívá plynová karma umístěná v koupelně. Na vše jsou samostatná měřidla. Byt zůstává zařízený kuchyňskou linkou včetně elektrického sporáku.
Lokalita nabízí kompletní občanskou vybavenost i výbornou dopravní dostupnost. Supermarket Albert je vzdálen jen 3 minuty chůze od domu. V blízkosti se nachází také zastávka tramvajové linky č. 2 a trolejbusové linky č. 12.
Konečná cena včetně provize RK, kompletního právního servisu a advokátní úschovy kupní ceny činí 4.590.000 Kč. Pro bližší informace či domluvení prohlídky volejte na uvedený mobilní telefon.
Pro zjištění rozměrů místností a objektů v prostoru využijte možnost měření ve virtuální prohlídce pomocí ikony pravítka v levém dolním rohu.
Pomocí naší hypoteční kalkulačky si můžete udělat orientační představu o výši měsíčních splátek hypotéky. O vše ostatní se pak postaráme my ve spolupráci s našimi obchodními partnery.
18 584 Kč
* Odhadovaná měsíční splátka vychází z výše úvěru Kč s pevnou úrokovou sazbou % po celou dobu trvání úvěru.
Prodáváte nemovitost a potřebujete zjistit její reálnou hodnotu?
Uživatel serveru RealityMIX.cz (dále jen „Server“) dostupného na internetové adrese (URL) https://www.realitymix.cz, který provozuje společnost DALTEN media s.r.o., se sídlem Na Harfě 916/9a, Praha 9, 190 00, IČO: 271 35 306 (dále jen „Správce“) jako provozovateli tohoto Serveru uděluje svůj výslovný souhlas v souladu s ustanovením § 5 zákona č. 101/2000 Sb. O ochraně osobních údajů a o změně některých zákonů, v platném znění (dále jen „zákon o ochraně osobních údajů“), se zpracováním uživatelem poskytnutých osobních údajů a dalších dat.
Uživatel poskytuje Správci osobní údaje v rozsahu: jméno, příjmení, e-mailová adresa, telefonický kontakt a další data, a to z důvodu projeveného zájmu o nemovitost, kde prostřednictvím služby Serveru Správce osloví Uživatel inzerenta uvedeného v detailu
nemovitosti - Idea Reality s.r.o. (IČ 03863310) se zájmem o jeho služby.
Uživatel tyto osobní údaje poskytuje dobrovolně a bere na vědomí, že součástí služeb Správce, které Správce Uživateli poskytuje, je vyhledání všech Uživateli vyhovujících (dle parametrů - cena, typ nemovitosti, lokalita atd.) nemovitostí. Správce za tímto účelem provozuje aplikace Hlídací pes a newsletter. Tyto služby je možné z každého zaslaného emailu odhlásit. Souhlas se zpracováním osobních údajů Uživatel poskytuje Správci na dobu neurčitou s tím, že svůj udělený souhlas může Uživatel kdykoliv na drese správce info@realitymix.cz odvolat. Správce garantuje Uživateli i další práva uvedené v ustanovení §11 a §21 zákoba č. 101/200 Sb. Ve znění pozdějších předpisů.
Více informací o zpracování údajů získáte zde (realitymix.cz/zasady-ochrany-osobnich-udaju)