Máme pro Vás připraven nový projekt pod názvem „Byty Na Okraji“.
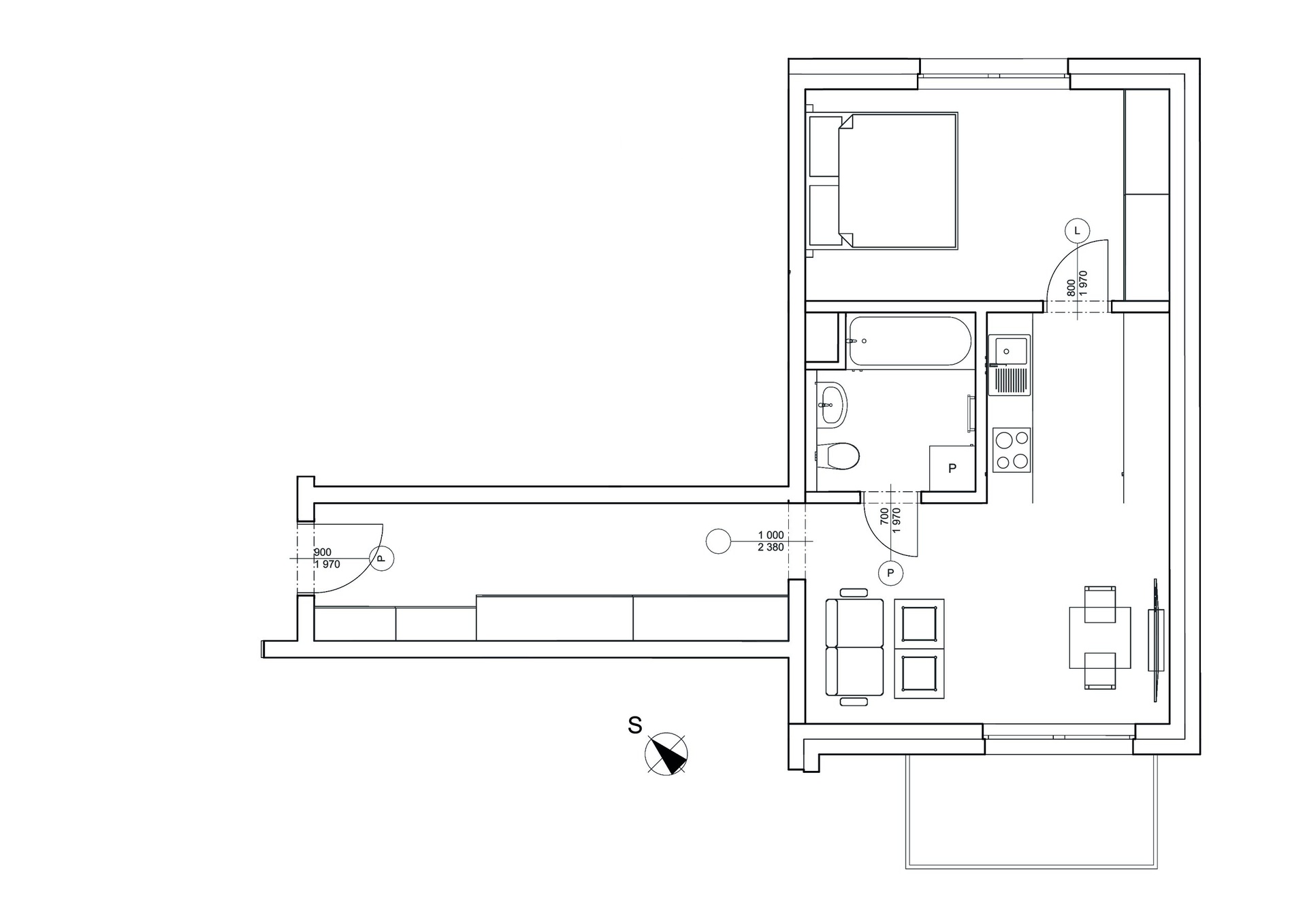
Předmětná jednotka 2kk o výměře 49 m2 + balkon (5 m2) se bude nacházet ve 3. NP cihelného domu s výtahem.
Orientace bytu - obývací pokoj s balkonem - jih - vnitroblok, ložnice - sever.
Dům bude situován v lokalitě Předních Skvrňan a nabídne klidné místo spojené s dobrou dostupností centra města i nájezdu na páteřní infrastrukturu. Půjde o menší bytový dům zasazený do původní zástavby v ulici Na Okraji.
Složen bude výhradně z bytových jednotek. Půjde zejména o malometrážní byty (1kk, 2kk) s podlahovou plochou od cca 30 m2 až do 60 m2. Téměř každý byt bude disponovat balkónem. V ceně bytu bude dokončení v daném standardu (bez kuchyňské linky a finálního osvětlení). Prezentované vizualizace se zařízením jsou pouze ilustrativní.
Bytový dům je projektován jako nízkoenergetický, energetická třída B. Náklady na Vaše nové bydlení budou velmi nízké, což jistě v budoucnosti oceníte. Vytápění bude řešeno dálkově (Plzeňská Teplárna).
Výstavba zahájena, předpokládané dokončení červen 2027. Pro bližší informace mne neváhejte kontaktovat.
Pomocí naší hypoteční kalkulačky si můžete udělat orientační představu o výši měsíčních splátek hypotéky. O vše ostatní se pak postaráme my ve spolupráci s našimi obchodními partnery.
20 851 Kč
* Odhadovaná měsíční splátka vychází z výše úvěru Kč s pevnou úrokovou sazbou % po celou dobu trvání úvěru.
Prodáváte nemovitost a potřebujete zjistit její reálnou hodnotu?
Uživatel serveru RealityMIX.cz (dále jen „Server“) dostupného na internetové adrese (URL) https://www.realitymix.cz, který provozuje společnost DALTEN media s.r.o., se sídlem Na Harfě 916/9a, Praha 9, 190 00, IČO: 271 35 306 (dále jen „Správce“) jako provozovateli tohoto Serveru uděluje svůj výslovný souhlas v souladu s ustanovením § 5 zákona č. 101/2000 Sb. O ochraně osobních údajů a o změně některých zákonů, v platném znění (dále jen „zákon o ochraně osobních údajů“), se zpracováním uživatelem poskytnutých osobních údajů a dalších dat.
Uživatel poskytuje Správci osobní údaje v rozsahu: jméno, příjmení, e-mailová adresa, telefonický kontakt a další data, a to z důvodu projeveného zájmu o nemovitost, kde prostřednictvím služby Serveru Správce osloví Uživatel inzerenta uvedeného v detailu
nemovitosti - REALITNÍ KANCELÁŘ PUBEC s.r.o. (IČ 26331004) se zájmem o jeho služby.
Uživatel tyto osobní údaje poskytuje dobrovolně a bere na vědomí, že součástí služeb Správce, které Správce Uživateli poskytuje, je vyhledání všech Uživateli vyhovujících (dle parametrů - cena, typ nemovitosti, lokalita atd.) nemovitostí. Správce za tímto účelem provozuje aplikace Hlídací pes a newsletter. Tyto služby je možné z každého zaslaného emailu odhlásit. Souhlas se zpracováním osobních údajů Uživatel poskytuje Správci na dobu neurčitou s tím, že svůj udělený souhlas může Uživatel kdykoliv na drese správce info@realitymix.cz odvolat. Správce garantuje Uživateli i další práva uvedené v ustanovení §11 a §21 zákoba č. 101/200 Sb. Ve znění pozdějších předpisů.
Více informací o zpracování údajů získáte zde (realitymix.cz/zasady-ochrany-osobnich-udaju)