Představuji Vám k prodeji krásný byt po rekonstrukci v Plzni, v oblíbené čtvrti Slovany, v ulici Strnadova 35, v revitalizovaném cihlovém domě, se sklepem.
Podívejte se na samostatnou stránku domu z odkazu ve video prohlídce.
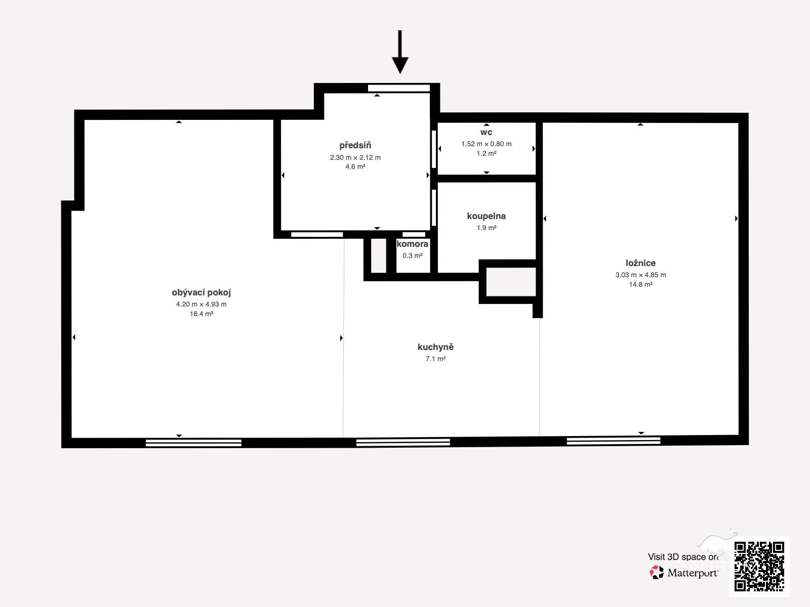
Byt informace:
> 1.NP
> po kompletní rekonstrukci z roku 2021
> dispozice změna z původního 2+1 na atyp v podobně otevřeného prostoru
> užitná plocha 54 m2 + zděný sklep (3 m2)
> okna v plastu 2skla
Uvedené výměry jsou orientační.
Byt napojen na sítě:
> voda (v plastu)
> elektřina (měď)
> topení (litinové radiátory)
> plyn zavedený (momentálně odpojený pro nevyužití)
V roce 2021 prošel byt kompletní rekonstrukcí vč. zásadní změny dispozice, kdy se z původního 2+1 vytvořil moderní, otevřený a velmi příjemný prostor. Praktická a dostatečně velká je vstupní předsíň, moderní koupelna se sprchovým koutem a samostatnou toaletou. Promyšlené jsou také další detaily, jako např. prostor pro úschovy pračky či zabudovaná lednice s mrazákem v prostoru kuchyňské linky.
Kuchyňská linka je vybavena moderními značkovými spotřebiči elektrická trouba, myčka, lednice s mrazákem, digestoř vše ve značce Bosch, varná deska Electrolux, mikrovlnná trouba Daewoo, parní pračka Whirlpool.
Byt nabízí světlý interiér, jednotný styl a jeho promyšlené řešení z něj dělají ideální bydlení pro jednotlivce nebo pár, kteří chtějí víc než jen čtyři stěny.
Měsíční náklady na byt na 1 osobu: 3.554 Kč z toho činí fond oprav 1.404 Kč
Dům informace:
Dům je po kompletní revitalizaci, s klidnými sousedy – zkrátka místo, kde se dobře bydlí.
> Zateplení střechy 2015
> Zateplení fasády 2020
Pro letošní rok nejsou plánovány žádné opravy či rekonstrukce, jen běžná údržba.
Energetický štítek má energetickou třídu "C", tzn. úsporná budova.
Lokalita:
Všechno důležité pěšky obchody, služby, lékaři, školy, školky i OC Galerie Slovany – žádné zbytečné přejíždění městem, všechno máte po ruce.
Výborná dostupnost kamkoliv rychlé napojení na centrum Plzně, MHD pár kroků od domu, snadný výjezd z města.
Slovany jsou dlouhodobě žádaná a stabilní lokalita a dobrá investice do budoucna.
Tenhle byt si zamilujete hlavně pocitem, který v něm máte.
Pro koupi bytu Vám zajistím kompletní realitní a právní servis a v případě potřeby i výhodné financování hypotečním úvěrem.
Pomocí naší hypoteční kalkulačky si můžete udělat orientační představu o výši měsíčních splátek hypotéky. O vše ostatní se pak postaráme my ve spolupráci s našimi obchodními partnery.
23 442 Kč
* Odhadovaná měsíční splátka vychází z výše úvěru Kč s pevnou úrokovou sazbou % po celou dobu trvání úvěru.
Prodáváte nemovitost a potřebujete zjistit její reálnou hodnotu?
Uživatel serveru RealityMIX.cz (dále jen „Server“) dostupného na internetové adrese (URL) https://www.realitymix.cz, který provozuje společnost DALTEN media s.r.o., se sídlem Na Harfě 916/9a, Praha 9, 190 00, IČO: 271 35 306 (dále jen „Správce“) jako provozovateli tohoto Serveru uděluje svůj výslovný souhlas v souladu s ustanovením § 5 zákona č. 101/2000 Sb. O ochraně osobních údajů a o změně některých zákonů, v platném znění (dále jen „zákon o ochraně osobních údajů“), se zpracováním uživatelem poskytnutých osobních údajů a dalších dat.
Uživatel poskytuje Správci osobní údaje v rozsahu: jméno, příjmení, e-mailová adresa, telefonický kontakt a další data, a to z důvodu projeveného zájmu o nemovitost, kde prostřednictvím služby Serveru Správce osloví Uživatel inzerenta uvedeného v detailu
nemovitosti - TAURUM reality s.r.o. (IČ 05904498) se zájmem o jeho služby.
Uživatel tyto osobní údaje poskytuje dobrovolně a bere na vědomí, že součástí služeb Správce, které Správce Uživateli poskytuje, je vyhledání všech Uživateli vyhovujících (dle parametrů - cena, typ nemovitosti, lokalita atd.) nemovitostí. Správce za tímto účelem provozuje aplikace Hlídací pes a newsletter. Tyto služby je možné z každého zaslaného emailu odhlásit. Souhlas se zpracováním osobních údajů Uživatel poskytuje Správci na dobu neurčitou s tím, že svůj udělený souhlas může Uživatel kdykoliv na drese správce info@realitymix.cz odvolat. Správce garantuje Uživateli i další práva uvedené v ustanovení §11 a §21 zákoba č. 101/200 Sb. Ve znění pozdějších předpisů.
Více informací o zpracování údajů získáte zde (realitymix.cz/zasady-ochrany-osobnich-udaju)