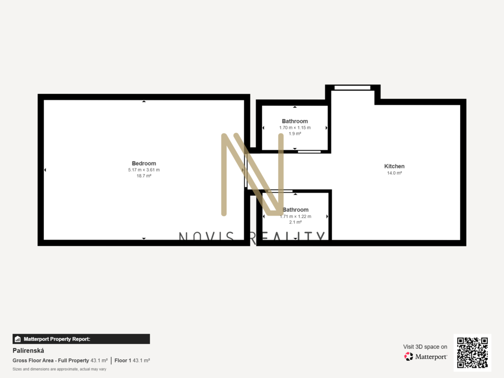
Pronájem, byt 1+1, 35 m², Plzeň - Božkov, ul. Palírenská
Nabízíme k pronájmu hezký světlý byt o dispozici 1+1 a výměře 35 m², který se nachází v přízemí domu v ulici Palírenská v Plzni – Božkově. Byt je ideální pro mladý pár nebo jednotlivce, kteří hledají klidné bydlení s dobrou dostupností do centra města. V okolí je k dispozici veškerá občanská vybavenost a do centra Plzně se pohodlně dostanete během několika minut autem nebo městskou hromadnou dopravou. Ohřev teplé vody je zajištěn elektrickým bojlerem, vytápění plynovým kotlem, který je společného pro celý dům.
Měsíční nájem činí 11 000 Kč. Zálohy na vytápění jsou ve výši 3 000 Kč/měsíc, ostatní zálohy na služby (vodné, stočné, svoz odpadu apod.) činí 700 Kč na osobu. Elektřina se převádí na nájemníka. Kauce je stanovena ve výši dvou měsíčních nájmů a provize realitní kanceláři ve výši jednoho nájmu + DPH. Byt je připraven k nastěhování a nabízí příjemné bydlení v klidné části města s výbornou dostupností a veškerým zázemím v okolí.
Uživatel serveru RealityMIX.cz (dále jen „Server“) dostupného na internetové adrese (URL) https://www.realitymix.cz, který provozuje společnost DALTEN media s.r.o., se sídlem Na Harfě 916/9a, Praha 9, 190 00, IČO: 271 35 306 (dále jen „Správce“) jako provozovateli tohoto Serveru uděluje svůj výslovný souhlas v souladu s ustanovením § 5 zákona č. 101/2000 Sb. O ochraně osobních údajů a o změně některých zákonů, v platném znění (dále jen „zákon o ochraně osobních údajů“), se zpracováním uživatelem poskytnutých osobních údajů a dalších dat.
Uživatel poskytuje Správci osobní údaje v rozsahu: jméno, příjmení, e-mailová adresa, telefonický kontakt a další data, a to z důvodu projeveného zájmu o nemovitost, kde prostřednictvím služby Serveru Správce osloví Uživatel inzerenta uvedeného v detailu
nemovitosti - NOVIS reality s.r.o. (IČ 09939482) se zájmem o jeho služby.
Uživatel tyto osobní údaje poskytuje dobrovolně a bere na vědomí, že součástí služeb Správce, které Správce Uživateli poskytuje, je vyhledání všech Uživateli vyhovujících (dle parametrů - cena, typ nemovitosti, lokalita atd.) nemovitostí. Správce za tímto účelem provozuje aplikace Hlídací pes a newsletter. Tyto služby je možné z každého zaslaného emailu odhlásit. Souhlas se zpracováním osobních údajů Uživatel poskytuje Správci na dobu neurčitou s tím, že svůj udělený souhlas může Uživatel kdykoliv na drese správce info@realitymix.cz odvolat. Správce garantuje Uživateli i další práva uvedené v ustanovení §11 a §21 zákoba č. 101/200 Sb. Ve znění pozdějších předpisů.
Více informací o zpracování údajů získáte zde (realitymix.cz/zasady-ochrany-osobnich-udaju)