© 1999–2026 DALTEN media s.r.o.
Vyhledávání nemovitostí v kategorii Rodinné domy a vily - Prachatice. Vyberte si z naší nabídky nemovitostí, případně si upravte filtr vyhledávání.
Líbí se vám co vidíte?
Prachatice
+420773609166
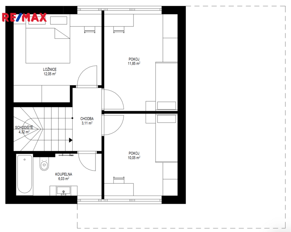
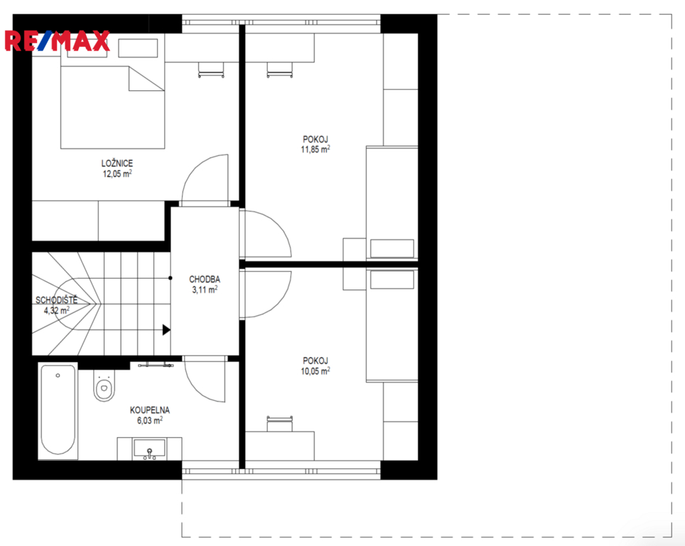
Na Vyhlídce, Vimperk III, Vimperk, okr. Prachatice
+420728700424
Vimperk III, Vimperk, okr. Prachatice
+420 608 606 197
Mlýnská, Volary, okr. Prachatice
296 399 006
Starosti spojené s prodejem či pronájmem chci nechat na profesionály
Chci využít soukromé inzerce na portálu RealityMIX.cz
Běleč, Těšovice, okr. Prachatice
Petrův Dvůr, Netolice, okr. Prachatice
Nebahovy, okr. Prachatice
+420721837670
Malovice, okr. Prachatice
+420 777 155 981
Žižkova, Husinec, okr. Prachatice
+420 725 173 088
Horosedly, Čkyně, okr. Prachatice
Klenovice, Mičovice, okr. Prachatice
U Lipového dvora, Prachatice II, Prachatice
Krátká, Volary, okr. Prachatice
Stachy, okr. Prachatice