Útulná garsonka na prodej – skvělá investice nebo startovní bydlení v klidné části Prahy
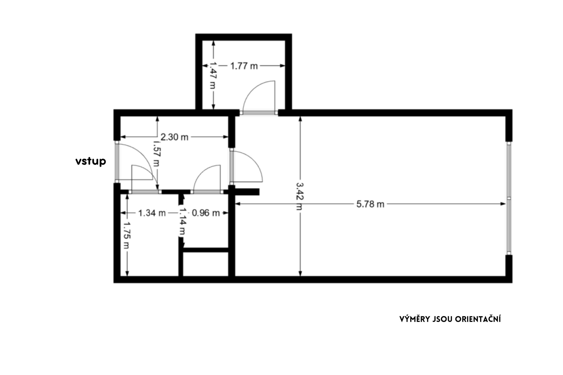
Hledáte byt, kde můžete začít nový životní příběh, nebo výhodně investovat? Nabízíme byt o dispozici 1+kk a výměře 29,09 m², nacházející se v 7. patře z 8 panelového domu v ulici Samohelova, Prahy 11 – Chodov.
Byt je v původním stavu, což nabízí příležitost pro rekonstrukci podle vašich představ. Dispozice zahrnuje vstupní chodbu, samostatnou koupelnu, WC, obytnou kuchyni a praktickou komoru. Díky jižní orientaci je byt po celý den příjemně prosvětlený.
Dům byl zrekonstruován uvnitř – nové výtahy, plastová okna, čisté a udržované společné prostory. Byt je v družstevním vlastnictví, anuita je zcela splacená a je možné převést jej do osobního vlastnictví.
Skvělá dopravní dostupnost
V docházkové vzdálenosti se nachází autobusové zastávky Donovalská a Brodského, které zajišťují pohodlné spojení na metro linky C – Opatov (cca 1,7 km). Nájezd na D1 a Pražský okruh je vzdálen pouhých 1,5 km.
Volnočasové aktivity a příroda na dosah
V bezprostředním okolí najdete fitness centrum, wellness, saunový svět, bowling a squash. Jen 500 metrů od domu se rozprostírá Hostivařský lesopark a přehrada, skvělé místo pro procházky, sport i relax. V blízkosti je také zoopark Divoká zahrada, Park u Chodovské tvrze s galerií a kulturním programem (1,5 km) nebo Kunratický les (2,5 km) s hustou sítí lesních cest.
Díky této kombinaci dopravní dostupnosti, občanské vybavenosti a blízkosti přírody je tento byt ideálním místem pro pohodlný život v Praze.
V bytě je aktuálně nájemnice s roční smlouvou, nájemné 10.000 Kč /měs + poplatky!
Pomocí naší hypoteční kalkulačky si můžete udělat orientační představu o výši měsíčních splátek hypotéky. O vše ostatní se pak postaráme my ve spolupráci s našimi obchodními partnery.
17 365 Kč
* Odhadovaná měsíční splátka vychází z výše úvěru Kč s pevnou úrokovou sazbou % po celou dobu trvání úvěru.
Prodáváte nemovitost a potřebujete zjistit její reálnou hodnotu?
Uživatel serveru RealityMIX.cz (dále jen „Server“) dostupného na internetové adrese (URL) https://www.realitymix.cz, který provozuje společnost DALTEN media s.r.o., se sídlem Na Harfě 916/9a, Praha 9, 190 00, IČO: 271 35 306 (dále jen „Správce“) jako provozovateli tohoto Serveru uděluje svůj výslovný souhlas v souladu s ustanovením § 5 zákona č. 101/2000 Sb. O ochraně osobních údajů a o změně některých zákonů, v platném znění (dále jen „zákon o ochraně osobních údajů“), se zpracováním uživatelem poskytnutých osobních údajů a dalších dat.
Uživatel poskytuje Správci osobní údaje v rozsahu: jméno, příjmení, e-mailová adresa, telefonický kontakt a další data, a to z důvodu projeveného zájmu o nemovitost, kde prostřednictvím služby Serveru Správce osloví Uživatel inzerenta uvedeného v detailu
nemovitosti - Keller Williams Czech Republic (IČ 07796340) se zájmem o jeho služby. Tato společnost je součástí seskupení/sítě/franšízového modelu realitních kanceláří, jejich seznam můžete zobrazit kliknutím na tento odkaz.
Keller Williams Czech Republic (IČ 07796340) , Nemovito by Keller Williams (IČ 10826971) , Keller Williams Czech Republic (IČ 07796340) , Keller Williams - centrála (IČ 06521924)
Uživatel tyto osobní údaje poskytuje dobrovolně a bere na vědomí, že součástí služeb Správce, které Správce Uživateli poskytuje, je vyhledání všech Uživateli vyhovujících (dle parametrů - cena, typ nemovitosti, lokalita atd.) nemovitostí. Správce za tímto účelem provozuje aplikace Hlídací pes a newsletter. Tyto služby je možné z každého zaslaného emailu odhlásit. Souhlas se zpracováním osobních údajů Uživatel poskytuje Správci na dobu neurčitou s tím, že svůj udělený souhlas může Uživatel kdykoliv na drese správce info@realitymix.cz odvolat. Správce garantuje Uživateli i další práva uvedené v ustanovení §11 a §21 zákoba č. 101/200 Sb. Ve znění pozdějších předpisů.
Více informací o zpracování údajů získáte zde (realitymix.cz/zasady-ochrany-osobnich-udaju)