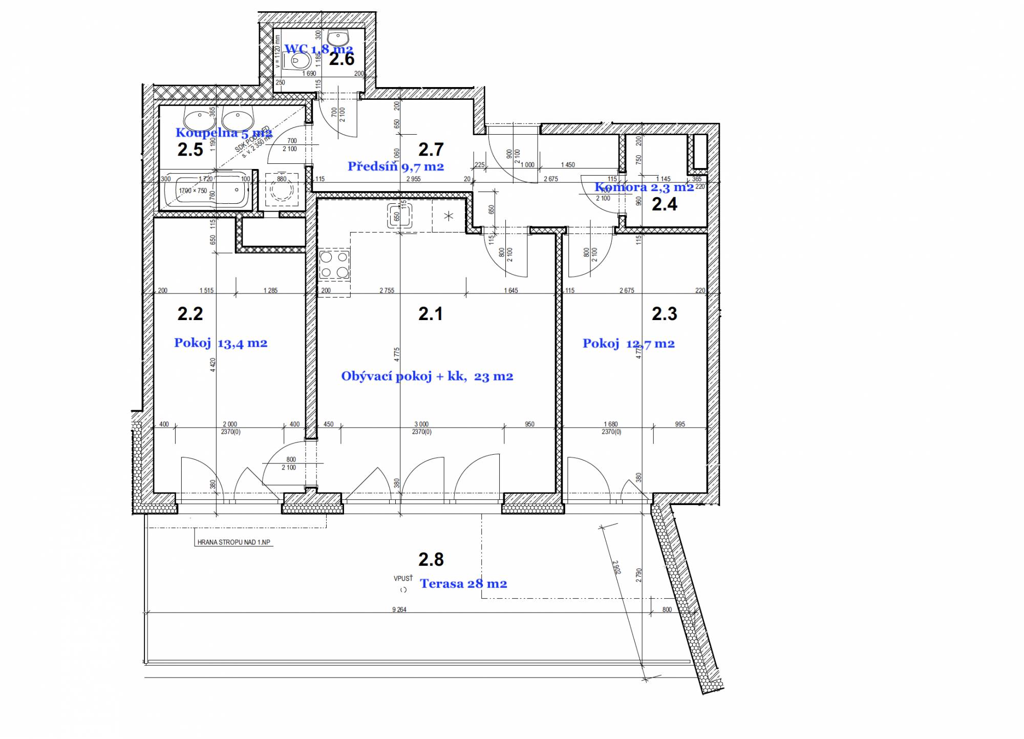
Novostavba 3+kk 74m2 hrubé plochy s obří terasou 28 m2 a dotekem přírody na Chodovci
Nabízíme k prodeji nikdy neobývaný byt v lukrativní lokalitě na pomezí Záběhlic a Chodova. Ideální investice i rodinné bydlení.
Hledáte bydlení, které kombinuje klid lesa s tepem velkoměsta? Tento byt v projektu Kulatý Chodovec je nepopsaným listem, na který můžete začít psát svůj příběh.
To hlavní, co si zamilujete:
- Terasa, která dýchá: 28 m2 prostoru přístupného ze všech pokojů. Ranní káva nebo letní párty? Tady máte prostor na obojí.
- Perspektiva 3. patra: I když je byt v 1. NP, díky svažitému terénu se budete cítit jako ve třetím. Soukromí i výhled zaručen.
- Vůně novoty: V bytě ještě nikdo nebydlí. Čeká na vaše nápady, kuchyni na míru a nábytek, který definuje váš styl.
- Venkovní žaluzie na dálkové ovládání, podlahové topení v koupelně, zabezpečovací systém a prémiové vinylové podlahy v dekoru dřeva.
- Parkování: k bytu patří také garážové stání s přímým vstupem do sklepa 3,5 m2.
Lokalita: Mezi Záběhlicemi a Chodovem. Do 5 minut jste ve Westfield Chodov nebo na metru, ale hned za domem můžete nazout běžecké boty a zmizet v zeleni.
Pomocí naší hypoteční kalkulačky si můžete udělat orientační představu o výši měsíčních splátek hypotéky. O vše ostatní se pak postaráme my ve spolupráci s našimi obchodními partnery.
55 427 Kč
* Odhadovaná měsíční splátka vychází z výše úvěru Kč s pevnou úrokovou sazbou % po celou dobu trvání úvěru.
Prodáváte nemovitost a potřebujete zjistit její reálnou hodnotu?
Uživatel serveru RealityMIX.cz (dále jen „Server“) dostupného na internetové adrese (URL) https://www.realitymix.cz, který provozuje společnost DALTEN media s.r.o., se sídlem Na Harfě 916/9a, Praha 9, 190 00, IČO: 271 35 306 (dále jen „Správce“) jako provozovateli tohoto Serveru uděluje svůj výslovný souhlas v souladu s ustanovením § 5 zákona č. 101/2000 Sb. O ochraně osobních údajů a o změně některých zákonů, v platném znění (dále jen „zákon o ochraně osobních údajů“), se zpracováním uživatelem poskytnutých osobních údajů a dalších dat.
Uživatel poskytuje Správci osobní údaje v rozsahu: jméno, příjmení, e-mailová adresa, telefonický kontakt a další data, a to z důvodu projeveného zájmu o nemovitost, kde prostřednictvím služby Serveru Správce osloví Uživatel inzerenta uvedeného v detailu
nemovitosti - J & J STAVIS s.r.o. (IČ 27156451) se zájmem o jeho služby. Tato společnost je součástí seskupení/sítě/franšízového modelu realitních kanceláří, jejich seznam můžete zobrazit kliknutím na tento odkaz.
J & J STAVIS s.r.o. (IČ 27156451) , J & J STAVIS s.r.o. (IČ 27156451)
Uživatel tyto osobní údaje poskytuje dobrovolně a bere na vědomí, že součástí služeb Správce, které Správce Uživateli poskytuje, je vyhledání všech Uživateli vyhovujících (dle parametrů - cena, typ nemovitosti, lokalita atd.) nemovitostí. Správce za tímto účelem provozuje aplikace Hlídací pes a newsletter. Tyto služby je možné z každého zaslaného emailu odhlásit. Souhlas se zpracováním osobních údajů Uživatel poskytuje Správci na dobu neurčitou s tím, že svůj udělený souhlas může Uživatel kdykoliv na drese správce info@realitymix.cz odvolat. Správce garantuje Uživateli i další práva uvedené v ustanovení §11 a §21 zákoba č. 101/200 Sb. Ve znění pozdějších předpisů.
Více informací o zpracování údajů získáte zde (realitymix.cz/zasady-ochrany-osobnich-udaju)