Praha, pronájem nezařízeného bytu 2+1 (75m2), balkón, ulice Slezská
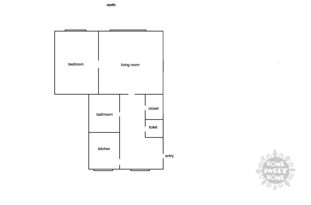
Nabízíme k pronájmu prostorný a světlý byt o dispozici 2+1 s balkónem o celkové ploše 75 m², který se nachází ve 2. patře udržovaného cihlového domu s výtahem v prestižní lokalitě Praha 2 – Vinohrady, ulice Slezská.
Byt je k dispozici nezařízený a nabízí praktické dispoziční řešení: dvě neprůchozí místnosti s okny do ulice Slezská (jedna z místností disponuje vstupem na balkón cca 2m2).
Kuchyň je vybavena kuchyňskou linkou se spotřebiči, včetně sklokeramické varné desky a elektrické trouby. V koupelně se nachází sprchový kout, toaleta je oddělená. V bytě je také komora. Na podlahách jsou parkety, vinylová podlaha a dlažba v koupelně. Vytápění je řešeno elektrickými přímotopy. V bytě je také možnost připojení k internetu (O2).
Velkou výhodou je výjimečná poloha bytu: nachází se jen pár minut chůze od stanice metra Náměstí Míru (linka A). Lokalita nabízí kompletní občanskou vybavenost – obchody, kavárny, restaurace, bary, školy, farmářské trhy a další služby v bezprostředním okolí.
Byt je ideální pro jednotlivce nebo pár. K dispozici od 1.května.
Uživatel serveru RealityMIX.cz (dále jen „Server“) dostupného na internetové adrese (URL) https://www.realitymix.cz, který provozuje společnost DALTEN media s.r.o., se sídlem Na Harfě 916/9a, Praha 9, 190 00, IČO: 271 35 306 (dále jen „Správce“) jako provozovateli tohoto Serveru uděluje svůj výslovný souhlas v souladu s ustanovením § 5 zákona č. 101/2000 Sb. O ochraně osobních údajů a o změně některých zákonů, v platném znění (dále jen „zákon o ochraně osobních údajů“), se zpracováním uživatelem poskytnutých osobních údajů a dalších dat.
Uživatel poskytuje Správci osobní údaje v rozsahu: jméno, příjmení, e-mailová adresa, telefonický kontakt a další data, a to z důvodu projeveného zájmu o nemovitost, kde prostřednictvím služby Serveru Správce osloví Uživatel inzerenta uvedeného v detailu
nemovitosti - Home Sweet Home (IČ 24141496) se zájmem o jeho služby. Tato společnost je součástí seskupení/sítě/franšízového modelu realitních kanceláří, jejich seznam můžete zobrazit kliknutím na tento odkaz.
Home sweet home Plzeň (IČ 63916258) , Home Sweet Home (IČ 24141496)
Uživatel tyto osobní údaje poskytuje dobrovolně a bere na vědomí, že součástí služeb Správce, které Správce Uživateli poskytuje, je vyhledání všech Uživateli vyhovujících (dle parametrů - cena, typ nemovitosti, lokalita atd.) nemovitostí. Správce za tímto účelem provozuje aplikace Hlídací pes a newsletter. Tyto služby je možné z každého zaslaného emailu odhlásit. Souhlas se zpracováním osobních údajů Uživatel poskytuje Správci na dobu neurčitou s tím, že svůj udělený souhlas může Uživatel kdykoliv na drese správce info@realitymix.cz odvolat. Správce garantuje Uživateli i další práva uvedené v ustanovení §11 a §21 zákoba č. 101/200 Sb. Ve znění pozdějších předpisů.
Více informací o zpracování údajů získáte zde (realitymix.cz/zasady-ochrany-osobnich-udaju)