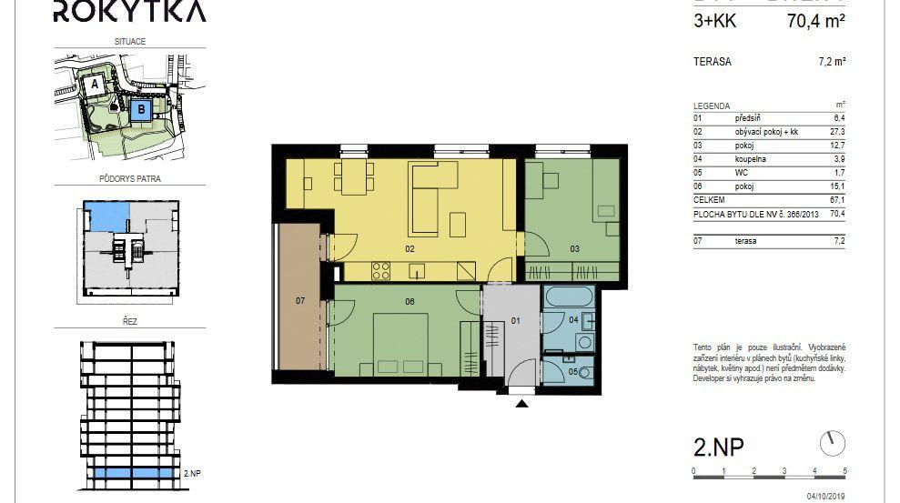
K dlouhodobému pronájmu nabízíme příjemný byt 3+kk (69,5 m) s prostornou terasou (7,2 m), který se nachází v 2 patře novostavby Rezidence Výhledy Rokytka v Praze 9 Vysočanech, ulice Oktábcových.
V ceně pronájmu je zahrnuto garážové stání a velký, zděný sklep (6,7 m). Objekt je zabezpečen kamerovým systémem a v suterénu je k dispozici kolárna se sprchou. Byt je částečně vybavený dle uvedených fotografií, kromě TV, pračky, dvoulůžkové postele a sedací soupravy, které nejsou součástí pronájmu.
Dům je energetické třídy B, tedy velmi úsporné, což zajišťuje nízké měsíční náklady na provoz.
Rezidence se nachází v klidné části Prahy 9 a nabízí moderní, komfortní a bezbariérové bydlení vhodné pro páry i rodiny. Je obklopené zelení, sportovišti i dětskými prolézačkami, v těsné blízkosti se nachází park Rokytka, ideální pro procházky, sport i relaxaci a navazující cyklostezka. Lokalita nabízí vynikající dopravní dostupnost 2 minuty pěšky na stanici metra B Kolbenova, tak i na tramvajovou zastávku Kolbenova. V okolí je kompletní občanská vybavenost, školy, školky, restaurace, fitness centra i nákupní galerie Harfa a Fénix.
Ideální pro ty, kteří hledají moderní a klidné bydlení s vynikající dostupností do centra Prahy.
Uživatel serveru RealityMIX.cz (dále jen „Server“) dostupného na internetové adrese (URL) https://www.realitymix.cz, který provozuje společnost DALTEN media s.r.o., se sídlem Na Harfě 916/9a, Praha 9, 190 00, IČO: 271 35 306 (dále jen „Správce“) jako provozovateli tohoto Serveru uděluje svůj výslovný souhlas v souladu s ustanovením § 5 zákona č. 101/2000 Sb. O ochraně osobních údajů a o změně některých zákonů, v platném znění (dále jen „zákon o ochraně osobních údajů“), se zpracováním uživatelem poskytnutých osobních údajů a dalších dat.
Uživatel poskytuje Správci osobní údaje v rozsahu: jméno, příjmení, e-mailová adresa, telefonický kontakt a další data, a to z důvodu projeveného zájmu o nemovitost, kde prostřednictvím služby Serveru Správce osloví Uživatel inzerenta uvedeného v detailu
nemovitosti - Mgr. Jan Vodenka (IČ 65564286) se zájmem o jeho služby.
Uživatel tyto osobní údaje poskytuje dobrovolně a bere na vědomí, že součástí služeb Správce, které Správce Uživateli poskytuje, je vyhledání všech Uživateli vyhovujících (dle parametrů - cena, typ nemovitosti, lokalita atd.) nemovitostí. Správce za tímto účelem provozuje aplikace Hlídací pes a newsletter. Tyto služby je možné z každého zaslaného emailu odhlásit. Souhlas se zpracováním osobních údajů Uživatel poskytuje Správci na dobu neurčitou s tím, že svůj udělený souhlas může Uživatel kdykoliv na drese správce info@realitymix.cz odvolat. Správce garantuje Uživateli i další práva uvedené v ustanovení §11 a §21 zákoba č. 101/200 Sb. Ve znění pozdějších předpisů.
Více informací o zpracování údajů získáte zde (realitymix.cz/zasady-ochrany-osobnich-udaju)