Dům přesně podle vašich představ – s námi se sen stává skutečností.
Ve spolupráci se společností R DOMY s.r.o. realizujeme výstavbu moderních rodinných domů na klíč. Naším cílem je nabídnout vám rychlé, kvalitní a precizní řešení, které spojuje promyšlený design, kvalitní materiály a poctivé řemeslo.
R DOMY s.r.o. patří mezi zkušené stavební společnosti specializující se na dřevostavby i zděné domy po celé České republice. Každý projekt je výsledkem poctivé práce, odborného přístupu a využití ekologicky šetrných materiálů.
Chceme, abyste si svůj nový domov užívali od prvního dne – ať už toužíte po útulném bungalovu, moderním patrovém domě nebo menším domku v přírodě.
Navrhujeme domy, které odpovídají vašim snům
Máte konkrétní představu, jak by měl váš dům vypadat?
Rádi vám ji pomůžeme převést do reality.
Z nabídky více než 15 typových projektů si můžete vybrat ten, který vám bude nejvíce vyhovovat – nebo vám vytvoříme zcela individuální návrh na míru vašim potřebám, pozemku i rozpočtu.
Každý dům navrhujeme s důrazem na funkčnost, estetiku a dlouhou životnost.
Dbáme na to, aby byl interiér vzdušný, prostorný a přirozeně prosvětlený – prostě domov, kde se budete cítit dobře každý den.
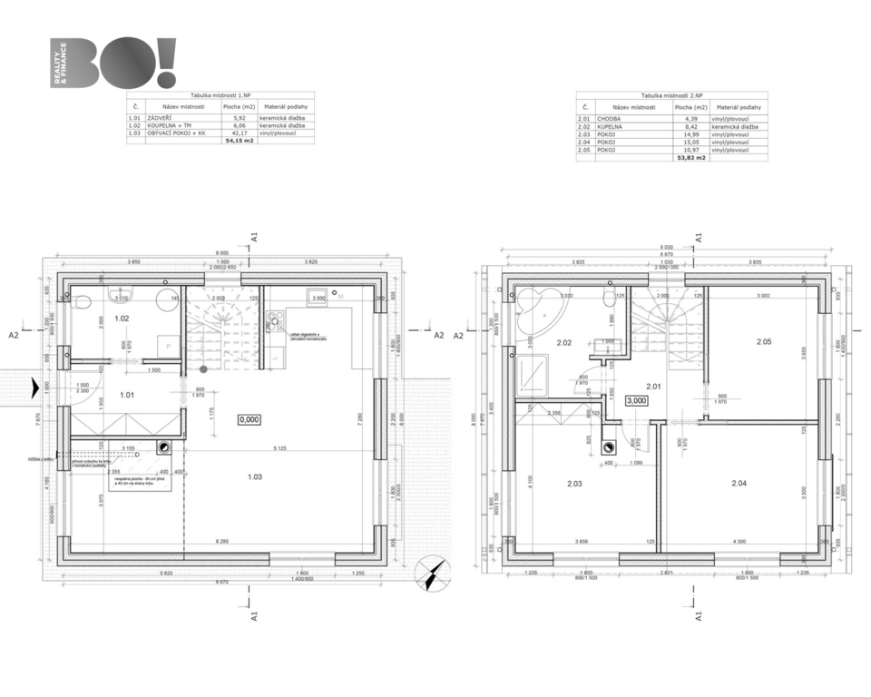
Ukázkový projekt – rodinný dům RD 54
-Elegantní patrový dům RD 54 nabízí komfortní rodinné bydlení v harmonii s přírodou.
S dispozicí 4+kk a užitnou plochou 98,4 m² poskytuje dostatek prostoru pro celou rodinu.
Interiér je navržen tak, aby působil moderně, svěže a zároveň byl energeticky úsporný.
Technické údaje:
Dispozice: 4+kk
Užitná plocha: 98,4 m²
Typ střechy: pultová nebo sedlová (sklon 5°)
Dispozici i vybavení lze přizpůsobit vašim požadavkům.
Na přání dodáme kompletní kuchyňskou linku zdarma a vestavěný nábytek na míru.
Cenová nabídka RD 54:
Hrubá stavba: 2 893 300 Kč
Dřevostavba - R domy Standard: 5 556 100 Kč
Zděný dům na klíč: 6 872 600 Kč
Ceny jsou uvedeny s DPH.
Pomůžeme i s výběrem pozemku
Nemáte ještě vybrané místo pro stavbu?
Pomůžeme vám najít ideální stavební pozemek podle vašich představ – ať už toužíte po klidném venkovském prostředí nebo preferujete město.
Spolupracujeme s realitními kancelářemi a disponujeme i vlastní nabídkou pozemků po celé republice.
Kompletní servis od projektu až po klíče
Zajistíme pro vás projekt, vyřízení povolení, zemní práce i financování.
S námi máte jistotu hladkého průběhu celé výstavby bez zbytečného stresu.
Od první schůzky až po předání hotového domu jsme vaším spolehlivým partnerem.
Zaujala vás naše nabídka?
Kontaktujte nás a sjednejte si nezávaznou konzultaci.
R DOMY s.r.o. – váš jistý krok k novému domovu.
Cena:
2 893 300 Kč
Poznámka:
Ceny domů na klíč se odvíjí podle typu domu, více informací a katalog a ceník domů u makléře
Pomocí naší hypoteční kalkulačky si můžete udělat orientační představu o výši měsíčních splátek hypotéky. O vše ostatní se pak postaráme my ve spolupráci s našimi obchodními partnery.
11 714 Kč
* Odhadovaná měsíční splátka vychází z výše úvěru Kč s pevnou úrokovou sazbou % po celou dobu trvání úvěru.
Uživatel serveru RealityMIX.cz (dále jen „Server“) dostupného na internetové adrese (URL) https://www.realitymix.cz, který provozuje společnost DALTEN media s.r.o., se sídlem Na Harfě 916/9a, Praha 9, 190 00, IČO: 271 35 306 (dále jen „Správce“) jako provozovateli tohoto Serveru uděluje svůj výslovný souhlas v souladu s ustanovením § 5 zákona č. 101/2000 Sb. O ochraně osobních údajů a o změně některých zákonů, v platném znění (dále jen „zákon o ochraně osobních údajů“), se zpracováním uživatelem poskytnutých osobních údajů a dalších dat.
Uživatel poskytuje Správci osobní údaje v rozsahu: jméno, příjmení, e-mailová adresa, telefonický kontakt a další data, a to z důvodu projeveného zájmu o nemovitost, kde prostřednictvím služby Serveru Správce osloví Uživatel inzerenta uvedeného v detailu
nemovitosti - BO! reality a finance s.r.o. (IČ 03739741) se zájmem o jeho služby. Tato společnost je součástí seskupení/sítě/franšízového modelu realitních kanceláří, jejich seznam můžete zobrazit kliknutím na tento odkaz.
BO! reality a finance s.r.o. (IČ 03739741) , BO! reality a finance s.r.o. (IČ 03739741) , BO! reality a finance s.r.o. (IČ 03739741) , BO! reality a finance s.r.o. (IČ 03739741) , BO! reality a finance s.r.o. (IČ 03739741) , BO! reality a finance s.r.o. (IČ 03739741) , BO! reality a finance s.r.o. (IČ 03739741) , BO! reality a finance s.r.o. (IČ 03739741) , BO! reality a finance s.r.o. (IČ 03739741) , BO! reality a finance s.r.o. (IČ 03739741) , Agrární půdní fond s.r.o. (IČ 09182098) , BO! reality a finance s.r.o. (IČ 03739741) , BO! reality a finance s.r.o. (IČ 03739741)
Uživatel tyto osobní údaje poskytuje dobrovolně a bere na vědomí, že součástí služeb Správce, které Správce Uživateli poskytuje, je vyhledání všech Uživateli vyhovujících (dle parametrů - cena, typ nemovitosti, lokalita atd.) nemovitostí. Správce za tímto účelem provozuje aplikace Hlídací pes a newsletter. Tyto služby je možné z každého zaslaného emailu odhlásit. Souhlas se zpracováním osobních údajů Uživatel poskytuje Správci na dobu neurčitou s tím, že svůj udělený souhlas může Uživatel kdykoliv na drese správce info@realitymix.cz odvolat. Správce garantuje Uživateli i další práva uvedené v ustanovení §11 a §21 zákoba č. 101/200 Sb. Ve znění pozdějších předpisů.
Více informací o zpracování údajů získáte zde (realitymix.cz/zasady-ochrany-osobnich-udaju)