Pronájem byt 2+kk/B+komora 57 m2 + garáž. stání novostavba 5. p. v ul. Honzíkova P10 Štěrboholy
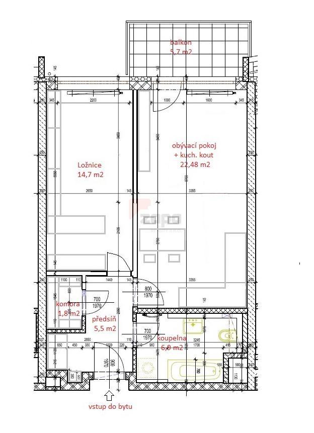
Exkluzivně nabízíme k pronájmu nový krásný byt 2+kk/B o velikosti 57 m2 (z toho 51,3 a balkon 5,7 m2) v 5. patře (s výtahem) v novostavbě z roku 2020 v ul. Honzíkova na Praze 10 - Štěrboholy. K bytu je možné si pronajmout i garážové stání v přízemí domu- nájemné dle dohody.
Byt je nadstandardně částečně zařízený se západní orientací směrem do klidného vnitrobloku.
Vybavení bytu: kuchyňská linka s vestavěnými spotřebiči zn. Siemens (varná deska, myčka, lednice s mrazákem, el. trouba) , v předsíni vestavěné šatní skříně, prostorná komora, ložnice se šatnou (2x šatní skříně) , v oknech předokenní žaluzie.
Dispozice bytu: obývací pokoj je propojen s kuchyňským koutem a balkonem, ložnice je samostatná a neprůchozí, v koupelně je vana a WC + prostor pro pračku.
Na podlahách je dřevěná plovoucí podlaha nebo dlažba. Vytápění bytu je dálkové.
Parkování je bezplatné v okolí domu nebo si lze k bytu pronajmout garážové stání v domě (cena dohodou).
Byt je volný okamžitě, je ideální pro 1-2 dospělé osoby, nekuřáky a bez domácích zvířat.
Byt je v klidném, tichém místě s veškerou občanskou vybaveností. V blízkosti je supermarket Lidl, Penny market, lékárna a restaurace a další obchody, nákupní centrum Štěrboholy, hned vedle domu je stezka podél Hostavického potoka směrem k retenční nádrži Slatina. Výborná dostupnost do centra Prahy- na autobus cca 5min chůzí a 16 min na metro A Skalka. Autem skvělá dostupnost do centra- 5 min na obchvat Prahy (jižní spojka).
Nájemné je výši 23.000,-Kč/měsíčně + poplatky 3.500,- Kč/měsíčně/byt + vlastní spotřeba el. ( cca 800,-Kč/měs.) + internet + parkovací stání (není podmínkou).
Při podpisu smlouvy je třeba uhradit první nájemné + kauci + provizi RK.
Cena:
23 000 Kč / (za měsíc)
Poznámka:
+ poplatky 3.500,-Kč/měs. + vlastní spotřeba elektřiny ( cca 800,-Kč/měs.) + internet + garáž. stání
Dispozice/podlahová plocha:
2+kk/60 m²
Číslo zakázky:
REALITYMIX-235-1209
Podrobné informace
Dispozice bytu:2+kk
Číslo podlaží v domě:5
Počet podlaží objektu:7
Užitná plocha:57 m²
Celková podlahová plocha:60 m²
Druh objektu:skeletová
Stav objektu:novostavba
Vlastnictví:osobní
Balkon:6 m²
Vybaveno:ano
Umístění objektu:klidná část obce
Doprava:dálnice, MHD
Topení:Ústřední - dálkové
Energetická náročnost budovy:B - Velmi úsporná
Energetický ukazatel podle vyhlášky:č. 78/2013 Sb.
Uživatel serveru RealityMIX.cz (dále jen „Server“) dostupného na internetové adrese (URL) https://www.realitymix.cz, který provozuje společnost DALTEN media s.r.o., se sídlem Na Harfě 916/9a, Praha 9, 190 00, IČO: 271 35 306 (dále jen „Správce“) jako provozovateli tohoto Serveru uděluje svůj výslovný souhlas v souladu s ustanovením § 5 zákona č. 101/2000 Sb. O ochraně osobních údajů a o změně některých zákonů, v platném znění (dále jen „zákon o ochraně osobních údajů“), se zpracováním uživatelem poskytnutých osobních údajů a dalších dat.
Uživatel poskytuje Správci osobní údaje v rozsahu: jméno, příjmení, e-mailová adresa, telefonický kontakt a další data, a to z důvodu projeveného zájmu o nemovitost, kde prostřednictvím služby Serveru Správce osloví Uživatel inzerenta uvedeného v detailu
nemovitosti - ZAPA reality, s.r.o. (IČ 26757656) se zájmem o jeho služby.
Uživatel tyto osobní údaje poskytuje dobrovolně a bere na vědomí, že součástí služeb Správce, které Správce Uživateli poskytuje, je vyhledání všech Uživateli vyhovujících (dle parametrů - cena, typ nemovitosti, lokalita atd.) nemovitostí. Správce za tímto účelem provozuje aplikace Hlídací pes a newsletter. Tyto služby je možné z každého zaslaného emailu odhlásit. Souhlas se zpracováním osobních údajů Uživatel poskytuje Správci na dobu neurčitou s tím, že svůj udělený souhlas může Uživatel kdykoliv na drese správce info@realitymix.cz odvolat. Správce garantuje Uživateli i další práva uvedené v ustanovení §11 a §21 zákoba č. 101/200 Sb. Ve znění pozdějších předpisů.
Více informací o zpracování údajů získáte zde (realitymix.cz/zasady-ochrany-osobnich-udaju)