Požadovaný inzerát již není v naší databázi. Našli jsme ale 115 podobných
nemovitostí.
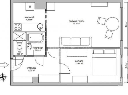
Pronájem bytů v Praze - byty k pronájmu - Praha 4
Vyhledávání nemovitostí v kategorii Pronájem bytů v Praze - byty k pronájmu - Praha 4. Vyberte si z naší nabídky nemovitostí, případně si upravte filtr vyhledávání.