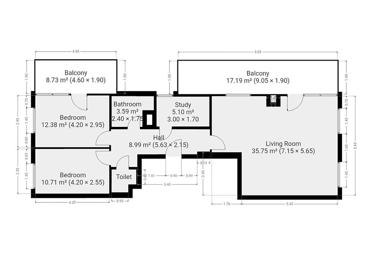
K dlouhodobému podnájmu nabízíme prostorný byt o dispozici 3+kk v moderním rezidenčním projektu Finep na adrese Čakovická 883/44, Praha 9. Byt o celkové výměře 83 m² se nachází ve 3. podlaží domu s výtahem. K bytu náleží velká terasa o rozloze 25 m², garážové stání v ceně nájmu a sklepní kóje.
Byt se nabízí nevybavený, avšak s kompletně zařízenou kuchyňskou linkou včetně varné desky, trouby, digestoře, myčky a vestavěné pračky se sušičkou. Výhodou je také praktická komora / šatna, která poskytuje dostatek úložného prostoru.
V koupelně se nachází vana, toaleta je oddělená. Z obývacího pokoje i ložnice je přímý vstup na prostornou terasu, která nabízí příjemné venkovní posezení. Součástí bude také vestavěná pračka se sušičkou.
Skvělou výhodou je pouze tříminutová pěší vzdálenost na stanici metra Prosek, díky čemuž je zajištěna výborná dostupnost do centra města. V okolí se nachází také obchodní centrum Letňany, restaurace, školy, školky a zastávky MHD.
Byt bude volný k nastěhování ihned.
Cena:
33 000 Kč / (za měsíc)
Poznámka:
vratná jistota, náklady na bydlení 8200 Kč, poplatek za podnájem
Uživatel serveru RealityMIX.cz (dále jen „Server“) dostupného na internetové adrese (URL) https://www.realitymix.cz, který provozuje společnost DALTEN media s.r.o., se sídlem Na Harfě 916/9a, Praha 9, 190 00, IČO: 271 35 306 (dále jen „Správce“) jako provozovateli tohoto Serveru uděluje svůj výslovný souhlas v souladu s ustanovením § 5 zákona č. 101/2000 Sb. O ochraně osobních údajů a o změně některých zákonů, v platném znění (dále jen „zákon o ochraně osobních údajů“), se zpracováním uživatelem poskytnutých osobních údajů a dalších dat.
Uživatel poskytuje Správci osobní údaje v rozsahu: jméno, příjmení, e-mailová adresa, telefonický kontakt a další data, a to z důvodu projeveného zájmu o nemovitost, kde prostřednictvím služby Serveru Správce osloví Uživatel inzerenta uvedeného v detailu
nemovitosti - Ideální nájemce (IČ 29300631) se zájmem o jeho služby.
Uživatel tyto osobní údaje poskytuje dobrovolně a bere na vědomí, že součástí služeb Správce, které Správce Uživateli poskytuje, je vyhledání všech Uživateli vyhovujících (dle parametrů - cena, typ nemovitosti, lokalita atd.) nemovitostí. Správce za tímto účelem provozuje aplikace Hlídací pes a newsletter. Tyto služby je možné z každého zaslaného emailu odhlásit. Souhlas se zpracováním osobních údajů Uživatel poskytuje Správci na dobu neurčitou s tím, že svůj udělený souhlas může Uživatel kdykoliv na drese správce info@realitymix.cz odvolat. Správce garantuje Uživateli i další práva uvedené v ustanovení §11 a §21 zákoba č. 101/200 Sb. Ve znění pozdějších předpisů.
Více informací o zpracování údajů získáte zde (realitymix.cz/zasady-ochrany-osobnich-udaju)