Pronájem bytu 3+kk, V lesíčku, Smíchov, 25900 Kč/měs, 51 m2
K dlouhodobému podnájmu nabízíme světlý byt o dispozici 3+kk v jedné z nejoblíbenějších částí Prahy 5 – Smíchov, v ulici V lesíčku. Byt o celkové výměře 51 m² se nachází v 5. patře udržovaného zděného domu s výtahem.
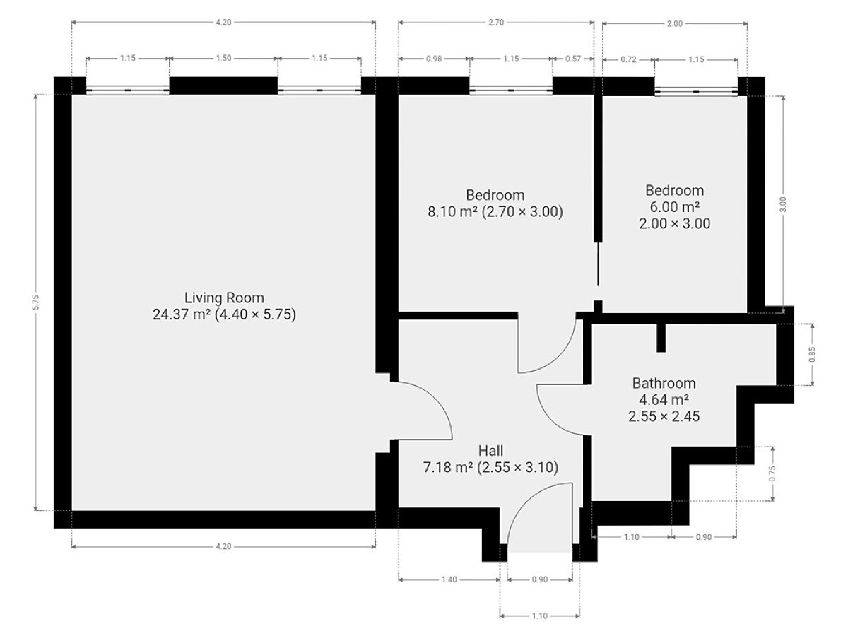
Dispozice bytu nabízí prostorný obývací pokoj s kuchyňským koutem a dvě menší samostatné místnosti, které mohou sloužit například jako ložnice, pracovna nebo pokoj pro hosty. Toto řešení je ideální pro jednotlivce či pár, kteří ocení možnost odděleného pracovního prostoru nebo šatny.
Kuchyňský kout je vybaven lednicí s mrazákem, myčkou, elektrickou troubou, varnou deskou, mikrovlnnou troubou a digestoří. Součástí obývací části je knihovna. V jedné z místností je k dispozici vestavěná skříň, druhý pokoj je nezařízený a nabízí možnost využití podle potřeb nového nájemníka.
V koupelně se nachází sprchový kout, umyvadlo se zrcadlem, pračka a toaleta. V předsíni je věšák a vestavěná skříň poskytující další úložný prostor.
Velkou výhodou bytu je především jeho poloha. Lokalita Smíchova nabízí kompletní občanskou vybavenost v bezprostředním okolí – restaurace, kavárny, supermarkety, drogerie, poliklinika, lékárna či Obchodní centrum Nový Smíchov. V pěší vzdálenosti jsou také oblíbené parky a zelené plochy, například Zahrada Kinských, Petřínské sady nebo park Sacré Coeur.
Pár minut chůze od domu se nachází tramvajová a autobusová zastávka Švandovo divadlo a v docházkové vzdálenosti je stanice metra B – Anděl, která zajišťuje výborné spojení do centra města.
Majitel preferuje zájemce bez domácích mazlíčků.
Byt je volný k nastěhování ihned.
Prohlídky jsou možné po domluvě. V případě zájmu nám napište pár informací o sobě a rádi se vám ozveme s termínem prohlídky.
Cena:
25 900 Kč / (za měsíc)
Poznámka:
vratná jistota, náklady na bydlení 4 923 Kč, poplatek za podnájem
Dispozice/podlahová plocha:
3+kk/51 m²
Číslo zakázky:
REALITYMIX-7279
Podrobné informace
Dispozice bytu:3+kk
Číslo podlaží v domě:6
Počet podlaží objektu:7
Celková podlahová plocha:51 m²
Druh objektu:cihlová
Stav objektu:velmi dobrý
Vlastnictví:osobní
Umístění objektu:klidná část obce
Doprava:vlak, dálnice, silnice, MHD, autobus
Občanská vybavenost:Škola, Školka, Zdravotnická zařízení, Pošta, Supermarket, Kompletní síť obchodů a služeb
Uživatel serveru RealityMIX.cz (dále jen „Server“) dostupného na internetové adrese (URL) https://www.realitymix.cz, který provozuje společnost DALTEN media s.r.o., se sídlem Na Harfě 916/9a, Praha 9, 190 00, IČO: 271 35 306 (dále jen „Správce“) jako provozovateli tohoto Serveru uděluje svůj výslovný souhlas v souladu s ustanovením § 5 zákona č. 101/2000 Sb. O ochraně osobních údajů a o změně některých zákonů, v platném znění (dále jen „zákon o ochraně osobních údajů“), se zpracováním uživatelem poskytnutých osobních údajů a dalších dat.
Uživatel poskytuje Správci osobní údaje v rozsahu: jméno, příjmení, e-mailová adresa, telefonický kontakt a další data, a to z důvodu projeveného zájmu o nemovitost, kde prostřednictvím služby Serveru Správce osloví Uživatel inzerenta uvedeného v detailu
nemovitosti - Ideální nájemce (IČ 29300631) se zájmem o jeho služby.
Uživatel tyto osobní údaje poskytuje dobrovolně a bere na vědomí, že součástí služeb Správce, které Správce Uživateli poskytuje, je vyhledání všech Uživateli vyhovujících (dle parametrů - cena, typ nemovitosti, lokalita atd.) nemovitostí. Správce za tímto účelem provozuje aplikace Hlídací pes a newsletter. Tyto služby je možné z každého zaslaného emailu odhlásit. Souhlas se zpracováním osobních údajů Uživatel poskytuje Správci na dobu neurčitou s tím, že svůj udělený souhlas může Uživatel kdykoliv na drese správce info@realitymix.cz odvolat. Správce garantuje Uživateli i další práva uvedené v ustanovení §11 a §21 zákoba č. 101/200 Sb. Ve znění pozdějších předpisů.
Více informací o zpracování údajů získáte zde (realitymix.cz/zasady-ochrany-osobnich-udaju)