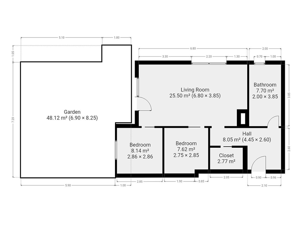
K dlouhodobému podnájmu nabízíme byt 3+kk o velikosti 61 m² v klidné části Prahy 19 – Kbely. Nachází se v 1. nadzemním podlaží moderního domu s výtahem a jeho největší předností je vlastní terasa se zahradou. Tento venkovní prostor umožňuje pěstovat bylinky a zeleninu, vytvořit si malý kout s posezením, prostor pro hry dětí nebo letní posezení a práci na notebooku mimo čtyři stěny – přidává bytu rozměr, který u podobně velkých dispozic často chybí.
Obývací pokoj s kuchyňským koutem tvoří hlavní obytný prostor bytu a plynule navazuje na terasu. Kuchyň je plně vybavena (lednice s mrazákem, myčka, trouba, varná deska, mikrovlnná trouba, digestoř) a nabízí pohodlné místo k vaření i stolování u jídelního stolu. Obývací část je zařízena pohovkou, pracovním stolem a vestavěnou knihovnou, která poskytuje dostatek úložného prostoru, aniž by místnost působila přeplněně.
Byt má dále dva samostatné pokoje. Jeden je světlý, s oknem, aktuálně vybavený patrovou postelí, dvojicí pracovních stolů, knihovnami a dostatkem úložných prostor. Druhý pokoj, přístupný přes posuvné dveře z obývacího pokoje, slouží jako klidová ložnice – je tichý a nabízí pohodlné spaní i vestavěné úložné prostory. Samostatná šatna výrazně pomáhá udržet byt vzdušný a přehledný. Předsíň je vybavena skříní, botníkem a věšákem, takže odkládání oděvů a obuvi je pohodlné. Koupelna působí prostorně – kromě vany, umyvadla a zrcadla zde najdete praktickou koupelnovou skříňku, pračku a toaletu.
Kbely patří mezi okrajové části Prahy s převahou rodinných domů a menšími bytovými domy. V okolí se nachází několik parků a zelených ploch. V docházkové vzdálenosti najdete supermarket, kavárny, restaurace, poštu, polikliniku i lékárnu, stejně jako mateřskou a základní školu. Pro volný čas je k dispozici Centrální park Kbely, Lesopark Letňany nebo Krajinný park Havraňák. V blízkosti je také sportovní hala, golfové hřiště a místní knihovna.
Autobusová zastávka Kbely je pár minut chůze od domu (cca 6 minut na metro C – Letňany, cca 18 minut na metro B – Černý Most). Velkou výhodou je vlaková stanice Praha–Kbely v docházkové vzdálenosti. Na pražské hlavní nádraží se dostanete přibližně za 19 minut přímým spojem, bez nutnosti kombinovat více linek – spojení do centra je rychlé a spolehlivé.
Byt nemá vlastní parkovací stání, parkování je možné na ulici v okolí domu.
Byt ocení ti, kdo hledají bydlení s vlastním venkovním prostorem a zároveň chtějí zůstat v rámci Prahy. Podobných bytů s terasou a zahradou je v této lokalitě velmi málo a nabídka nájemního bydlení ve Kbelích je omezená.
Majitel preferuje zájemce bez domácích mazlíčků.
Byt je volný k nastěhování ihned.
Prohlídky jsou možné po domluvě. V případě zájmu nám napište krátkou zprávu o sobě a rádi se vám ozveme s termínem prohlídky.
Cena:
27 900 Kč / (za měsíc)
Poznámka:
vratná jistota, náklady na bydlení 5 593 Kč (včetně elektřiny a internetu), poplatek za podnájem
Dispozice/podlahová plocha:
3+kk/61 m²
Číslo zakázky:
REALITYMIX-7343
Podrobné informace
Dispozice bytu:3+kk
Číslo podlaží v domě:1
Počet podlaží objektu:5
Celková podlahová plocha:61 m²
Druh objektu:cihlová
Stav objektu:velmi dobrý
Vlastnictví:osobní
Vybaveno:ano
Umístění objektu:klidná část obce
Doprava:vlak, dálnice, silnice, MHD, autobus
Občanská vybavenost:Škola, Školka, Zdravotnická zařízení, Pošta, Supermarket, Kompletní síť obchodů a služeb
Uživatel serveru RealityMIX.cz (dále jen „Server“) dostupného na internetové adrese (URL) https://www.realitymix.cz, který provozuje společnost DALTEN media s.r.o., se sídlem Na Harfě 916/9a, Praha 9, 190 00, IČO: 271 35 306 (dále jen „Správce“) jako provozovateli tohoto Serveru uděluje svůj výslovný souhlas v souladu s ustanovením § 5 zákona č. 101/2000 Sb. O ochraně osobních údajů a o změně některých zákonů, v platném znění (dále jen „zákon o ochraně osobních údajů“), se zpracováním uživatelem poskytnutých osobních údajů a dalších dat.
Uživatel poskytuje Správci osobní údaje v rozsahu: jméno, příjmení, e-mailová adresa, telefonický kontakt a další data, a to z důvodu projeveného zájmu o nemovitost, kde prostřednictvím služby Serveru Správce osloví Uživatel inzerenta uvedeného v detailu
nemovitosti - Ideální nájemce (IČ 29300631) se zájmem o jeho služby.
Uživatel tyto osobní údaje poskytuje dobrovolně a bere na vědomí, že součástí služeb Správce, které Správce Uživateli poskytuje, je vyhledání všech Uživateli vyhovujících (dle parametrů - cena, typ nemovitosti, lokalita atd.) nemovitostí. Správce za tímto účelem provozuje aplikace Hlídací pes a newsletter. Tyto služby je možné z každého zaslaného emailu odhlásit. Souhlas se zpracováním osobních údajů Uživatel poskytuje Správci na dobu neurčitou s tím, že svůj udělený souhlas může Uživatel kdykoliv na drese správce info@realitymix.cz odvolat. Správce garantuje Uživateli i další práva uvedené v ustanovení §11 a §21 zákoba č. 101/200 Sb. Ve znění pozdějších předpisů.
Více informací o zpracování údajů získáte zde (realitymix.cz/zasady-ochrany-osobnich-udaju)