Pronájem kanceláří 400m2 v centru Prahy, Staré město, ul. Na Příkopě
Realitní společnost GEPADR nabízí k pronájmu kanceláře o ploše 400m2 v domě v ul. Na Příkopě 29, Staré Město. Prostory jsou vhodné i pro školy.
Je možné pronajmout jednotlivé patro/patra nebo celý objekt tj. 2169m2 kromě přízemí.
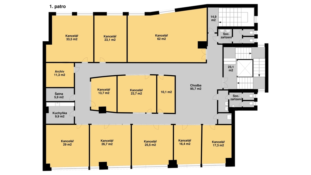
1. patro - 461m2, 12 místností od 10m2 do 62m2, 2x toalety, kuchyňka, skládek
2. patro - 442m2, 9 místností od 17m2 do 38m2, 2x toalety, kuchyňka, 3 místnosti bez oken
3. patro - 460m2 (terasa), 11 místností od 13m2 do 52m2, 3x toalety, kuchyňka, skládek
4. patro - 400m2 , 12 místností, 4x toalety, kuchyňka, 2x skládek
5. patro - 404m2 + terasa 26m2, 11 místností od 12m2 do 30m2, 5x toalety, 2x kuchyňka, skládek
více viz. plánky.
Vytápění je řešeno plynovým kotlem, je zde instalována klimatizace, EPS a EZS, výtah, k dispozici je ostraha 24/7.
Jedná se o podnájem od České spořitelny od 1.9.2026 do 30.6.2029 s možností pokračování v nájmu (dle dohody s majitelem).
Více informací na uvedených kontaktech.
Cena:
Cena na vyžádání
Poznámka:
+ poplatky, provize se neplatí
Datum k nastěhování:
01.09.2025
Číslo zakázky:
REALITYMIX-11901
Podrobné informace
Plocha:400 m²
Plocha parcely:560 m²
Druh objektu:cihlová
Stav objektu:velmi dobrý
Druh prostor:Kanceláře
Ostatní:Výtah
Umístění objektu:centrum obce
Voda:Voda - dálkový vodovod
Odpad:Kanalizace
Energetická náročnost budovy:D - Méně úsporná
Energetický ukazatel podle vyhlášky:č. 264/2020 Sb.
Uživatel serveru RealityMIX.cz (dále jen „Server“) dostupného na internetové adrese (URL) https://www.realitymix.cz, který provozuje společnost DALTEN media s.r.o., se sídlem Na Harfě 916/9a, Praha 9, 190 00, IČO: 271 35 306 (dále jen „Správce“) jako provozovateli tohoto Serveru uděluje svůj výslovný souhlas v souladu s ustanovením § 5 zákona č. 101/2000 Sb. O ochraně osobních údajů a o změně některých zákonů, v platném znění (dále jen „zákon o ochraně osobních údajů“), se zpracováním uživatelem poskytnutých osobních údajů a dalších dat.
Uživatel poskytuje Správci osobní údaje v rozsahu: jméno, příjmení, e-mailová adresa, telefonický kontakt a další data, a to z důvodu projeveného zájmu o nemovitost, kde prostřednictvím služby Serveru Správce osloví Uživatel inzerenta uvedeného v detailu
nemovitosti - GEPARD REALITY/Absoluta Real (IČ 28947444) se zájmem o jeho služby. Tato společnost je součástí seskupení/sítě/franšízového modelu realitních kanceláří, jejich seznam můžete zobrazit kliknutím na tento odkaz.
GEPARD REALITY/BOARS (IČ 26066734) , GEPARD REALITY/AB Domus (IČ 27611736) , GEPARD REALITY/Absoluta Real (IČ 28947444) , GEPARD REALITY/REALITY MUZEJKA (IČ 60739606) , GEPARD REALITY/KWitka Group Reality (IČ 06295428) , GEPARD REALITY/Pallas Athena Group (IČ 28528263) , GEPARD REALITY/Living (IČ 27892531) , GEPARD REALITY/Tobi reality a finance (IČ 11733837) , GEPARD REALITY/Nesreality (IČ 08480150) , GEPARD REALITY/ČESKÁ HYPOTEČNÍ reality (IČ 14153971) , GEPARD REALITY/Specialisté na bydlení (IČ 04779282) , GEPARD REALITY/New Home (IČ 14053365) , GEPARD REALITY/Dream nemovitosti (IČ 17567807) , GEPARD REALITY/Omega Real Estate Agency (IČ 17637635) , GEPARD REALITY/ILIĆ REALITY (IČ 07656645) , GEPARD REALITY/Motyčka Reality a Finance (IČ 21201722) , GEPARD REALITY/MARATHON Reality (IČ 21674451) , GEPARD REALITY/Kuba’s Eleven (IČ 21678294) , GEPARD REALITY/Reality & Hypotéky (IČ 23001356) , GEPARD REALITY/WestVary (IČ 23808756) , GEPARD REALITY (IČ 28528263)
Uživatel tyto osobní údaje poskytuje dobrovolně a bere na vědomí, že součástí služeb Správce, které Správce Uživateli poskytuje, je vyhledání všech Uživateli vyhovujících (dle parametrů - cena, typ nemovitosti, lokalita atd.) nemovitostí. Správce za tímto účelem provozuje aplikace Hlídací pes a newsletter. Tyto služby je možné z každého zaslaného emailu odhlásit. Souhlas se zpracováním osobních údajů Uživatel poskytuje Správci na dobu neurčitou s tím, že svůj udělený souhlas může Uživatel kdykoliv na drese správce info@realitymix.cz odvolat. Správce garantuje Uživateli i další práva uvedené v ustanovení §11 a §21 zákoba č. 101/200 Sb. Ve znění pozdějších předpisů.
Více informací o zpracování údajů získáte zde (realitymix.cz/zasady-ochrany-osobnich-udaju)