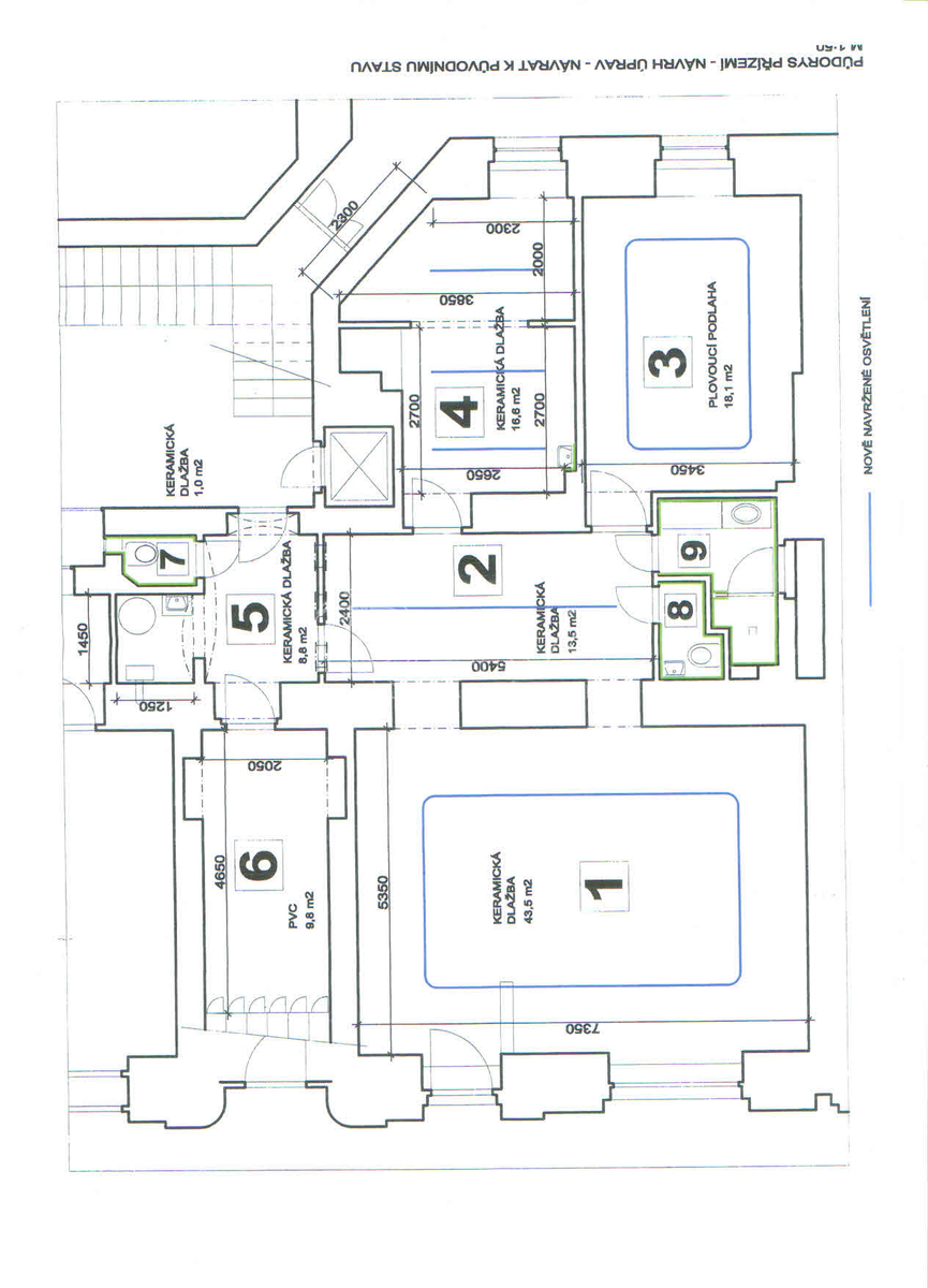
Zprostředkuji Vám pronájem obchodního prostoru, s výměrou 128 m2, na pražském Smíchově, v secesním domě ve Zborovské ulici. Tyto bezbariérové obchodní prostory se nachází přímo u náměstí 14. října. Hlavní místnost (50m²) má prostornou výlohu do ulice Zborovská. Nad výlohou je umístěn světelný reklamní banner. Rozsáhlé zázemí tvoří dvě místnosti, koupelna se sprchovým koutem, dvě toalety, místnost skladová a technická (pro přesnou představu plánek v galerii fotek). Vytápění je zajištěno etážovým kotlem, ohřev vody bojlerem. V prostorách zaveden 3-fázový proud, jistič 3x32A. Použité podlahové krytiny: zátěžové koberce a dlažba.
Měsíční náklady: nájemné + služby 1.400 Kč + přepis elektrické energie a plynu na nájemce. Parkování v místě na placených zónách či v OC Nový Smíchov. Dobrá dopravní dostupnost - Metro linky B (Anděl) 5 minut chůze, tramvajová stanice Zborovská minuta chůze. Jistota ve výši 70.000 Kč + odměna zprostředkovatele. Prostory jsou vhodné např. pro prodejnu, nábytkové studio, internetový obchod s e-shopem. Nelze na gastro, potraviny, večerku, kosmetické a kadeřnické služby, aktivity s hlučným provozem, apod.
Prohlídky jsou možné po dohodě, k nastěhování od 1.2.2026
Uživatel serveru RealityMIX.cz (dále jen „Server“) dostupného na internetové adrese (URL) https://www.realitymix.cz, který provozuje společnost DALTEN media s.r.o., se sídlem Na Harfě 916/9a, Praha 9, 190 00, IČO: 271 35 306 (dále jen „Správce“) jako provozovateli tohoto Serveru uděluje svůj výslovný souhlas v souladu s ustanovením § 5 zákona č. 101/2000 Sb. O ochraně osobních údajů a o změně některých zákonů, v platném znění (dále jen „zákon o ochraně osobních údajů“), se zpracováním uživatelem poskytnutých osobních údajů a dalších dat.
Uživatel poskytuje Správci osobní údaje v rozsahu: jméno, příjmení, e-mailová adresa, telefonický kontakt a další data, a to z důvodu projeveného zájmu o nemovitost, kde prostřednictvím služby Serveru Správce osloví Uživatel inzerenta uvedeného v detailu
nemovitosti - QARA s.r.o. (IČ 01740113) se zájmem o jeho služby. Tato společnost je součástí seskupení/sítě/franšízového modelu realitních kanceláří, jejich seznam můžete zobrazit kliknutím na tento odkaz.
QARA s.r.o. Ostrava (IČ 01740113) , QARA s.r.o. Brno (IČ 01740113) , QARA s.r.o. (IČ 01740113)
Uživatel tyto osobní údaje poskytuje dobrovolně a bere na vědomí, že součástí služeb Správce, které Správce Uživateli poskytuje, je vyhledání všech Uživateli vyhovujících (dle parametrů - cena, typ nemovitosti, lokalita atd.) nemovitostí. Správce za tímto účelem provozuje aplikace Hlídací pes a newsletter. Tyto služby je možné z každého zaslaného emailu odhlásit. Souhlas se zpracováním osobních údajů Uživatel poskytuje Správci na dobu neurčitou s tím, že svůj udělený souhlas může Uživatel kdykoliv na drese správce info@realitymix.cz odvolat. Správce garantuje Uživateli i další práva uvedené v ustanovení §11 a §21 zákoba č. 101/200 Sb. Ve znění pozdějších předpisů.
Více informací o zpracování údajů získáte zde (realitymix.cz/zasady-ochrany-osobnich-udaju)