Pronájem obchodního prostoru v blízkosti městské části Malá Strana, Deinzenhoferovi sady, Praha 5
Nabízíme k pronájmu prostory v lukrativní oblasti v blízkosti městské části Malá Strana, jen pár desítek metrů vedle Vltavy na adrese Dienzenhoferovy sady, část obce Smíchov, obec Praha, okres Praha 5.
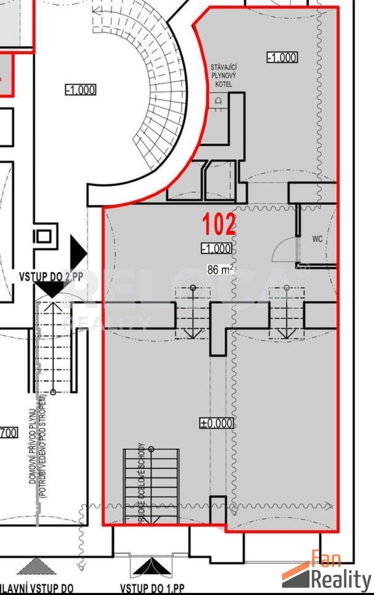
K dispozici je zde jednopodlažní prostor, který se nachází v přízemí cihlového domu a je před rekonstrukcí, což nabízí potenciál pro vytvoření atraktivního a moderního prostoru dle vlastních představ. Tuto nemovitost lze díky dvěma samostatným vchodům, rozmanitému prostoru a sdíleným dvorem se sousedem provozovat například jako: kavárnu, salon, obchod, bar, kanceláře a mnohem další.
Díky své výhodné poloze v dynamické části Prahy je oblast vyhledávaná jak místními obyvateli, tak turisty a zajišťuje nejrůznější možnosti generování příjmů a přilákání různých cílových skupin.
Pokud hledáte prostor pro Váš byznys s vyšší návratností a chcete úspěšně vykročit na trh, pak tato nemovitost v centru Prahy je skvělá volba.
Měsíční nájem činí 38 000,-
Celkové měsíční poplatky činí 2000,- + elektřina a plyn.
Vratná kauce činí 50 000,- + provize RK ve výši jednoho nájmu.
V případě zájmu o prohlídku nás neváhejte kontaktovat.
Cena:
38 000 Kč / (za měsíc)
Datum k nastěhování:
15.11.2025
Číslo zakázky:
REALITYMIX-0069
Podrobné informace
Plocha kanceláří:86 m²
Druh objektu:cihlová
Stav objektu:před rekonstrukcí
Druh prostor:Obchodní
Ostatní:Výtah
Umístění objektu:centrum obce
Doprava:silnice, MHD
Voda:Voda - dálkový vodovod
Plyn:Plynovod
Odpad:Kanalizace
Energetická náročnost budovy:E - Nehospodárná
Energetický ukazatel podle vyhlášky:č. 78/2013 Sb.
Uživatel serveru RealityMIX.cz (dále jen „Server“) dostupného na internetové adrese (URL) https://www.realitymix.cz, který provozuje společnost DALTEN media s.r.o., se sídlem Na Harfě 916/9a, Praha 9, 190 00, IČO: 271 35 306 (dále jen „Správce“) jako provozovateli tohoto Serveru uděluje svůj výslovný souhlas v souladu s ustanovením § 5 zákona č. 101/2000 Sb. O ochraně osobních údajů a o změně některých zákonů, v platném znění (dále jen „zákon o ochraně osobních údajů“), se zpracováním uživatelem poskytnutých osobních údajů a dalších dat.
Uživatel poskytuje Správci osobní údaje v rozsahu: jméno, příjmení, e-mailová adresa, telefonický kontakt a další data, a to z důvodu projeveného zájmu o nemovitost, kde prostřednictvím služby Serveru Správce osloví Uživatel inzerenta uvedeného v detailu
nemovitosti - Fan reality (IČ 24275247) se zájmem o jeho služby.
Uživatel tyto osobní údaje poskytuje dobrovolně a bere na vědomí, že součástí služeb Správce, které Správce Uživateli poskytuje, je vyhledání všech Uživateli vyhovujících (dle parametrů - cena, typ nemovitosti, lokalita atd.) nemovitostí. Správce za tímto účelem provozuje aplikace Hlídací pes a newsletter. Tyto služby je možné z každého zaslaného emailu odhlásit. Souhlas se zpracováním osobních údajů Uživatel poskytuje Správci na dobu neurčitou s tím, že svůj udělený souhlas může Uživatel kdykoliv na drese správce info@realitymix.cz odvolat. Správce garantuje Uživateli i další práva uvedené v ustanovení §11 a §21 zákoba č. 101/200 Sb. Ve znění pozdějších předpisů.
Více informací o zpracování údajů získáte zde (realitymix.cz/zasady-ochrany-osobnich-udaju)