Pronájem rodinného domu K5, 5+kk, plocha 114 m2, pozemek 368 m2, ul. Lipoltická, Praha - Vinoř
Dům je součástí dvojdomu, levá polovina. Zahrada orientována na jihozápad. Slunný pozemek, rodinné bydlení, vzdušné a prostorné místo. Klid. Děti vítány.
Před domem 2 parkovací stání na vlastním pozemku, další možnosti parkování v rámci ulice součástí obytné zóny.
Zahrada založená s travnatou plochou, terasou se zastřešením a zahradním skladem. Dům byl užíván doposud majitelem a jeho rodinou, proto můžete využít zázemí dětského hřiště, trampolíny a menšího místa pro pěstování ovoce, zeleniny.
Údržba, opravy, výmalba proběhla, připraveno k nastěhování pro prvního nájemníka.
Nájemní smlouva na 1 rok s možností prodloužení, preferujeme 2 a více let. Měsíční nájem 55.000,- Kč + služby 5.000,- / měs. (elektřina, voda, svoz odpadu, vše zálohově, každý rok vyúčtování, vše u PRE a Veolia/PVK). + internet Optika O2 250mBit za 399,- / měs.
Spotřeba nastavena a ověřena reálným provozem domu 2+3děti.
Nájemné se platí k 20. v měsíci na měsíc následující.
Součástí nájemní smlouvy Inflační doložka a povinnost sjednat pojištění odpovědnosti. Doporučujeme sjednat pojištění domácnosti.
Jistota (kauce) 110.000,- Kč. První nájem a jistota splatná při podpisu Nájemní smlouvy.
Odměna RK 60.000,-.
Upozorňujeme, že Zájemce bude požádán o vyplnění krátkého formuláře. Rádi bychom se o Vás dozvěděli základní informace.
Preferujeme bez domácích mazlíčků a nekuřáky. Dohoda možná.
Dům vybaven:
- kuchyňská linka vč. spotřebičů: lednice, mrazák, myčka, dřez, mikrovlnka, trouba, varná indukční deska, digestoř,
- interiérové osvětlení, zrcadla a nábytek v koupelně
- předokenní žaluzie ve všech oknech, dálkově ovl., ovl. přes TaHoma, sítě proti hmyzu na vybraných oknech
- založená zahrada, trávník, rostliny, stromy, zahradní sklad
Úložný prostor:
- v 1.NP: ve vstupu botník a vestav skříň
- šatna/pracovna vestavěná skříň
- ve 2.NP v každé ze 3 ložnic vestavěná skříň
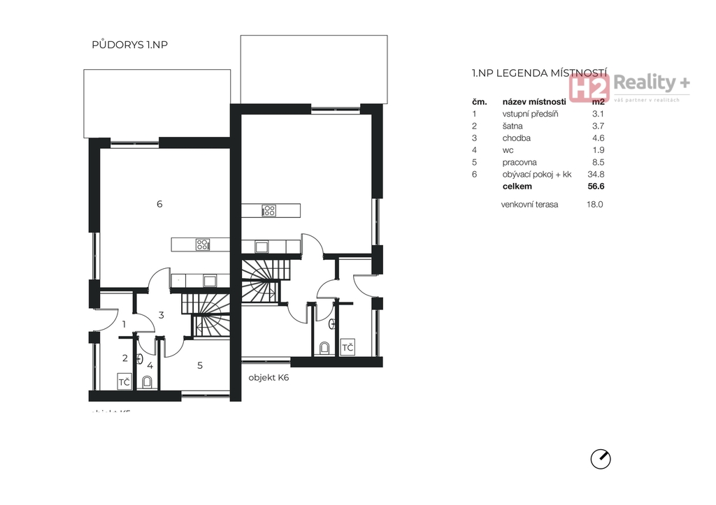
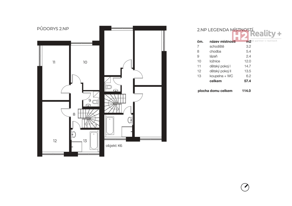
Dispozice:
1.NP:
vstup s technologií umístěné mimo manipulační prostor, chodba, samostatné WC, menší pracovna nebo úložný prostor/šatna a vstup do obývacího pokoje, z obývacího pokoje výstup na terasu
2.NP: samostatné WC s prostorem pro pračku a sušičku, koupelna s vanou a sprch. koutem, 3 ložnice
Dům je vybaven základním vestavěným nábytkem viz foto, úložným prostorem a svítidly. Dokončen byl v 1Q2019 a užíván k rodinnému bydlení současným a prvním majitelem.
Cena:
55 000 Kč / (za měsíc)
Poznámka:
+ služby 5.000,- / měs.
Datum k nastěhování:
08.04.2026
Číslo zakázky:
REALITYMIX-0381
Podrobné informace
Poloha objektu:řadový
Druh objektu:cihlová
Stav objektu:velmi dobrý
Počet podlaží objektu:2
Typ domu:přízemní
Zastavěná plocha:73 m²
Plocha parcely:368 m²
Užitná plocha:114 m²
Doprava:MHD
Elektřina:Elektro - 230 V
Voda:Voda - dálkový vodovod
Odpad:Kanalizace
Energetická náročnost budovy:B - Velmi úsporná
Ukazatel energetické náročnosti budovy:91 kWh/m²
Energetický ukazatel podle vyhlášky:č. 78/2013 Sb.
Uživatel serveru RealityMIX.cz (dále jen „Server“) dostupného na internetové adrese (URL) https://www.realitymix.cz, který provozuje společnost DALTEN media s.r.o., se sídlem Na Harfě 916/9a, Praha 9, 190 00, IČO: 271 35 306 (dále jen „Správce“) jako provozovateli tohoto Serveru uděluje svůj výslovný souhlas v souladu s ustanovením § 5 zákona č. 101/2000 Sb. O ochraně osobních údajů a o změně některých zákonů, v platném znění (dále jen „zákon o ochraně osobních údajů“), se zpracováním uživatelem poskytnutých osobních údajů a dalších dat.
Uživatel poskytuje Správci osobní údaje v rozsahu: jméno, příjmení, e-mailová adresa, telefonický kontakt a další data, a to z důvodu projeveného zájmu o nemovitost, kde prostřednictvím služby Serveru Správce osloví Uživatel inzerenta uvedeného v detailu
nemovitosti - H2Reality+ (IČ 28937678) se zájmem o jeho služby.
Uživatel tyto osobní údaje poskytuje dobrovolně a bere na vědomí, že součástí služeb Správce, které Správce Uživateli poskytuje, je vyhledání všech Uživateli vyhovujících (dle parametrů - cena, typ nemovitosti, lokalita atd.) nemovitostí. Správce za tímto účelem provozuje aplikace Hlídací pes a newsletter. Tyto služby je možné z každého zaslaného emailu odhlásit. Souhlas se zpracováním osobních údajů Uživatel poskytuje Správci na dobu neurčitou s tím, že svůj udělený souhlas může Uživatel kdykoliv na drese správce info@realitymix.cz odvolat. Správce garantuje Uživateli i další práva uvedené v ustanovení §11 a §21 zákoba č. 101/200 Sb. Ve znění pozdějších předpisů.
Více informací o zpracování údajů získáte zde (realitymix.cz/zasady-ochrany-osobnich-udaju)