Dovoluji si vám nabídnout soubor staveb v obci Radim.
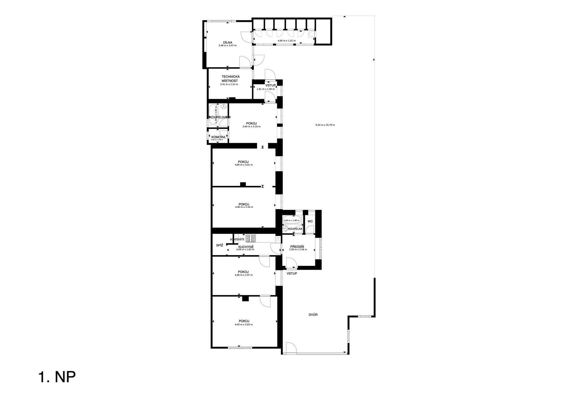
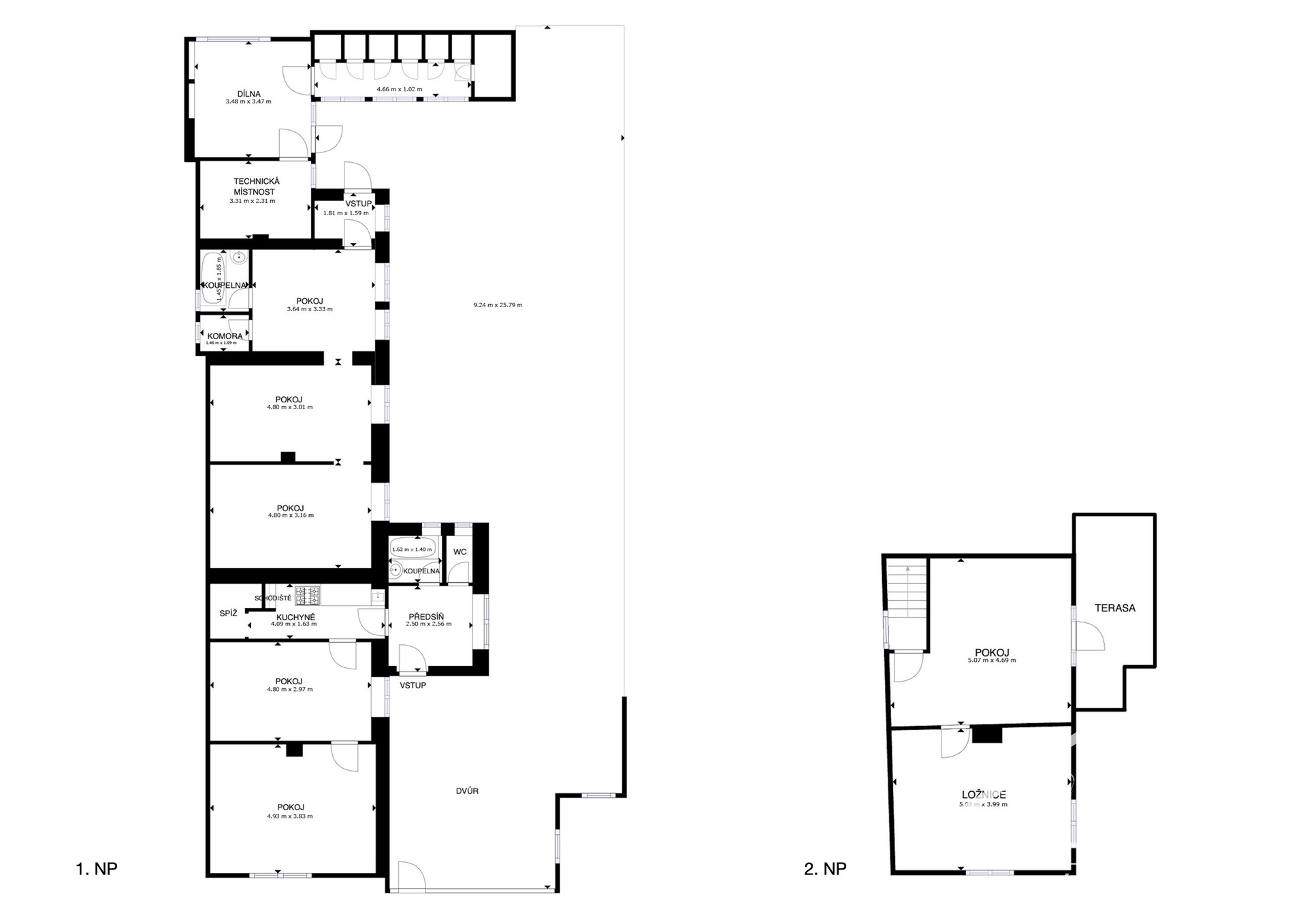
První stavbou je dům s č.p. postavený v roce 1971. Do domu vstoupíte verandou, ve které naleznete sociální zařízení. V chodbičce v přízemí je umístěna kuchyňská linka se dřezem, spíž a schody do 1.NP. Vlevo od kuchyňské linky jsou pak dva průchozí pokoje. V 1.NP naleznete dva další pokoje a vstup na balkon.
Na tento dům navazuje původní rodinný dům o dispozici 2+1, který je určen buď ke kompletní rekonstrukci, nebo demolici. Na pozemku se dále nachází vedlejší stavby - garáž, kotelna a dílny.
Veškeré stavby jsou určeny k rekonstrukci. Dům je napojen na plyn, obecní vodu, vytápění plynovým kotlem.
Největší devizou je však pozemek samotný. Umístěn je v klidné části obce, přesto v centru.
V obci naleznete základní občanskou vybavenost - dva obchody, poštu, MŠ a ZŠ do 5. třídy, ordinaci obvodního lékaře a box Zásilkovny.
Doporučuji prohlídku.
Majitel si vyhrazuje právo vybrat zájemce na základě jím zvolených kritérií.
Financování koupě této nemovitosti Vám ráda pomůžu zajistit.
Pomocí naší hypoteční kalkulačky si můžete udělat orientační představu o výši měsíčních splátek hypotéky. O vše ostatní se pak postaráme my ve spolupráci s našimi obchodními partnery.
21 539 Kč
* Odhadovaná měsíční splátka vychází z výše úvěru Kč s pevnou úrokovou sazbou % po celou dobu trvání úvěru.
Uživatel serveru RealityMIX.cz (dále jen „Server“) dostupného na internetové adrese (URL) https://www.realitymix.cz, který provozuje společnost DALTEN media s.r.o., se sídlem Na Harfě 916/9a, Praha 9, 190 00, IČO: 271 35 306 (dále jen „Správce“) jako provozovateli tohoto Serveru uděluje svůj výslovný souhlas v souladu s ustanovením § 5 zákona č. 101/2000 Sb. O ochraně osobních údajů a o změně některých zákonů, v platném znění (dále jen „zákon o ochraně osobních údajů“), se zpracováním uživatelem poskytnutých osobních údajů a dalších dat.
Uživatel poskytuje Správci osobní údaje v rozsahu: jméno, příjmení, e-mailová adresa, telefonický kontakt a další data, a to z důvodu projeveného zájmu o nemovitost, kde prostřednictvím služby Serveru Správce osloví Uživatel inzerenta uvedeného v detailu
nemovitosti - TOP MAKLÉŘKY (IČ 69639281) se zájmem o jeho služby.
Uživatel tyto osobní údaje poskytuje dobrovolně a bere na vědomí, že součástí služeb Správce, které Správce Uživateli poskytuje, je vyhledání všech Uživateli vyhovujících (dle parametrů - cena, typ nemovitosti, lokalita atd.) nemovitostí. Správce za tímto účelem provozuje aplikace Hlídací pes a newsletter. Tyto služby je možné z každého zaslaného emailu odhlásit. Souhlas se zpracováním osobních údajů Uživatel poskytuje Správci na dobu neurčitou s tím, že svůj udělený souhlas může Uživatel kdykoliv na drese správce info@realitymix.cz odvolat. Správce garantuje Uživateli i další práva uvedené v ustanovení §11 a §21 zákoba č. 101/200 Sb. Ve znění pozdějších předpisů.
Více informací o zpracování údajů získáte zde (realitymix.cz/zasady-ochrany-osobnich-udaju)