Nabízím k prodeji rodinný dům s dispozicí 5+kk, který se nachází v klidné lokalitě.Nemovitost mám v osobním vlastnictví a celkový stav domu je opravdu velmi dobrý. Dům je součástí smíšené budovy a jeho interiér je kompletně vybavený.
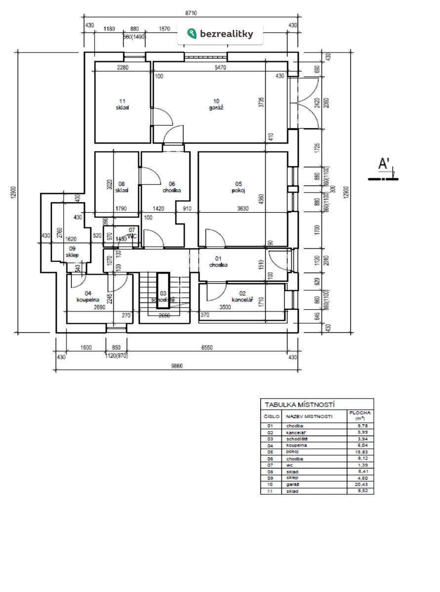
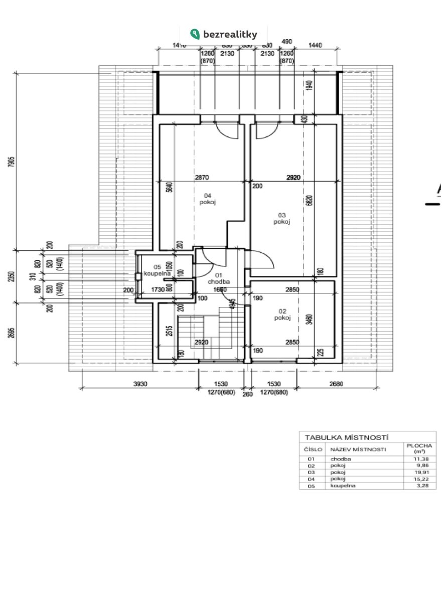
Celková obytná plocha činí 200 m², což je ideální rozměr pro rodinu hledající dostatek prostoru. Součástí domu je prostorný balkón o rozloze 20 m², lodžie s plochou 18 m²s výhledem na Lysou horu.V suterénu sklep o výměře 20 m²,technické zázemí,dřevník,uhelna,kancelář ,vybavená další kuchyně,prádelna s vanou a umyvadlem,samostatné WC.Přízemí-obývací pokoj propojen s kuchyní,ložnice,WC,koupelna.1NP 3x pokoj,koupelna s WC.
Dům stojí na pozemku o výměře 420 m², což zajišťuje dostatek venkovního prostoru pro volnočasové aktivity či zahradničení. Parkování u nemovitosti není problém, neboť je zde vyhrazené parkovací místo navíc s garáží, která ocení každý majitel automobilu.
Štítek energetické náročnosti budovy je kategorie D, což potvrzuje poměrně úsporný provoz domu. Veškeré detaily byly pečlivě zohledněny, aby dům splňoval požadavky na moderní a pohodlné bydlení. Pro další informace a domluvení prohlídky je možné mě kontaktovat skrz zprávy či komunikační platformu. Tato nemovitost je určena výhradně přímým zájemcům o koupi. Na inzerát můžete také reagovat přímo na webu Bezrealitky: https://www.bezrealitky.cz/nemovitosti-byty-domy/950048-nabidka-prodej-domu-rokytnice-nad-jizerou
Pomocí naší hypoteční kalkulačky si můžete udělat orientační představu o výši měsíčních splátek hypotéky. O vše ostatní se pak postaráme my ve spolupráci s našimi obchodními partnery.
40 447 Kč
* Odhadovaná měsíční splátka vychází z výše úvěru Kč s pevnou úrokovou sazbou % po celou dobu trvání úvěru.
reklama
reklama
Mapa
* Umístění na mapě je na základě GPS informací dodaných realitní kanceláří.
* Pozice na mapě je pouze orientační.
Souhlas se zpracováním osobních údajů
Uživatel serveru RealityMIX.cz (dále jen „Server“) dostupného na internetové adrese (URL) https://www.realitymix.cz, který provozuje společnost DALTEN media s.r.o., se sídlem Na Harfě 916/9a, Praha 9, 190 00, IČO: 271 35 306 (dále jen „Správce“) jako provozovateli tohoto Serveru uděluje svůj výslovný souhlas v souladu s ustanovením § 5 zákona č. 101/2000 Sb. O ochraně osobních údajů a o změně některých zákonů, v platném znění (dále jen „zákon o ochraně osobních údajů“), se zpracováním uživatelem poskytnutých osobních údajů a dalších dat.
Uživatel poskytuje Správci osobní údaje v rozsahu: jméno, příjmení, e-mailová adresa, telefonický kontakt a další data, a to z důvodu projeveného zájmu o nemovitost, kde prostřednictvím služby Serveru Správce osloví Uživatel inzerenta uvedeného v detailu
nemovitosti - Bezrealitky s.r.o. (IČ 08063168) se zájmem o jeho služby.
Uživatel tyto osobní údaje poskytuje dobrovolně a bere na vědomí, že součástí služeb Správce, které Správce Uživateli poskytuje, je vyhledání všech Uživateli vyhovujících (dle parametrů - cena, typ nemovitosti, lokalita atd.) nemovitostí. Správce za tímto účelem provozuje aplikace Hlídací pes a newsletter. Tyto služby je možné z každého zaslaného emailu odhlásit. Souhlas se zpracováním osobních údajů Uživatel poskytuje Správci na dobu neurčitou s tím, že svůj udělený souhlas může Uživatel kdykoliv na drese správce info@realitymix.cz odvolat. Správce garantuje Uživateli i další práva uvedené v ustanovení §11 a §21 zákoba č. 101/200 Sb. Ve znění pozdějších předpisů.
Více informací o zpracování údajů získáte zde (realitymix.cz/zasady-ochrany-osobnich-udaju)