Prodej moderního rodinného domu CP 152 m² s garáží - ulice Sadová, Rousínov
Nabízíme k prodeji novostavbu moderního rodinného domu před dokončením, situovanou v klidné části města Rousínov. Dům se nachází na rovinatém pozemku v zástavbě nových rodinných domů a představuje ideální volbu pro rodinné bydlení s možností finální úpravy podle vašich představ.
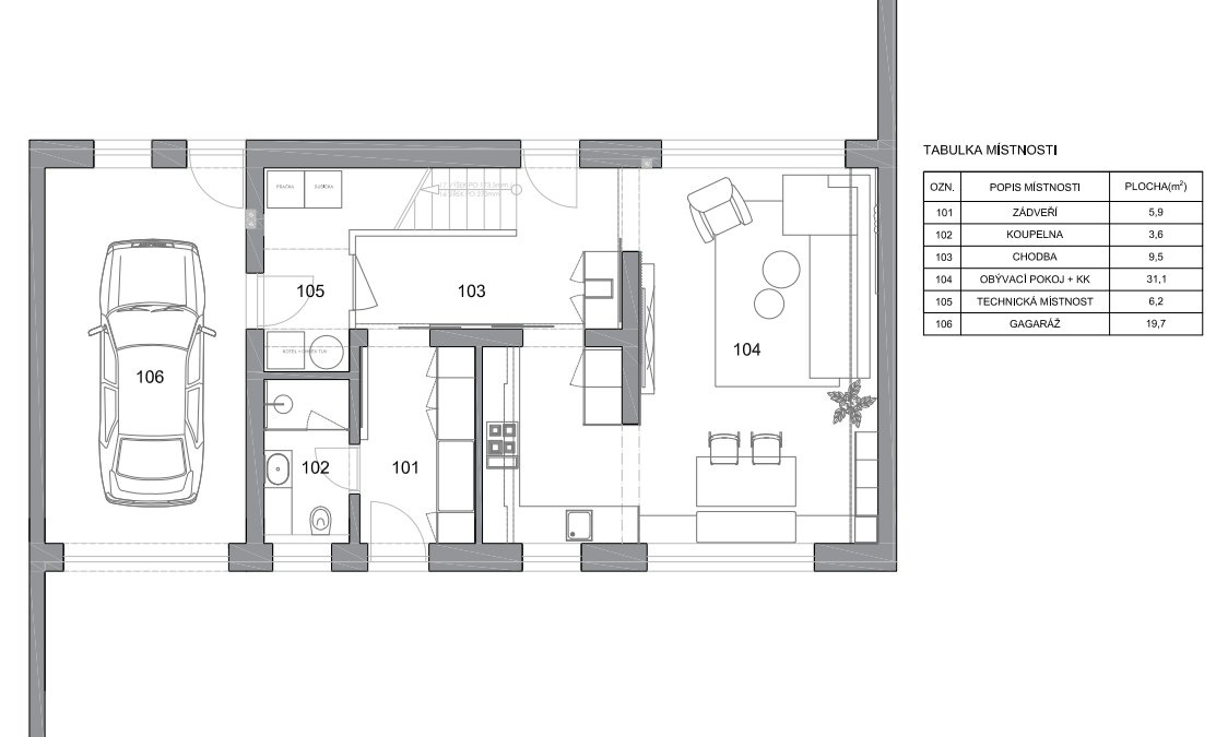
Dům nabízí moderní dispozici s dostatkem prostoru pro celou rodinu. Otevřený obytný prostor s jídelnou a kuchyní, tři pokoje, šatna, technická místnost a prostorné koupelny – vše navrženo s důrazem na pohodlí a praktičnost.
Součástí domu je velká garáž, která poskytne nejen komfortní parkování, ale i dostatek místa pro dílnu, kola, kočárek či sezónní věci. Před domem je navíc možné zaparkovat 2 vozy.
Nemovitost je ve fázi před kolaudací – nový majitel má tak jedinečnou možnost dokončit interiér podle svých představ (podlahy, dveře, sanita, kuchyně atd.). Pro prezentaci jsou použity vizualizační fotografie přímo od architekta. Pokud zájemce tento interiér osloví, je možné dům v tomto provedení dokončit přímo od stavitele a nebo si může dům dokončit individuálně.
Zaujala vás nabídka? Neváhejte nás kontaktovat pro více informací nebo domluvení osobní prohlídky.
Financování je možné hypotečním úvěrem. Společnost ARTOSS realitní kancelář, s.r.o. zdarma nabízí možnost využití služeb hypotečního poradce, který vám nezávazně poradí při zajištění nejvýhodnějšího hypotečního úvěru.
Prezentované informace byly nabyty v dobré víře od vlastníka nemovitosti a naše společnost je zprostředkovává, co by data informačního charakteru.
ARTOSS realitní kancelář, s.r.o. je řádným členem Asociace realitních kanceláří ČR.
Pomocí naší hypoteční kalkulačky si můžete udělat orientační představu o výši měsíčních splátek hypotéky. O vše ostatní se pak postaráme my ve spolupráci s našimi obchodními partnery.
40 447 Kč
* Odhadovaná měsíční splátka vychází z výše úvěru Kč s pevnou úrokovou sazbou % po celou dobu trvání úvěru.
Uživatel serveru RealityMIX.cz (dále jen „Server“) dostupného na internetové adrese (URL) https://www.realitymix.cz, který provozuje společnost DALTEN media s.r.o., se sídlem Na Harfě 916/9a, Praha 9, 190 00, IČO: 271 35 306 (dále jen „Správce“) jako provozovateli tohoto Serveru uděluje svůj výslovný souhlas v souladu s ustanovením § 5 zákona č. 101/2000 Sb. O ochraně osobních údajů a o změně některých zákonů, v platném znění (dále jen „zákon o ochraně osobních údajů“), se zpracováním uživatelem poskytnutých osobních údajů a dalších dat.
Uživatel poskytuje Správci osobní údaje v rozsahu: jméno, příjmení, e-mailová adresa, telefonický kontakt a další data, a to z důvodu projeveného zájmu o nemovitost, kde prostřednictvím služby Serveru Správce osloví Uživatel inzerenta uvedeného v detailu
nemovitosti - ARTOSS realitní kancelář, s.r.o. (IČ 28309545) se zájmem o jeho služby. Tato společnost je součástí seskupení/sítě/franšízového modelu realitních kanceláří, jejich seznam můžete zobrazit kliknutím na tento odkaz.
ARTOSS realitní kancelář, s.r.o. Brno (IČ 28309545) , ARTOSS realitní kancelář, s.r.o. (IČ 28309545)
Uživatel tyto osobní údaje poskytuje dobrovolně a bere na vědomí, že součástí služeb Správce, které Správce Uživateli poskytuje, je vyhledání všech Uživateli vyhovujících (dle parametrů - cena, typ nemovitosti, lokalita atd.) nemovitostí. Správce za tímto účelem provozuje aplikace Hlídací pes a newsletter. Tyto služby je možné z každého zaslaného emailu odhlásit. Souhlas se zpracováním osobních údajů Uživatel poskytuje Správci na dobu neurčitou s tím, že svůj udělený souhlas může Uživatel kdykoliv na drese správce info@realitymix.cz odvolat. Správce garantuje Uživateli i další práva uvedené v ustanovení §11 a §21 zákoba č. 101/200 Sb. Ve znění pozdějších předpisů.
Více informací o zpracování údajů získáte zde (realitymix.cz/zasady-ochrany-osobnich-udaju)