Jedinečná nabídka ke koupi krásného rodinného domu 5+1 v klidné lokalitě Telnice v Krušných horách okres Ústí nad Labem.
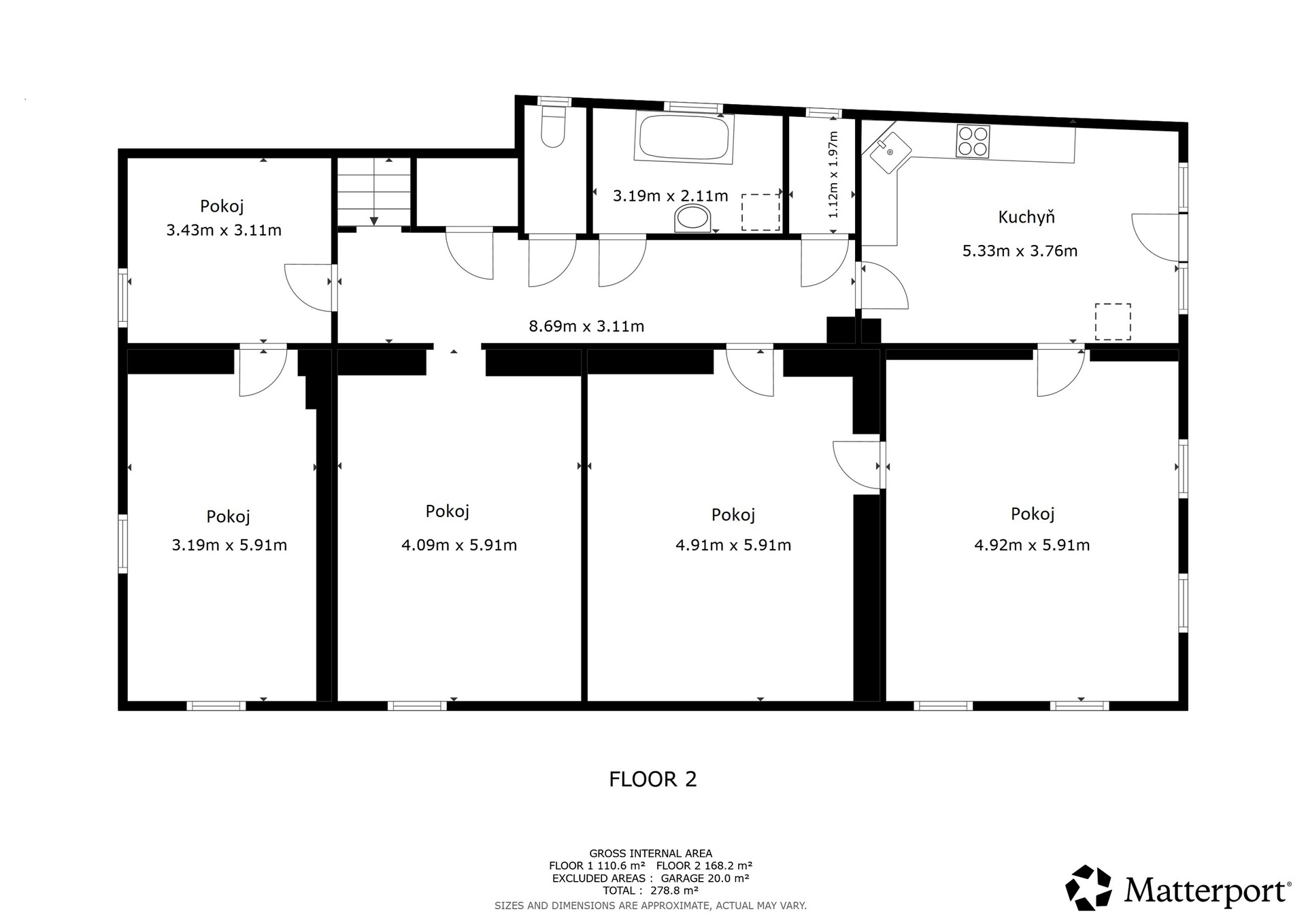
Rodinný dům o zastavěné ploše 192 m2, do kterého je zavedena elektřina 230V a 400V, vodovodní řád a odpady prozatím řešeny tzv. septikem. O teplo domova se stará plynový kotel v kombinaci s krbem na tuhá paliva. Zastavěná plocha a zahrada o výměře 456m2 zajištuje výborný předpoklad pro aktivní i relaxační odpočinek.
V současné době velmi vyhledávaná klidná lokalita v blízkosti lyžařského střediska Telnice. Zastávka autobusů v těsné blízkosti domu. Okolní města Teplice 16km a Děčín 27km. Po dálnici D8, která spojuje Prahu (93km, 1:04) a Drážďany (70km, 58minut) se pohodlně dostanete za prací i zábavou.
Pokud Vás nabídka zaujala, kontaktujte náš Prosperity tým pro více informací a sjednání konkrétního termínu prohlídky. V případě více vážných zájemců bude nemovitost rezervována s klientem, který podá nejlepší nabídku. Případné financování Vám zařídíme vlastním specialistou z ProsperityFS.
Cena:
3 500 000 Kč
Poznámka:
Bez poplatku katastrálnímu úřadu, včetně provize, včetně právního servisu
Pomocí naší hypoteční kalkulačky si můžete udělat orientační představu o výši měsíčních splátek hypotéky. O vše ostatní se pak postaráme my ve spolupráci s našimi obchodními partnery.
14 171 Kč
* Odhadovaná měsíční splátka vychází z výše úvěru Kč s pevnou úrokovou sazbou % po celou dobu trvání úvěru.
Uživatel serveru RealityMIX.cz (dále jen „Server“) dostupného na internetové adrese (URL) https://www.realitymix.cz, který provozuje společnost DALTEN media s.r.o., se sídlem Na Harfě 916/9a, Praha 9, 190 00, IČO: 271 35 306 (dále jen „Správce“) jako provozovateli tohoto Serveru uděluje svůj výslovný souhlas v souladu s ustanovením § 5 zákona č. 101/2000 Sb. O ochraně osobních údajů a o změně některých zákonů, v platném znění (dále jen „zákon o ochraně osobních údajů“), se zpracováním uživatelem poskytnutých osobních údajů a dalších dat.
Uživatel poskytuje Správci osobní údaje v rozsahu: jméno, příjmení, e-mailová adresa, telefonický kontakt a další data, a to z důvodu projeveného zájmu o nemovitost, kde prostřednictvím služby Serveru Správce osloví Uživatel inzerenta uvedeného v detailu
nemovitosti - Prosperity Financial Services a.s. (IČ 02745836) se zájmem o jeho služby. Tato společnost je součástí seskupení/sítě/franšízového modelu realitních kanceláří, jejich seznam můžete zobrazit kliknutím na tento odkaz.
Prosperity Living s.r.o. (IČ 23446731) , Prosperity Financial Services a.s. (IČ 02745836)
Uživatel tyto osobní údaje poskytuje dobrovolně a bere na vědomí, že součástí služeb Správce, které Správce Uživateli poskytuje, je vyhledání všech Uživateli vyhovujících (dle parametrů - cena, typ nemovitosti, lokalita atd.) nemovitostí. Správce za tímto účelem provozuje aplikace Hlídací pes a newsletter. Tyto služby je možné z každého zaslaného emailu odhlásit. Souhlas se zpracováním osobních údajů Uživatel poskytuje Správci na dobu neurčitou s tím, že svůj udělený souhlas může Uživatel kdykoliv na drese správce info@realitymix.cz odvolat. Správce garantuje Uživateli i další práva uvedené v ustanovení §11 a §21 zákoba č. 101/200 Sb. Ve znění pozdějších předpisů.
Více informací o zpracování údajů získáte zde (realitymix.cz/zasady-ochrany-osobnich-udaju)