Prodej bytu 2+1 63 m², Ústí nad Labem - Krásné Březno
Ke koupi nabízím byt, vhodný pro začínající rodinu, případně investory o dispozicí 2+1, v osobním vlastnictví, v 6. nadzemním podlaží bytového domu s výtahem, který se nachází v Ústí nad Labem, ul. Družstevní.
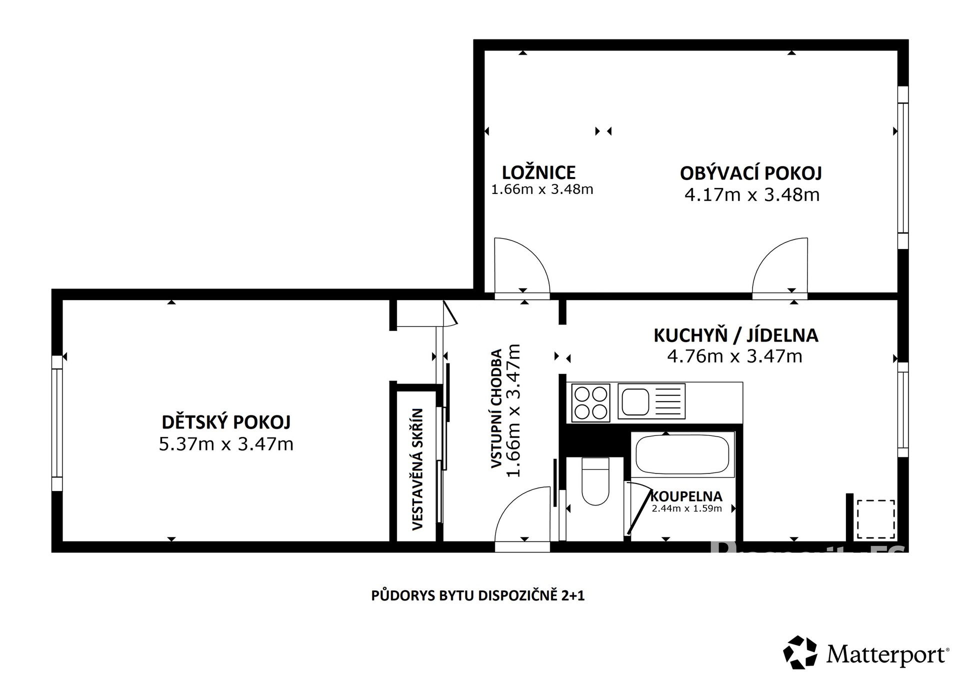
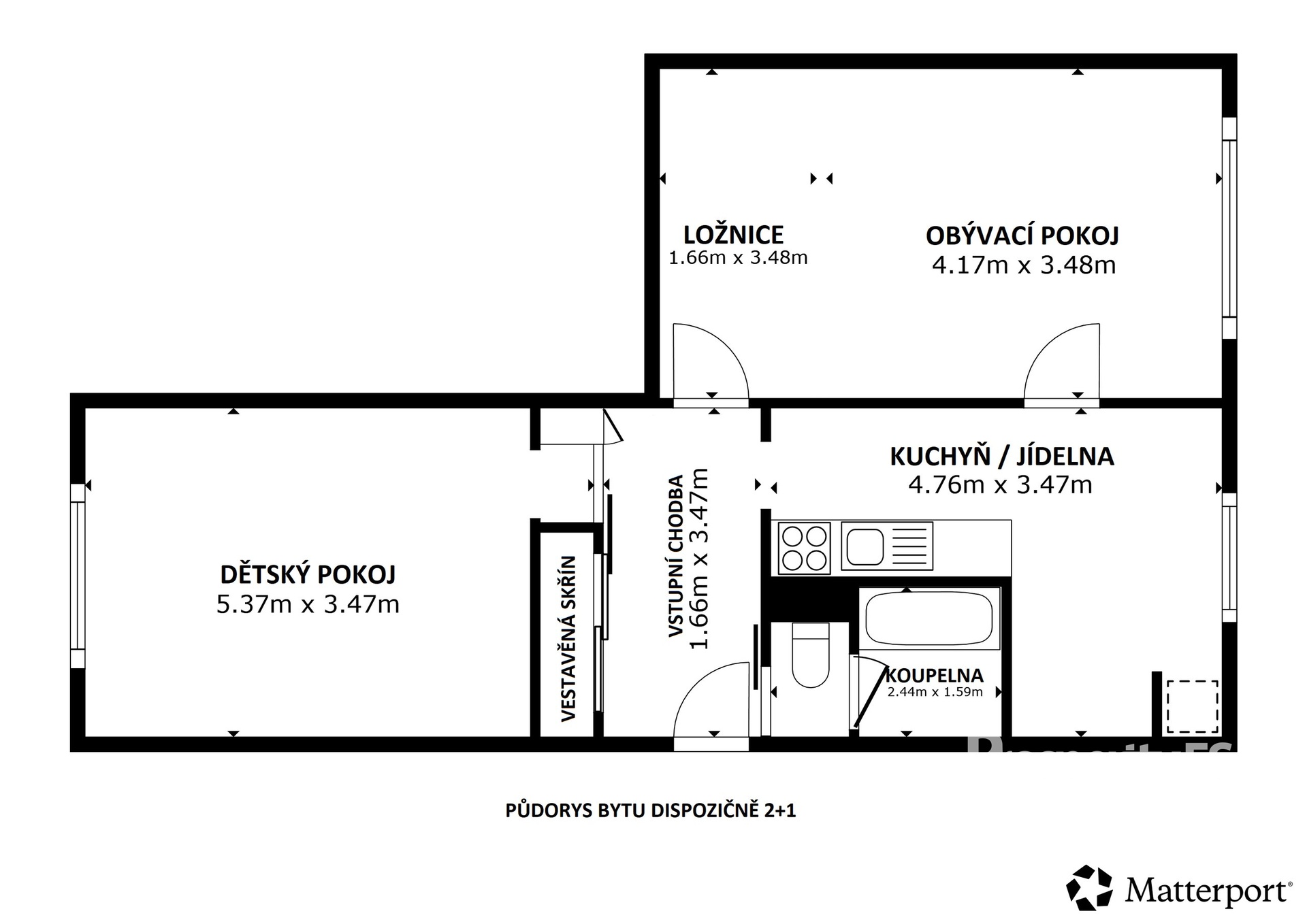
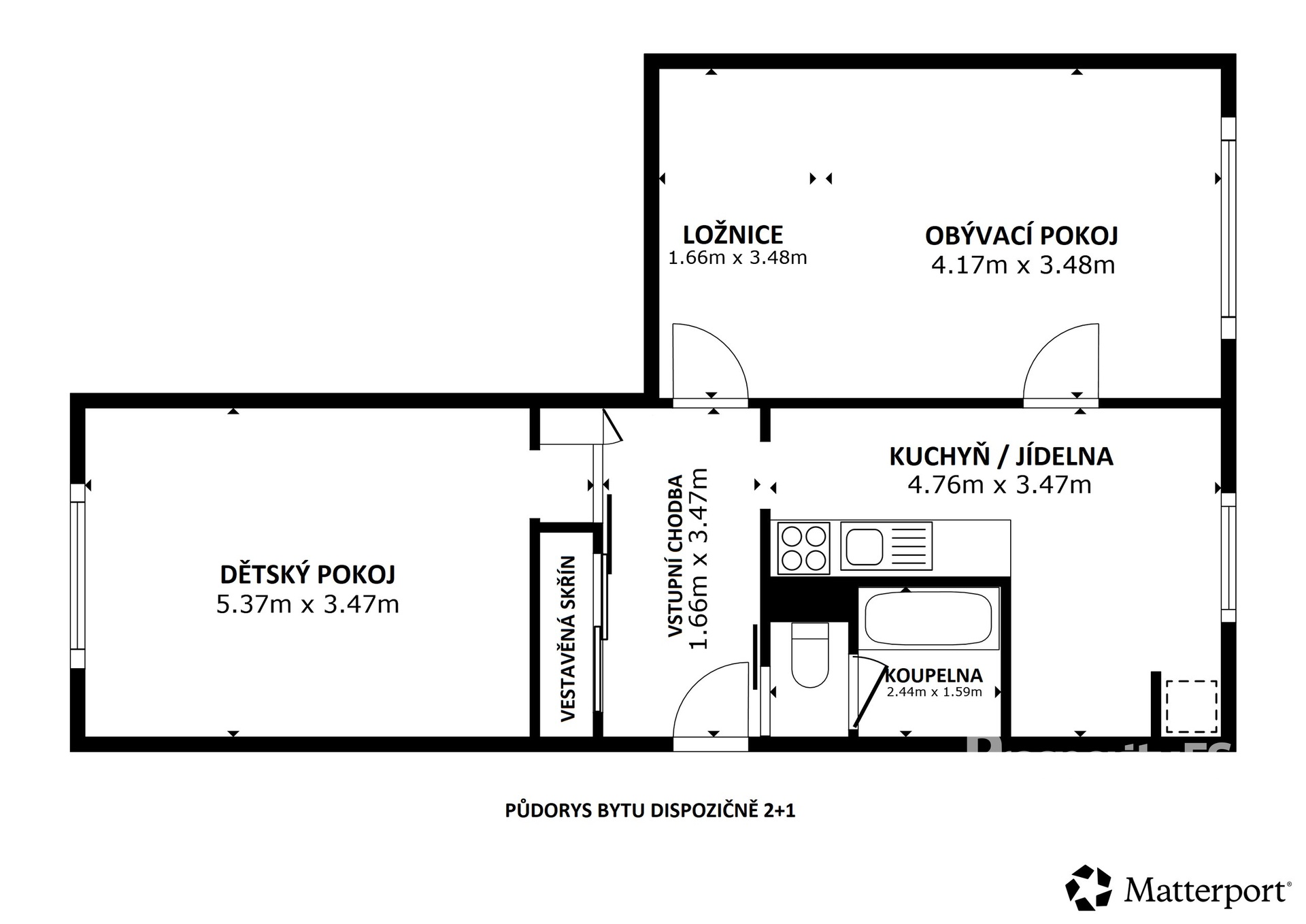
Dispoziční řešení bytu nabízí vstupní chodbu, prostorný obývací pokoj, kuchyň, ložnici a koupelnu s toaletou. Nabízený byt je v původním stavu, má umakartové bytové jádro, plastová okna. Podlahovou krytinu tvoří plovoucí podlaha v kombinaci s PVC. Velmi nízké měsíční náklady, lze získat na prohlídce. K bytu náleží sklepní kóje.
V současné době je byt díky vyhledávané lokalitě a jednoduchou dostupností na dálnici D8, vhodný, jak pro vlastní bydlení, tak i pro investory k dalšímu pronájmu. Zastávka MHD v blízkosti domu, do centra Ústí nad Labem 4km, Teplice 25km, Děčín 24km.
Město Ústí nad Labem disponuje kompletní občanskou vybaveností včetně mateřské, základní i vysoké školy, nemocnice, dětské hřiště, obchody, pošta, praktický i dětský lékař, oddíl fotbalu, či hokeje a jiné sportovní vyžití.
Pokud Vás nabídka zaujala, kontaktujte náš Prosperity tým pro více informací a sjednání konkrétního termínu prohlídky. V případě více vážných zájemců bude nemovitost rezervována s klientem, který podá nejlepší nabídku. Případné financování Vám zařídíme vlastním specialistou z ProsperityFS.
Cena:
2 200 000 Kč
Poznámka:
bez poplatku katastrálnímu úřadu, včetně provize, včetně právního servisu
Pomocí naší hypoteční kalkulačky si můžete udělat orientační představu o výši měsíčních splátek hypotéky. O vše ostatní se pak postaráme my ve spolupráci s našimi obchodními partnery.
8 907 Kč
* Odhadovaná měsíční splátka vychází z výše úvěru Kč s pevnou úrokovou sazbou % po celou dobu trvání úvěru.
Prodáváte nemovitost a potřebujete zjistit její reálnou hodnotu?
Uživatel serveru RealityMIX.cz (dále jen „Server“) dostupného na internetové adrese (URL) https://www.realitymix.cz, který provozuje společnost DALTEN media s.r.o., se sídlem Na Harfě 916/9a, Praha 9, 190 00, IČO: 271 35 306 (dále jen „Správce“) jako provozovateli tohoto Serveru uděluje svůj výslovný souhlas v souladu s ustanovením § 5 zákona č. 101/2000 Sb. O ochraně osobních údajů a o změně některých zákonů, v platném znění (dále jen „zákon o ochraně osobních údajů“), se zpracováním uživatelem poskytnutých osobních údajů a dalších dat.
Uživatel poskytuje Správci osobní údaje v rozsahu: jméno, příjmení, e-mailová adresa, telefonický kontakt a další data, a to z důvodu projeveného zájmu o nemovitost, kde prostřednictvím služby Serveru Správce osloví Uživatel inzerenta uvedeného v detailu
nemovitosti - Prosperity Financial Services a.s. (IČ 02745836) se zájmem o jeho služby. Tato společnost je součástí seskupení/sítě/franšízového modelu realitních kanceláří, jejich seznam můžete zobrazit kliknutím na tento odkaz.
Prosperity Living s.r.o. (IČ 23446731) , Prosperity Financial Services a.s. (IČ 02745836)
Uživatel tyto osobní údaje poskytuje dobrovolně a bere na vědomí, že součástí služeb Správce, které Správce Uživateli poskytuje, je vyhledání všech Uživateli vyhovujících (dle parametrů - cena, typ nemovitosti, lokalita atd.) nemovitostí. Správce za tímto účelem provozuje aplikace Hlídací pes a newsletter. Tyto služby je možné z každého zaslaného emailu odhlásit. Souhlas se zpracováním osobních údajů Uživatel poskytuje Správci na dobu neurčitou s tím, že svůj udělený souhlas může Uživatel kdykoliv na drese správce info@realitymix.cz odvolat. Správce garantuje Uživateli i další práva uvedené v ustanovení §11 a §21 zákoba č. 101/200 Sb. Ve znění pozdějších předpisů.
Více informací o zpracování údajů získáte zde (realitymix.cz/zasady-ochrany-osobnich-udaju)