Rodinný dům se zahradou, ulice Děčínská, Ústí nad Labem - Střekov
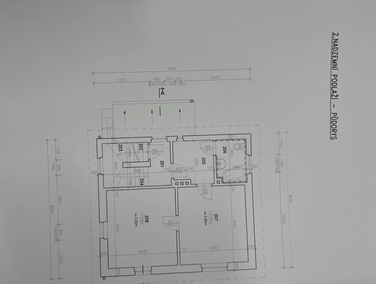
Rodinný dům se zahradou, ulice Děčínská, Ústí nad Labem - Střekov. Nabízíme k prodeji samostatně stojící rodinný dům o dispozici 3+1 s podlahovou plochou 105 m², situovaný na rovinatém pozemku o celkové výměře 688 m². Celková užitná plocha domu včetně sklepa a půdy činí 206 m², což nabízí dostatek úložného prostoru i potenciál pro další využití či úpravy dle potřeb nového majitele. Dům je v převážně původním stavu a je určen k rekonstrukci dle vlastních představ, včetně střechy. Interiér prošel částečnou revitalizací – kuchyně a koupelna. Vytápění zajišťuje plynový kotel, ohřev vody bojler. Na pozemku se nachází prostorná plechová garáž a rovinatá zahrada vhodná pro odpočinek, zahradničení i rodinné aktivity. Za pozemkem vede železniční trať. Nemovitost se zároveň nachází v záplavovém území. Dům je vhodný jak pro rodinné bydlení, tak i jako investiční příležitost – v současné době je pronajatý. Pro více informací nebo domluvení prohlídky mě neváhejte kontaktovat. Ráda vás nemovitostí osobně provedu.
Pomocí naší hypoteční kalkulačky si můžete udělat orientační představu o výši měsíčních splátek hypotéky. O vše ostatní se pak postaráme my ve spolupráci s našimi obchodními partnery.
19 029 Kč
* Odhadovaná měsíční splátka vychází z výše úvěru Kč s pevnou úrokovou sazbou % po celou dobu trvání úvěru.
Uživatel serveru RealityMIX.cz (dále jen „Server“) dostupného na internetové adrese (URL) https://www.realitymix.cz, který provozuje společnost DALTEN media s.r.o., se sídlem Na Harfě 916/9a, Praha 9, 190 00, IČO: 271 35 306 (dále jen „Správce“) jako provozovateli tohoto Serveru uděluje svůj výslovný souhlas v souladu s ustanovením § 5 zákona č. 101/2000 Sb. O ochraně osobních údajů a o změně některých zákonů, v platném znění (dále jen „zákon o ochraně osobních údajů“), se zpracováním uživatelem poskytnutých osobních údajů a dalších dat.
Uživatel poskytuje Správci osobní údaje v rozsahu: jméno, příjmení, e-mailová adresa, telefonický kontakt a další data, a to z důvodu projeveného zájmu o nemovitost, kde prostřednictvím služby Serveru Správce osloví Uživatel inzerenta uvedeného v detailu
nemovitosti - RealitasFIN s.r.o. (IČ 02652668) se zájmem o jeho služby.
Uživatel tyto osobní údaje poskytuje dobrovolně a bere na vědomí, že součástí služeb Správce, které Správce Uživateli poskytuje, je vyhledání všech Uživateli vyhovujících (dle parametrů - cena, typ nemovitosti, lokalita atd.) nemovitostí. Správce za tímto účelem provozuje aplikace Hlídací pes a newsletter. Tyto služby je možné z každého zaslaného emailu odhlásit. Souhlas se zpracováním osobních údajů Uživatel poskytuje Správci na dobu neurčitou s tím, že svůj udělený souhlas může Uživatel kdykoliv na drese správce info@realitymix.cz odvolat. Správce garantuje Uživateli i další práva uvedené v ustanovení §11 a §21 zákoba č. 101/200 Sb. Ve znění pozdějších předpisů.
Více informací o zpracování údajů získáte zde (realitymix.cz/zasady-ochrany-osobnich-udaju)