Prodej novostavby domu 6+kk s dvojgaráží, Shell&Core, Velké přílepy
Exkluzivně nabízím k prodeji novostavbu rodinného domu 6+kk s dvougaráží ve vyhledávané lokalitě Velké Přílepy, jen 12 km od centra Prahy.
Dům se nachází na rohovém pozemku o rozloze 964 m², v klidné slepé ulici, v sousedství moderní rezidenční zástavby.
Architektonicky promyšlený projekt klade důraz na funkčnost, světlo a propojení interiéru se zahradou. Dispozice je ideálně navržená pro rodinu, která hledá prostor, komfort a kvalitu v každém detailu.
Dům je prodáván zkolaudovaný, s možností kompletního dokončení na klíč, včetně podlah, dveří, sanity a venkovních úprav – dle přání nového majitele.
Dispozice a vybavení
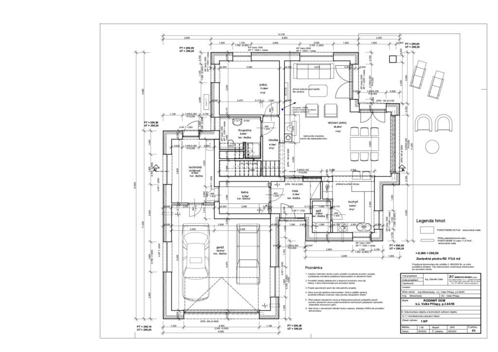
1. nadzemní podlaží (plocha 118 m²):
Velkorysý obývací prostor (cca 45 m²) s přípravou na krb a přímým vstupem na jižně orientovanou terasu
Částečně oddělený kuchyňský kout s prostorem pro bar nebo ostrůvek
Pokoj vhodný jako pracovna, pokoj pro hosty či zázemí pro au-pair
Koupelna se sprchovým koutem a toaletou
Technická místnost s prostorem pro pračku, sušičku a přímým vstupem do garáže
Dvougaráž (cca 34 m²) s přípravou na nabíjení elektromobilu
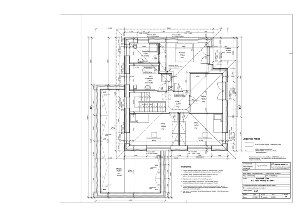
2. nadzemní podlaží (plocha 92 m²):
Hlavní ložnice s vlastní koupelnou, toaletou a vstupem na balkon
Další tři prostorné pokoje (cca 12–17 m²), z nichž jeden má rovněž přístup na balkon
Druhá koupelna s vanou a WC
Centrální hala
Celková užitná plocha domu činí cca 210 m².
Technické řešení:
Zdivo z cihel Porotherm 30 Profi
Třívrstvá plastová okna s izolačním trojsklem
Podlahové vytápění v celém domě
Tepelné čerpadlo vzduch–voda LG Therma V
Datové rozvody ve všech obytných místnostech
Příprava pro venkovní bazén (včetně napojení na rozvody vody a elektřiny)
Zpevněné plochy o výměře 82 m²
Lokalita:
Velké Přílepy patří mezi nejžádanější lokality v okolí Prahy díky své kombinaci klidu, dostupnosti a moderní infrastruktury.
V obci se nachází školka, škola, pošta, obchody, restaurace, sportoviště a plánované zdravotní centrum.
V bezprostřední blízkosti domu vzniká nová zastávka MHD i retail park, který přinese další služby a pohodlí.
Rodiny s dětmi ocení park s dětským hřištěm hned vedle domu.
Shrnutí:
Dispozice: 6+kk
Užitná plocha: cca 210 m²
Pozemek: 964 m²
Dvougaráž + příprava na nabíječku elektromobilu
Tepelné čerpadlo, podlahové vytápění, datové rozvody
Stav: Shell & Core (možnost dokončení na klíč)
Kolaudace: Zkolaudováno
Tento dům je ideální pro klienta, který hledá moderní a elegantní rodinné bydlení s nadstandardní kvalitou zpracování, v klidném a perspektivním prostředí s výbornou dostupností do Prahy.
Pomocí naší hypoteční kalkulačky si můžete udělat orientační představu o výši měsíčních splátek hypotéky. O vše ostatní se pak postaráme my ve spolupráci s našimi obchodními partnery.
75 914 Kč
* Odhadovaná měsíční splátka vychází z výše úvěru Kč s pevnou úrokovou sazbou % po celou dobu trvání úvěru.
Uživatel serveru RealityMIX.cz (dále jen „Server“) dostupného na internetové adrese (URL) https://www.realitymix.cz, který provozuje společnost DALTEN media s.r.o., se sídlem Na Harfě 916/9a, Praha 9, 190 00, IČO: 271 35 306 (dále jen „Správce“) jako provozovateli tohoto Serveru uděluje svůj výslovný souhlas v souladu s ustanovením § 5 zákona č. 101/2000 Sb. O ochraně osobních údajů a o změně některých zákonů, v platném znění (dále jen „zákon o ochraně osobních údajů“), se zpracováním uživatelem poskytnutých osobních údajů a dalších dat.
Uživatel poskytuje Správci osobní údaje v rozsahu: jméno, příjmení, e-mailová adresa, telefonický kontakt a další data, a to z důvodu projeveného zájmu o nemovitost, kde prostřednictvím služby Serveru Správce osloví Uživatel inzerenta uvedeného v detailu
nemovitosti - Adam Fanta - Fanta Estate Group (IČ 17133602) se zájmem o jeho služby.
Uživatel tyto osobní údaje poskytuje dobrovolně a bere na vědomí, že součástí služeb Správce, které Správce Uživateli poskytuje, je vyhledání všech Uživateli vyhovujících (dle parametrů - cena, typ nemovitosti, lokalita atd.) nemovitostí. Správce za tímto účelem provozuje aplikace Hlídací pes a newsletter. Tyto služby je možné z každého zaslaného emailu odhlásit. Souhlas se zpracováním osobních údajů Uživatel poskytuje Správci na dobu neurčitou s tím, že svůj udělený souhlas může Uživatel kdykoliv na drese správce info@realitymix.cz odvolat. Správce garantuje Uživateli i další práva uvedené v ustanovení §11 a §21 zákoba č. 101/200 Sb. Ve znění pozdějších předpisů.
Více informací o zpracování údajů získáte zde (realitymix.cz/zasady-ochrany-osobnich-udaju)