Prodej prostorného rodinného domu 244m², pozemek 2 375m², v žádané lokalitě obci Přibyslavice.
Exkluzivně nabízíme ke koupi prostorný dvoupodlažní rodinný dům s užitnou plochou 244m² a krásným pozemkem o velikosti 2 375m2, na němž se nachází menší zemědělská stavení. Tato nemovitost je ideální variantou pro rodinné bydlení, dvougenerační soužití nebo rekonstrukci dle vlastních představ.
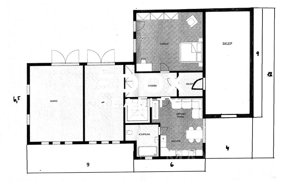
Dům je v prvním podlaží řešen jako bytová jednotka o dispozici 2 + kk a velikosti 61,25m2 a dvě garáže o velikosti 43m2. Bytová jednotka je řešena jako kuchyně s jídelnou, pokoj a koupelna se sprchovým koutem. Z chodby bytové jednotky je vstup do sklepa.
V druhém podlaží se nachází bytová jednotka 3 + 1 o velikosti 104,25m2. Tato jednotka je dispozičně řešena jako kuchyně s jídelnou, pokoj, dva průchozí pokoje a koupelna. Z této jednotky je vstup také na terasu a zahradu.
Plastová okna s dvojskly v celém domě.
Na pozemku jsou dvě stavení a stodola.
Dům je částečně podsklepen.
Vytápění pomocí kotle na pevná paliva a akumulačních kamen.
Voda obecní + studna napojena přímo do domu.
Plyn je k napojení na hranici pozemku.
V obci Přibyslavice se nachází částečná občanská vybavenost jako je knihovna, hasičská zbrojnice, obchod s potravinami a hostinec, dokončena byla výstavba vodovodu a plynofikace. Obec se nachází v klidném prostředí, obklopena přírodou a četnými lesy.
V případě zájmu o prohlídku kontaktujte přímo makléře.
Průkaz energetické náročnosti nebyl předložen, proto je uvedeno G.
Nejedná se o návrh na uzavření smlouvy (nabídku) ve smyslu § 1731 a §1732 zákona č. 89/2012 Sb., Občanského zákoníku. Společnost Edox reality s.r.o. si vyhrazuje právo uzavření všech smluvních vztahů písemně. Uvedené informace mají pouze informativní charakter a mohou se v průběhu inzerce změnit. V případě zájmu o více informací, kontaktujte přímo makléře.
Pomocí naší hypoteční kalkulačky si můžete udělat orientační představu o výši měsíčních splátek hypotéky. O vše ostatní se pak postaráme my ve spolupráci s našimi obchodními partnery.
20 240 Kč
* Odhadovaná měsíční splátka vychází z výše úvěru Kč s pevnou úrokovou sazbou % po celou dobu trvání úvěru.
Uživatel serveru RealityMIX.cz (dále jen „Server“) dostupného na internetové adrese (URL) https://www.realitymix.cz, který provozuje společnost DALTEN media s.r.o., se sídlem Na Harfě 916/9a, Praha 9, 190 00, IČO: 271 35 306 (dále jen „Správce“) jako provozovateli tohoto Serveru uděluje svůj výslovný souhlas v souladu s ustanovením § 5 zákona č. 101/2000 Sb. O ochraně osobních údajů a o změně některých zákonů, v platném znění (dále jen „zákon o ochraně osobních údajů“), se zpracováním uživatelem poskytnutých osobních údajů a dalších dat.
Uživatel poskytuje Správci osobní údaje v rozsahu: jméno, příjmení, e-mailová adresa, telefonický kontakt a další data, a to z důvodu projeveného zájmu o nemovitost, kde prostřednictvím služby Serveru Správce osloví Uživatel inzerenta uvedeného v detailu
nemovitosti - Edox reality s.r.o. (IČ 24144801) se zájmem o jeho služby.
Uživatel tyto osobní údaje poskytuje dobrovolně a bere na vědomí, že součástí služeb Správce, které Správce Uživateli poskytuje, je vyhledání všech Uživateli vyhovujících (dle parametrů - cena, typ nemovitosti, lokalita atd.) nemovitostí. Správce za tímto účelem provozuje aplikace Hlídací pes a newsletter. Tyto služby je možné z každého zaslaného emailu odhlásit. Souhlas se zpracováním osobních údajů Uživatel poskytuje Správci na dobu neurčitou s tím, že svůj udělený souhlas může Uživatel kdykoliv na drese správce info@realitymix.cz odvolat. Správce garantuje Uživateli i další práva uvedené v ustanovení §11 a §21 zákoba č. 101/200 Sb. Ve znění pozdějších předpisů.
Více informací o zpracování údajů získáte zde (realitymix.cz/zasady-ochrany-osobnich-udaju)