Prodej stavebního pozemku, 1000m2, v rekreační oblasti, Vranov nad Dyjí
K prodeji nabízíme 3 stavební pozemky ve výjimečné lokalitě Vranova nad Dyjí, situovaných v klidné části ulice Benátek. Co se zde může postavit:
Hlavní využití:
- slouží pro potřeby rekreace a turistiky
Přípustné využití:
- slouží k umístění zařízení hromadné rekreace a cestovního ruchu a staveb potřebných pro tyto činnosti a aktivity pro obsluhu takového území. Umístění stravovacích a ubytovacích zařízení a sportovně rekreačních zařízení.
- přípustné jsou komunikace a parkoviště pro obsluhu území, rozptylové prostory, plochy pro rekreační sport, zeleň, stavby příslušné technické infrastruktury
Podmínky prostorového uspořádání a základních podmínek ochrany krajinného rázu:
- výška nepřesáhne výškovou hladinu stávající zástavby v navazujícím území (max. 2 NP + podkroví), u nových ploch není vymezeno
- koeficient zastavění stavebního pozemku bude max. 30%
- případná vyšší intenzita ve stabilizovaných plochách je respektována.
Další benefity:
- Lokalita Benátek, Vranov nad Dyjí klid, příroda, cyklostezky, turistika, řeka, dostupnost.
- Celková rozloha pozemku: 1000 m2 (možné koupit i více pozemků dohromady, viz. značení ve fotografii, finální rozdělení geomterickým plánem bude uděláno na základě podpisu rezervační smlouvy)
- Veškeré inženýrské sítě na pozemku, zajištěný příjezd po komunikaci až na pozemek
Cena pozemku činí 2.990.000,- Kč/m2 (včetně právního servisu, provize realitní kanceláři i DPH).
V případě zájmu o větší pozemek, resp. koupě 2 a více pozemků je cena k jednání.
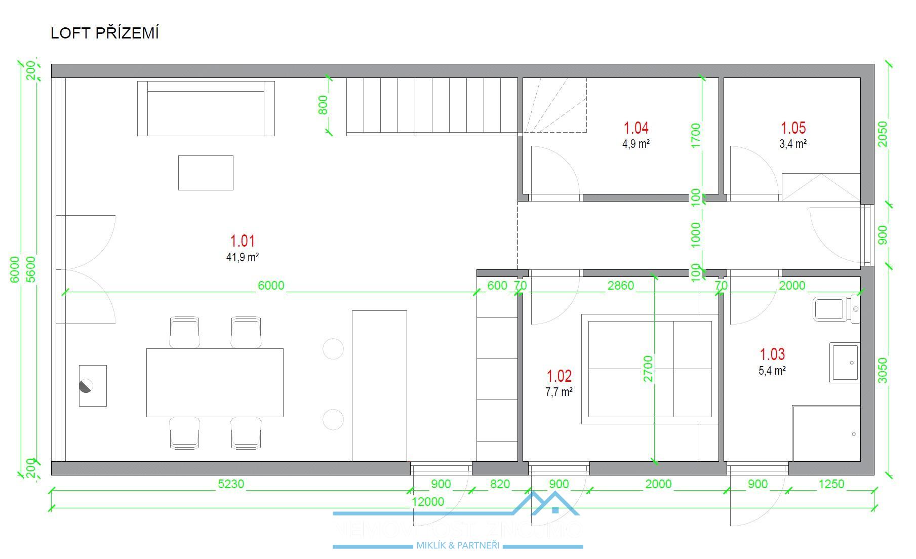
Jsme schopni zajistit i výstavbu luxusního domu, viz. fotografie, se zastavěnou plochou 72m2, a vnitřní dispozicí 3+kk (příp. 4+kk), zcela na klíč, s kompletně zařízenou kuchyšnkou linkou, koupelnou atd., cena samotného domu činí 5.550.000,- Kč. (včetně DPH 12 %, pokud byste kupovali na firmu, je možné si DPH odečíst)
Pro více informací, dokumentaci ke studii nebo domluvení termínu prohlídky kontaktujte pana Ing. Miklíka, volat můžete kdykoliv, včetně víkendů a svátků.
Cena:
2 990 000 Kč
Poznámka:
- včetně právního servisu, provize realitní kanceláři i DPH
Pomocí naší hypoteční kalkulačky si můžete udělat orientační představu o výši měsíčních splátek hypotéky. O vše ostatní se pak postaráme my ve spolupráci s našimi obchodními partnery.
12 106 Kč
* Odhadovaná měsíční splátka vychází z výše úvěru Kč s pevnou úrokovou sazbou % po celou dobu trvání úvěru.
Uživatel serveru RealityMIX.cz (dále jen „Server“) dostupného na internetové adrese (URL) https://www.realitymix.cz, který provozuje společnost DALTEN media s.r.o., se sídlem Na Harfě 916/9a, Praha 9, 190 00, IČO: 271 35 306 (dále jen „Správce“) jako provozovateli tohoto Serveru uděluje svůj výslovný souhlas v souladu s ustanovením § 5 zákona č. 101/2000 Sb. O ochraně osobních údajů a o změně některých zákonů, v platném znění (dále jen „zákon o ochraně osobních údajů“), se zpracováním uživatelem poskytnutých osobních údajů a dalších dat.
Uživatel poskytuje Správci osobní údaje v rozsahu: jméno, příjmení, e-mailová adresa, telefonický kontakt a další data, a to z důvodu projeveného zájmu o nemovitost, kde prostřednictvím služby Serveru Správce osloví Uživatel inzerenta uvedeného v detailu
nemovitosti - Nemovitosti Znojmo - Ing. Gabriel Miklík (IČ 07425341) se zájmem o jeho služby.
Uživatel tyto osobní údaje poskytuje dobrovolně a bere na vědomí, že součástí služeb Správce, které Správce Uživateli poskytuje, je vyhledání všech Uživateli vyhovujících (dle parametrů - cena, typ nemovitosti, lokalita atd.) nemovitostí. Správce za tímto účelem provozuje aplikace Hlídací pes a newsletter. Tyto služby je možné z každého zaslaného emailu odhlásit. Souhlas se zpracováním osobních údajů Uživatel poskytuje Správci na dobu neurčitou s tím, že svůj udělený souhlas může Uživatel kdykoliv na drese správce info@realitymix.cz odvolat. Správce garantuje Uživateli i další práva uvedené v ustanovení §11 a §21 zákoba č. 101/200 Sb. Ve znění pozdějších předpisů.
Více informací o zpracování údajů získáte zde (realitymix.cz/zasady-ochrany-osobnich-udaju)