Dva rodinné domy v Horní Datyni s pozemkem 2435 m2
K prodeji pro Vás máme dva rozestavěné rodinné domy na pozemku o výměře 2435 m2.
K dispozici kompletní projektová dokumentace, platné stavební povolení. Původní záměr je Rodinný dům a dům pro hosty. Možno také dokončit jako dva samostatné rodinné domy. Pozemek je dostatečně velký. V obci Vratimov je povolená zastavěnost 50% a minimální velikost pozemku 1000 m2.
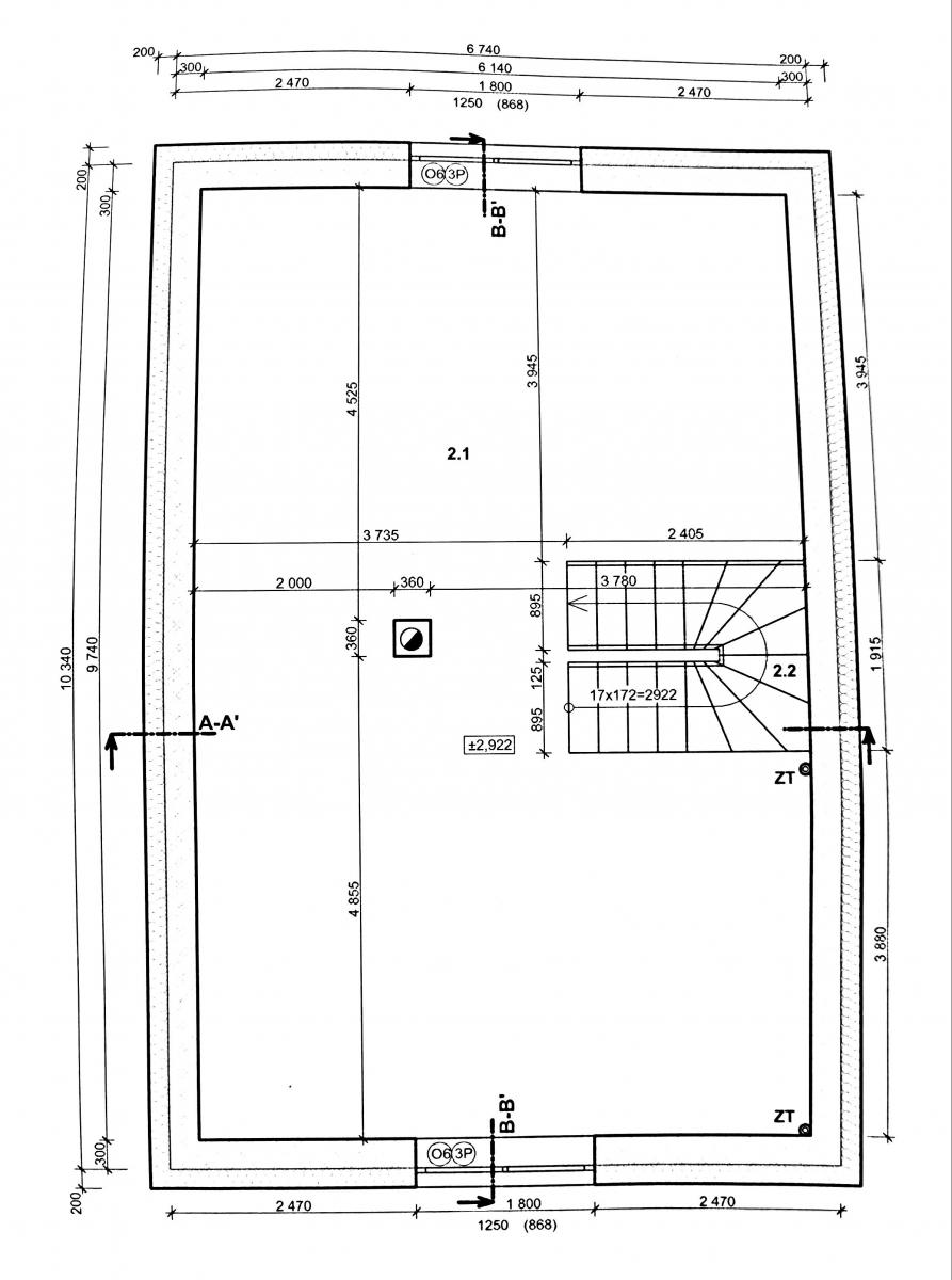
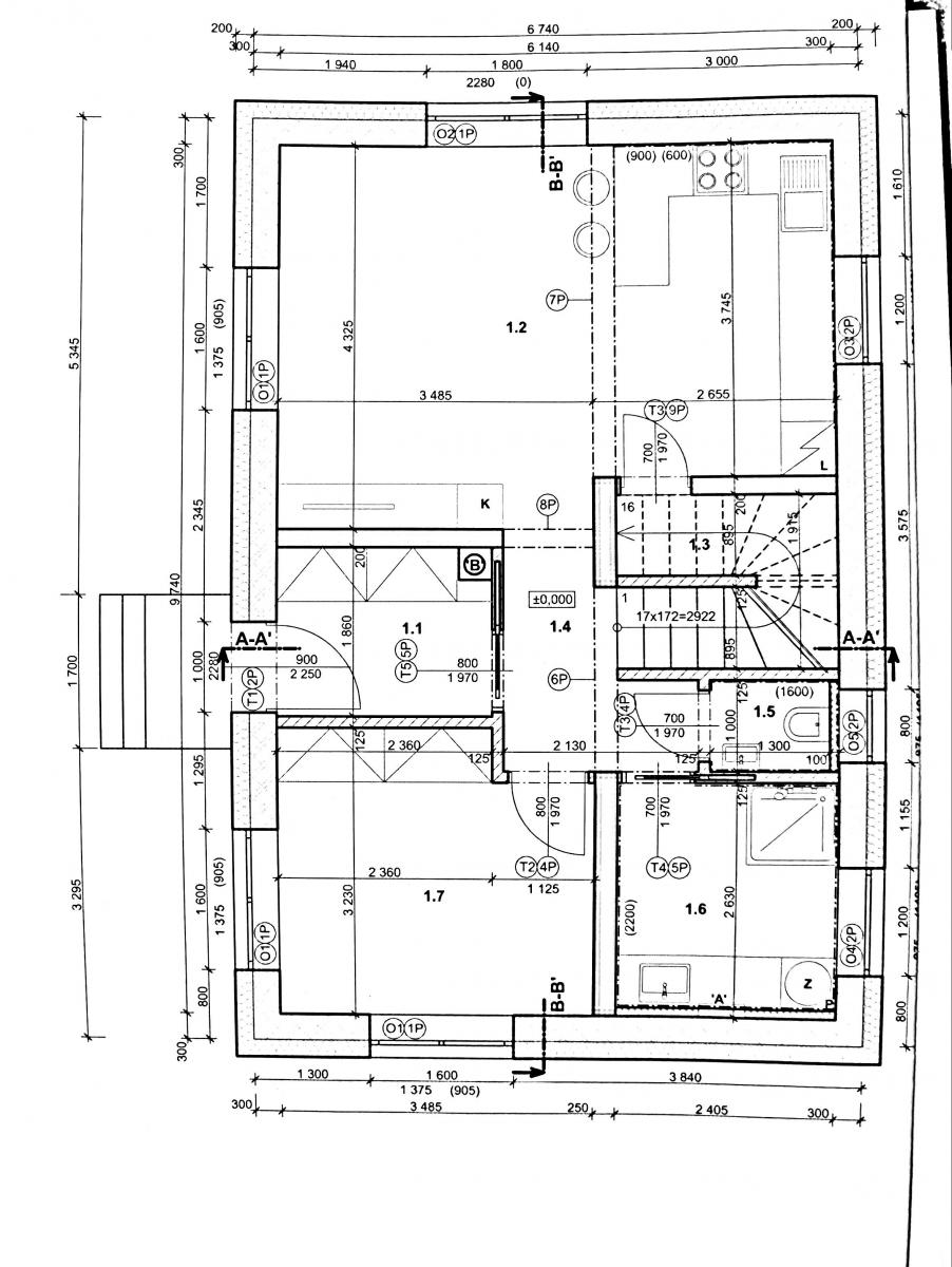
Dům 1 je dvoupodlažní, o zastavěné ploše 77 m2, podlahová plocha 114 m2, v interiéru je již konstrukce schodiště,
Dům 2 je jednopodlažní o zastavěné ploše 120 m2, podlahová plocha 84 m2 + terasa.
Oba domy jsou napojeny na inženýrské sítě, voda, kanalizace. Elektřina na pozemku. V objektech je komín Schiedel UNI l s přípravou na krbová kamna, Okna - plastová s trojskly. Materiál na podlahové topení je částečně připraven,. stejně jako množství dalších potřebných materiálů k dokončení. omítek, fasády - nutno vidět.
Okolí tvoří zástavba rodinných domů, louky. pole, krajina má až venkovský ráz. Přesto je zde v dosahu ve Vratimově, cca 3 km, autem, MHD, kompletní síť obchodů, služeb, školy, školky, kulturní dům, kino, knihovna, městský úřad, zdravotnická zařízení. Ostrava, Frýdek - Místek, Havířov - vše do 15 minut. Ideální místo pro rodinné bydlení.
S financováním rádi pomůžeme, máme dlouholeté zkušenosti a najdeme Vám nejlepší řešení.
Pomocí naší hypoteční kalkulačky si můžete udělat orientační představu o výši měsíčních splátek hypotéky. O vše ostatní se pak postaráme my ve spolupráci s našimi obchodními partnery.
30 365 Kč
* Odhadovaná měsíční splátka vychází z výše úvěru Kč s pevnou úrokovou sazbou % po celou dobu trvání úvěru.
Uživatel serveru RealityMIX.cz (dále jen „Server“) dostupného na internetové adrese (URL) https://www.realitymix.cz, který provozuje společnost DALTEN media s.r.o., se sídlem Na Harfě 916/9a, Praha 9, 190 00, IČO: 271 35 306 (dále jen „Správce“) jako provozovateli tohoto Serveru uděluje svůj výslovný souhlas v souladu s ustanovením § 5 zákona č. 101/2000 Sb. O ochraně osobních údajů a o změně některých zákonů, v platném znění (dále jen „zákon o ochraně osobních údajů“), se zpracováním uživatelem poskytnutých osobních údajů a dalších dat.
Uživatel poskytuje Správci osobní údaje v rozsahu: jméno, příjmení, e-mailová adresa, telefonický kontakt a další data, a to z důvodu projeveného zájmu o nemovitost, kde prostřednictvím služby Serveru Správce osloví Uživatel inzerenta uvedeného v detailu
nemovitosti - JK Finance a Reality, s.r.o. (IČ 03067157) se zájmem o jeho služby.
Uživatel tyto osobní údaje poskytuje dobrovolně a bere na vědomí, že součástí služeb Správce, které Správce Uživateli poskytuje, je vyhledání všech Uživateli vyhovujících (dle parametrů - cena, typ nemovitosti, lokalita atd.) nemovitostí. Správce za tímto účelem provozuje aplikace Hlídací pes a newsletter. Tyto služby je možné z každého zaslaného emailu odhlásit. Souhlas se zpracováním osobních údajů Uživatel poskytuje Správci na dobu neurčitou s tím, že svůj udělený souhlas může Uživatel kdykoliv na drese správce info@realitymix.cz odvolat. Správce garantuje Uživateli i další práva uvedené v ustanovení §11 a §21 zákoba č. 101/200 Sb. Ve znění pozdějších předpisů.
Více informací o zpracování údajů získáte zde (realitymix.cz/zasady-ochrany-osobnich-udaju)