Pozemek/vinný sklep/ubytování, investiční charakter, k.ú. Vrbovec, u hlavního tahu Znojmo-Hatě
K prodeji nabízíme stavební pozemek o celkové rozloze 800m2 s velkým množstvím využití, hlavní předmět prodeje zde je:
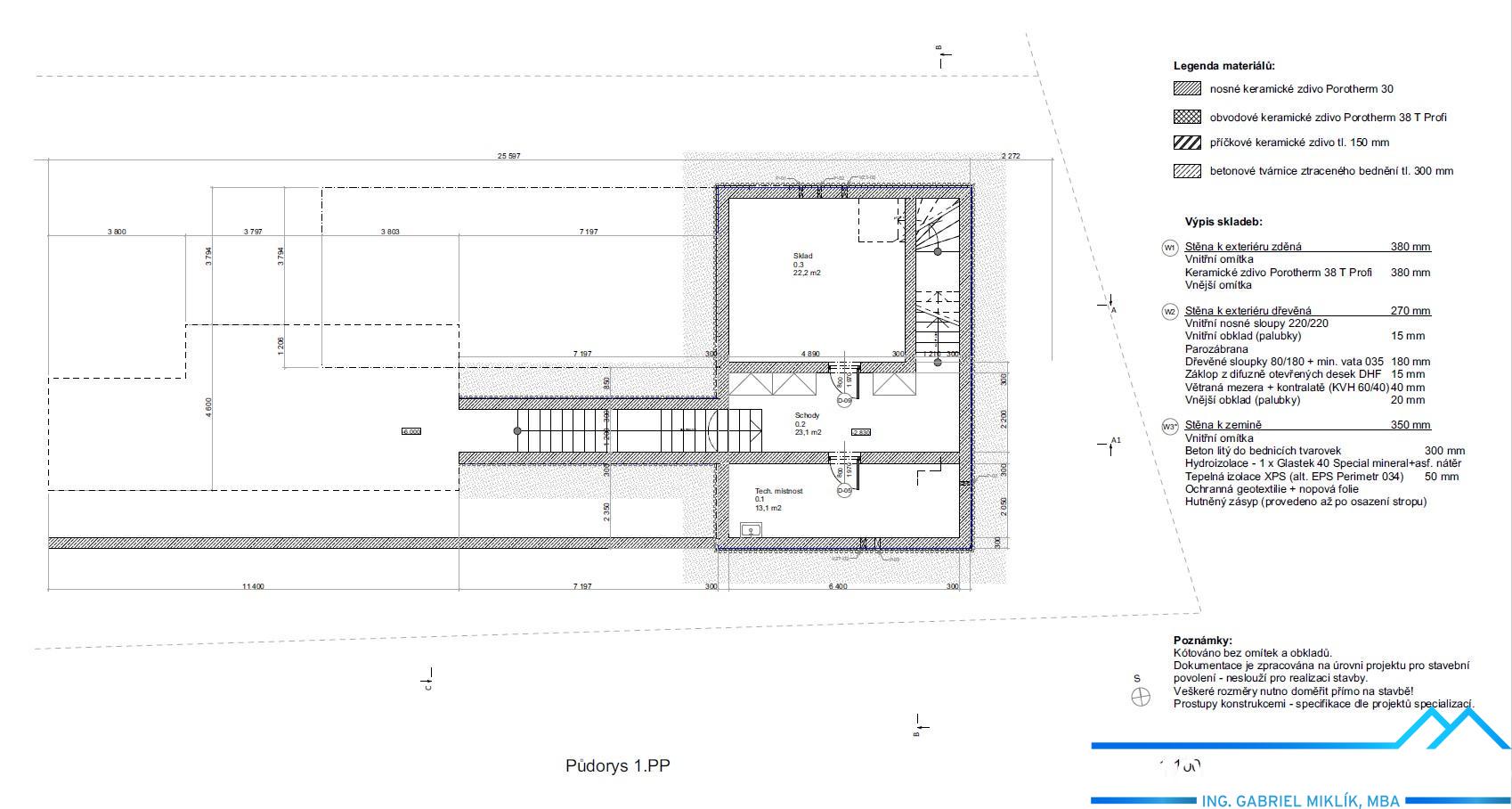
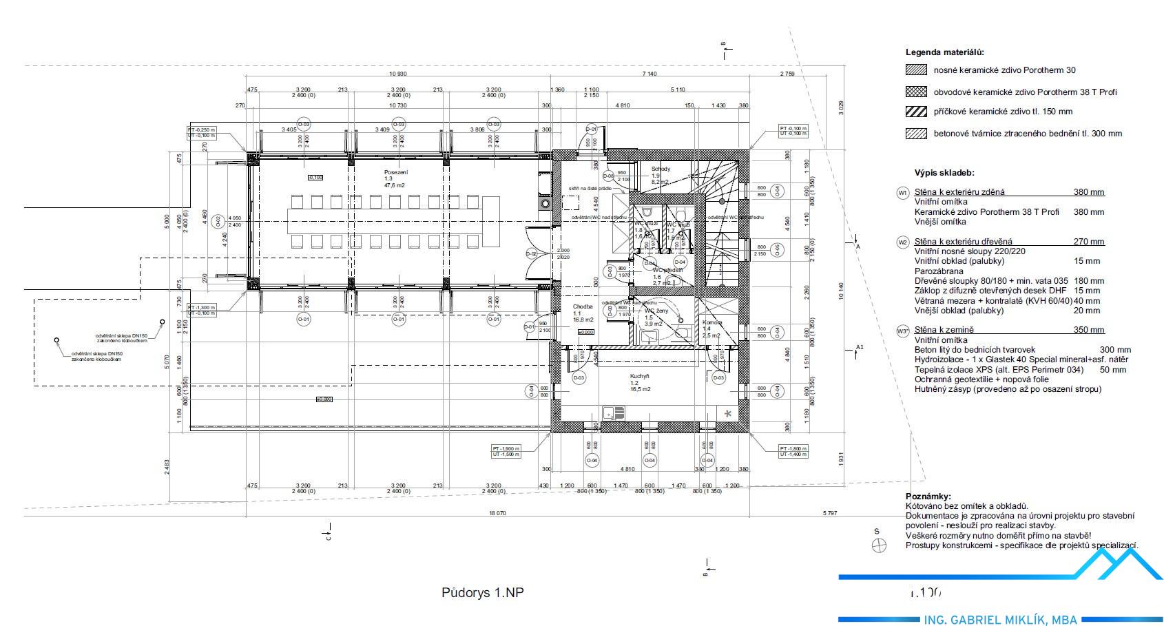
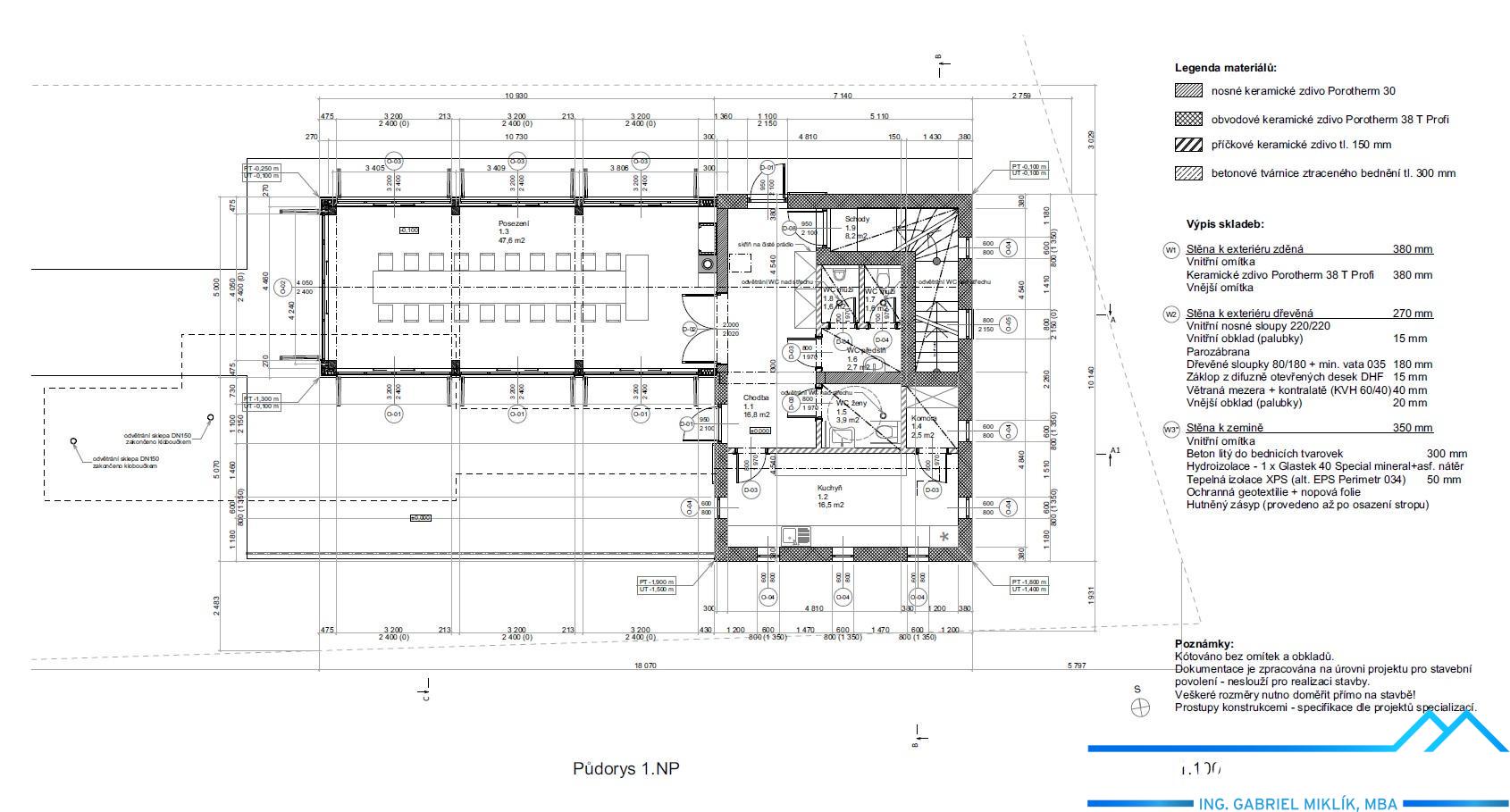
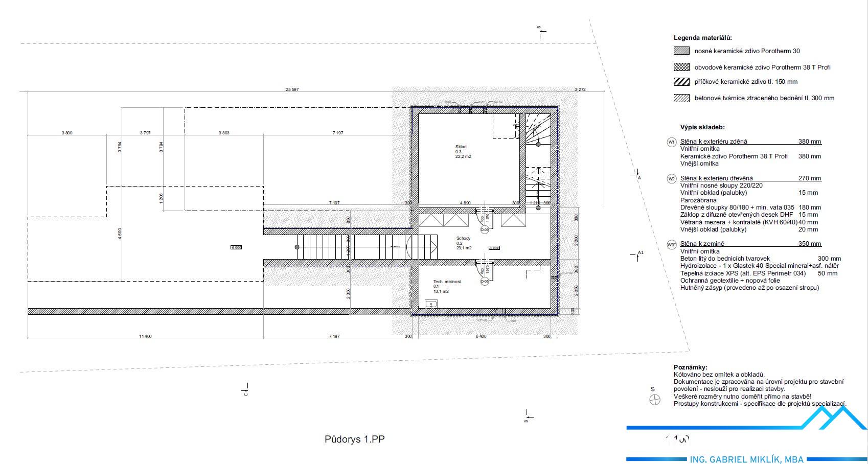
Pozemek 800m2 se zpracovanou projektovou dokumentací na ubytovací zařízení, se zahájenou výstavbou počínající ve 2.PP a dále s možností přenechání sousedních pozemků, které jsou v nájmu od obce Vrbovec, s možností budoucího jednání o odkoupení.
Projektová dokumentace je zpracovaná na ubytovací zařízení s možností pořádání oslav a akcí, s dvěmi podzemními podlažími (vinárna, lisovna) a jedním nadzemním podlažím (sál, kuchyně, předsálí atd.). Dále je zde počítáno s 6ti ubytovacími kontejnery, které by byly součástí svahu a byly napojeny na veškeré IS.
Pro všechny tyto informace uvedené výše, přikládáme v rámci fotogalerie veškeré půdorysy k nahlédnutí a bližší informace či termíny prohlídek budeme řešit s dalšími vážnými zájemci již v rámci osobní komunikace.
Pro případnou schůzku či další dotazy kontaktujte pana Ing. Miklíka, volat můžete kdykoliv, včetně víkendů a svátků.
Cena:
1 690 000 Kč
Poznámka:
- včetně zpracované projektové dokumentace a zahájené stavby
Pomocí naší hypoteční kalkulačky si můžete udělat orientační představu o výši měsíčních splátek hypotéky. O vše ostatní se pak postaráme my ve spolupráci s našimi obchodními partnery.
6 842 Kč
* Odhadovaná měsíční splátka vychází z výše úvěru Kč s pevnou úrokovou sazbou % po celou dobu trvání úvěru.
Uživatel serveru RealityMIX.cz (dále jen „Server“) dostupného na internetové adrese (URL) https://www.realitymix.cz, který provozuje společnost DALTEN media s.r.o., se sídlem Na Harfě 916/9a, Praha 9, 190 00, IČO: 271 35 306 (dále jen „Správce“) jako provozovateli tohoto Serveru uděluje svůj výslovný souhlas v souladu s ustanovením § 5 zákona č. 101/2000 Sb. O ochraně osobních údajů a o změně některých zákonů, v platném znění (dále jen „zákon o ochraně osobních údajů“), se zpracováním uživatelem poskytnutých osobních údajů a dalších dat.
Uživatel poskytuje Správci osobní údaje v rozsahu: jméno, příjmení, e-mailová adresa, telefonický kontakt a další data, a to z důvodu projeveného zájmu o nemovitost, kde prostřednictvím služby Serveru Správce osloví Uživatel inzerenta uvedeného v detailu
nemovitosti - Nemovitosti Znojmo - Ing. Gabriel Miklík (IČ 07425341) se zájmem o jeho služby.
Uživatel tyto osobní údaje poskytuje dobrovolně a bere na vědomí, že součástí služeb Správce, které Správce Uživateli poskytuje, je vyhledání všech Uživateli vyhovujících (dle parametrů - cena, typ nemovitosti, lokalita atd.) nemovitostí. Správce za tímto účelem provozuje aplikace Hlídací pes a newsletter. Tyto služby je možné z každého zaslaného emailu odhlásit. Souhlas se zpracováním osobních údajů Uživatel poskytuje Správci na dobu neurčitou s tím, že svůj udělený souhlas může Uživatel kdykoliv na drese správce info@realitymix.cz odvolat. Správce garantuje Uživateli i další práva uvedené v ustanovení §11 a §21 zákoba č. 101/200 Sb. Ve znění pozdějších předpisů.
Více informací o zpracování údajů získáte zde (realitymix.cz/zasady-ochrany-osobnich-udaju)