© 1999–2026 DALTEN media s.r.o.
Neváhejte a prohlédněte si náš ucelený katalog a kompletní výpis nabídek pro prodej a pronájem bytů 1+kk ve Středočeském kraji. Tisíce nabídek nemovitostí na jednom místě. Vybírejte z velkého množství denně aktualizovaných nemovitostí k prodeji a pronájmu. Váš nejlepší nástroj pro vyhledávání nemovitostí je doplněn fotogalerií a adresářem realitních kanceláří.
Podhradí, Bakov nad Jizerou, okr. Mladá Boleslav
Vodárenská, Mělník
Zahájení prodeje: 12. 02. 2026
Dokončení projektu: 01. 03. 2028
K nastěhování: 12. 02. 2026
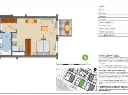
| Dispozice | Počet jednotek | Plocha | Cena |
| 1+kk | 1 | 38-38 m² | od 4 385 600 Kč |
Všetatská, Stará Boleslav, Brandýs nad Labem-Stará Boleslav, okr. Praha-východ
nám. Arnošta z Pardubic, Český Brod, okr. Kolín
Dřevčická, Brandýs nad Labem, Brandýs nad Labem-Stará Boleslav, okr. Praha-východ
Pražská, Čáslav-Nové Město, Čáslav, okr. Kutná Hora
Pražská, Čáslav-Nové Město, Čáslav, okr. Kutná Hora
Pražská, Čáslav-Nové Město, Čáslav, okr. Kutná Hora