RealityMIX.cz

Jihočeský

Jihomoravský

Karlovarský

Královéhradecký

Liberecký

Moravskoslezský

Olomoucký

Pardubický

Plzeňský

Středočeský

Ústecký

Vysočina

Zlínský

Cena

Plocha

   

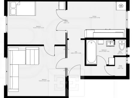
Byty 2+1 na prodej a pronájem v Praze 4

Najděte si u nás atraktivní byt 2+1 k prodeji nebo pronájmu v Praze 4. Bydlení v žádané a klidné lokalitě s vynikající dopravní dostupností do centra města. Nadstandardní bydlení, které svým umístěním zajištuje klid i příjemný výhled do okolí. Pokud v detailu nabídky chybí některé důležité informace, neváhejte kontaktovat makléře pomocí kontaktního formuláře v každém detailu.

reklama
reklama