© 1999–2026 DALTEN media s.r.o.
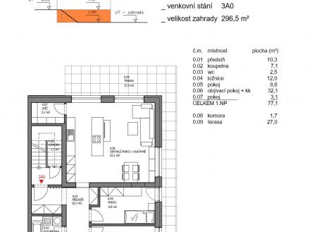
Náš server nabízí v oblasti prodeje a pronájmu bytů 4+kk mnoho možností, stačí si pouze vybrat ten, který vám bude vyhovovat nejvíce. Na prodej bytu jsme nejlepší! Pojďte se přesvědčit! Potřebujete poradit nebo máte zájem o prohlídku? Vyplňte formulář nebo volejte přímo makléři. Poskytne vám případně i radu při výběru hypotečního úvěru. Doplněno fotogalerií.
Dřevčická, Brandýs nad Labem, Brandýs nad Labem-Stará Boleslav, okr. Praha-východ
Dřevčická, Brandýs nad Labem, Brandýs nad Labem-Stará Boleslav, okr. Praha-východ