© 1999–2026 DALTEN media s.r.o.
Vyhledávání nemovitostí v kategorii Sklady k pronájmu - Praha. Vyberte si z naší nabídky nemovitostí, případně si upravte filtr vyhledávání.
Líbí se vám co vidíte?
Thámova, Praha 8, Karlín
Ve žlíbku, Praha 20, Horní Počernice
+420732865681
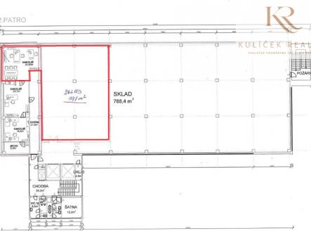
Ke Kablu, Praha-Dolní Měcholupy, Dolní Měcholupy
+420 605 172 214
Rodvinovská, Praha 4, Krč
+420 725 173 088
Starosti spojené s prodejem či pronájmem chci nechat na profesionály
Chci využít soukromé inzerce na portálu RealityMIX.cz
U továren, Praha 15, Hostivař
+420 776 876 526
Jindřicha Plachty, Praha 5, Smíchov
+420 777 849 089
Bořivojova, Praha 3, Vinohrady
+420 736 470 765
U nákladového nádraží, Praha 3
+420 603 890 569
K Červenému dvoru, Praha 3
296 399 006
Kolbenova, Praha 9, Vysočany
+420 770 195 560
Komořanská, Praha 12, Modřany
Na Jarově, Praha 3, Žižkov
Táboritská, Praha 3, Žižkov
777225563
Revoluční, Praha 1, Nové Město
U Michelského lesa, Praha 4, Michle
+420775069068
Průmyslová, Praha 10
+420 774 881 774
Dobronická, Praha-Kunratice, Kunratice
+420 775604602
K Bílému vrchu, Praha 20, Horní Počernice
+420 734 422 421
Ing. Stanislav Durchánek