© 1999–2026 DALTEN media s.r.o.
Vyhledávání nemovitostí v kategorii Brno-město. Vyberte si z naší nabídky nemovitostí, případně si upravte filtr vyhledávání.
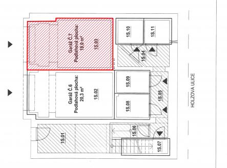
Líbí se vám co vidíte?
Náměstí, Brankovice, okr. Vyškov
Voroněžská, Brno-Žabovřesky, Brno
420777916390
Elplova, Brno-Líšeň, Brno
+420 725 888 897
Košinova, Brno-Královo Pole, Brno
Starosti spojené s prodejem či pronájmem chci nechat na profesionály
Chci využít soukromé inzerce na portálu RealityMIX.cz
Myslínova, Brno-Královo Pole, Brno
+420 725 422 155
Podnásepní, Brno-střed, Brno
Fuchsova, Brno-střed, Brno
+420 736 124 954
Provazníkova, Brno-sever, Brno
739207203
Okružní, Brno-sever, Brno
+420 226 254 111
Křížová, Brno-střed, Brno
+420 725 173 088
Kumpoštova, Brno-Královo Pole, Brno
777 259 569
Brno-Maloměřice a Obřany, Brno
800 10 30 10
Brno-Černovice, Brno
+420 734 799 447
Axmanova, Brno-Kohoutovice, Brno
+420 724 405 301
Ponětovická, Brno-Slatina, Brno
800100164
Brno
+420603201623
Brno-Řečkovice a Mokrá Hora, Brno
Za školou, Brno-jih, Brno
+420 774 007 899
Podruhova, Brno-Líšeň, Brno
Nad dědinou, Brno-Bystrc, Brno
777 949 122
Herčíkova, Brno-Královo Pole, Brno
420737764877
Martin Beňuš