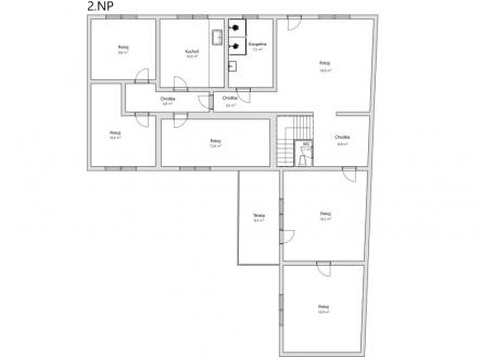
Dovoluji si nabídnout zprostředkování investiční příležitosti, prodeje dvoupatrového domu ve stavu nedokončené rekonstrukce s přízemním obchodním prostorem s výlohou nebo kanceláří, ordinací, skladem a dalšími dvěma bytovými jednotkami. Přízemí: velká místnost, sociální zázemí, užitná plocha 56 m2, 1 NP také užitná plocha 56 m2, byt o velikosti 2kk
a 2NP užitná plocha 70 m2 a byt o velikosti 2+1. V každém patře je koupelna a kuchyň zbudovaná před deseti lety. Dům se nachází v blízkosti hlavního autobusového a vlakového nádraží.
Vytápění domu zajišťoval plynový kotel, nyní je plyn zaslepen a je zde nachystáno pro klimatizaci. Střecha je nová, elektřina v mědi je nová, voda v plastu, voda obecní.
Celková rozloha pozemku 153 m2, stavba 58 m2, dvůr 44m2 a ostatní plocha 51 m2, dvůr uzavřen bránou. Vchod je vepředu pro kancelář/ordinaci, pro byty je autem vjezd vzadu s věcným břemenem chůze a jízdy, další vchod by šel vybudovat z boku.
Možnost různorodého zaměření na využití.
Koupě nemovitosti vhodná na investici pronájmu nebytových prostor a pronájmu bytových jednotek,
či spojení vlastního bydlení s podnikáním.
V případě zájmu pro bližší informace a domluvení si nezávazné prohlídky mne neváhejte kontaktovat
Pomocí naší hypoteční kalkulačky si můžete udělat orientační představu o výši měsíčních splátek hypotéky. O vše ostatní se pak postaráme my ve spolupráci s našimi obchodními partnery.
36 398 Kč
* Odhadovaná měsíční splátka vychází z výše úvěru Kč s pevnou úrokovou sazbou % po celou dobu trvání úvěru.
Uživatel serveru RealityMIX.cz (dále jen „Server“) dostupného na internetové adrese (URL) https://www.realitymix.cz, který provozuje společnost DALTEN media s.r.o., se sídlem Na Harfě 916/9a, Praha 9, 190 00, IČO: 271 35 306 (dále jen „Správce“) jako provozovateli tohoto Serveru uděluje svůj výslovný souhlas v souladu s ustanovením § 5 zákona č. 101/2000 Sb. O ochraně osobních údajů a o změně některých zákonů, v platném znění (dále jen „zákon o ochraně osobních údajů“), se zpracováním uživatelem poskytnutých osobních údajů a dalších dat.
Uživatel poskytuje Správci osobní údaje v rozsahu: jméno, příjmení, e-mailová adresa, telefonický kontakt a další data, a to z důvodu projeveného zájmu o nemovitost, kde prostřednictvím služby Serveru Správce osloví Uživatel inzerenta uvedeného v detailu
nemovitosti - AGENTURA ZVONEK sídlo firmy Zlín (IČ 26227967) se zájmem o jeho služby. Tato společnost je součástí seskupení/sítě/franšízového modelu realitních kanceláří, jejich seznam můžete zobrazit kliknutím na tento odkaz.
AGENTURA ZVONEK sídlo firmy Zlín (IČ 26227967) , AGENTURA ZVONEK Otrokovice (IČ 26227967) , AGENTURA ZVONEK Uherské Hradiště (IČ 26227967) , AGENTURA ZVONEK Vsetín (IČ 26227967) , AGENTURA ZVONEK Zlín (IČ 26227967) , AGENTURA ZVONEK Uherský Brod (IČ 26227967) , AGENTURA ZVONEK Bystřice pod Hostýnem (IČ 26227967) , AGENTURA ZVONEK (IČ 26227967)
Uživatel tyto osobní údaje poskytuje dobrovolně a bere na vědomí, že součástí služeb Správce, které Správce Uživateli poskytuje, je vyhledání všech Uživateli vyhovujících (dle parametrů - cena, typ nemovitosti, lokalita atd.) nemovitostí. Správce za tímto účelem provozuje aplikace Hlídací pes a newsletter. Tyto služby je možné z každého zaslaného emailu odhlásit. Souhlas se zpracováním osobních údajů Uživatel poskytuje Správci na dobu neurčitou s tím, že svůj udělený souhlas může Uživatel kdykoliv na drese správce info@realitymix.cz odvolat. Správce garantuje Uživateli i další práva uvedené v ustanovení §11 a §21 zákoba č. 101/200 Sb. Ve znění pozdějších předpisů.
Více informací o zpracování údajů získáte zde (realitymix.cz/zasady-ochrany-osobnich-udaju)