Nabízíme ke koupi moderní byt 3+kk o velikosti 52,21 m² ve 3. nadzemním podlaží novostavby v oblíbeném projektu Resort Malé Lipno. Tento byt představuje ideální volbu pro pohodlné bydlení i investici v atraktivní lokalitě.
Co tento byt nabízí?
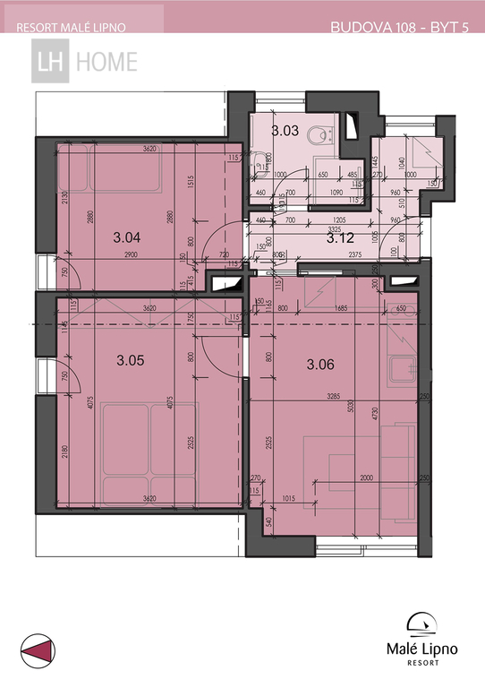
Praktická dispozice 3+kk – prostorný obývací pokoj s kuchyňským koutem a dvě samostatné ložnice
Moderní standard: vinylové podlahy, keramická dlažba, interiérové dveře s obložkami
Koupelna s kvalitní sanitou (sprchový kout, skříňka s umyvadlem, zrcadlo, závěsné WC a topný žebřík)
Podlahové vytápění pro komfortní bydlení
Byt je připraven k okamžitému nastěhování – ideální pro vlastní úpravy dle Vašich představ
Další benefity:
Byt zkolaudovaný ve 2Q 2023 – ihned k dispozici
Možnost dokoupení venkovního nebo podzemního parkovacího stání a sklepa
Lokalita:
Černá v Pošumaví – skvělá lokalita přímo u Lipenské přehrady. Ideální pro milovníky přírody, cykloturistiky, vodních sportů i zimních radovánek. V okolí jsou cyklostezky, pláže, běžkařské trasy a sjezdovky.
Skvělá investiční příležitost – vysoká poptávka po krátkodobém i dlouhodobém pronájmu.
Cena: 5 650 000 Kč včetně DPH
Kontaktujte nás pro více informací nebo domluvení prohlídky!
Cena:
Cena na vyžádání
Poznámka:
cena u makléře
Dispozice/podlahová plocha:
3+kk/52 m²
Číslo zakázky:
REALITYMIX-1708
Podrobné informace
Dispozice bytu:3+kk
Číslo podlaží v domě:3
Počet podlaží objektu:3
Užitná plocha:52 m²
Celková podlahová plocha:52 m²
Druh objektu:cihlová
Stav objektu:novostavba
Vlastnictví:osobní
Sklep:2 m²
Vybaveno:ano
Umístění objektu:centrum obce
Doprava:vlak, silnice, autobus
Voda:Zdroj pro celý objekt
Odpad:Kanalizace
Energetická náročnost budovy:C - Úsporná
Energetický ukazatel podle vyhlášky:č. 264/2020 Sb.
Uživatel serveru RealityMIX.cz (dále jen „Server“) dostupného na internetové adrese (URL) https://www.realitymix.cz, který provozuje společnost DALTEN media s.r.o., se sídlem Na Harfě 916/9a, Praha 9, 190 00, IČO: 271 35 306 (dále jen „Správce“) jako provozovateli tohoto Serveru uděluje svůj výslovný souhlas v souladu s ustanovením § 5 zákona č. 101/2000 Sb. O ochraně osobních údajů a o změně některých zákonů, v platném znění (dále jen „zákon o ochraně osobních údajů“), se zpracováním uživatelem poskytnutých osobních údajů a dalších dat.
Uživatel poskytuje Správci osobní údaje v rozsahu: jméno, příjmení, e-mailová adresa, telefonický kontakt a další data, a to z důvodu projeveného zájmu o nemovitost, kde prostřednictvím služby Serveru Správce osloví Uživatel inzerenta uvedeného v detailu
nemovitosti - Luxury Home Gamma (IČ 04970471) se zájmem o jeho služby.
Uživatel tyto osobní údaje poskytuje dobrovolně a bere na vědomí, že součástí služeb Správce, které Správce Uživateli poskytuje, je vyhledání všech Uživateli vyhovujících (dle parametrů - cena, typ nemovitosti, lokalita atd.) nemovitostí. Správce za tímto účelem provozuje aplikace Hlídací pes a newsletter. Tyto služby je možné z každého zaslaného emailu odhlásit. Souhlas se zpracováním osobních údajů Uživatel poskytuje Správci na dobu neurčitou s tím, že svůj udělený souhlas může Uživatel kdykoliv na drese správce info@realitymix.cz odvolat. Správce garantuje Uživateli i další práva uvedené v ustanovení §11 a §21 zákoba č. 101/200 Sb. Ve znění pozdějších předpisů.
Více informací o zpracování údajů získáte zde (realitymix.cz/zasady-ochrany-osobnich-udaju)