Prodej novostavby rodinného domu 5+kk, 120 m² ve výstavbě - Česká Kamenice
Prodej novostavby rodinného domu – Česká Kamenice
Představujeme vám jedinečnou příležitost ke koupi moderní novostavby samostatně stojícího rodinného domu v klidné části České Kamenice. Nemovitost se nachází na atraktivním okraji obce – v bezprostřední blízkosti přírody a zároveň s výbornou dostupností do centra města. Výstavba právě probíhá, plánované dokončení a kolaudace jsou stanoveny na 30. 4. 2026.
Bezpečný model financování
Prodávající garantuje kompletní dostavbu domu včetně terénních úprav a oplocení, a to dle schváleného projektu a přiložené vizualizace. Kupní cenu hradíte až po dokončení stavby a kolaudaci. Ve fázi výstavby je splatná pouze záloha ve výši 5 % z kupní ceny, a to na základě rezervační smlouvy a smlouvy o smlouvě budoucí kupní.
První ze dvou domů je již rezervován. Nyní máte možnost zakoupit druhý – za zvýhodněných podmínek.
Základní parametry domu
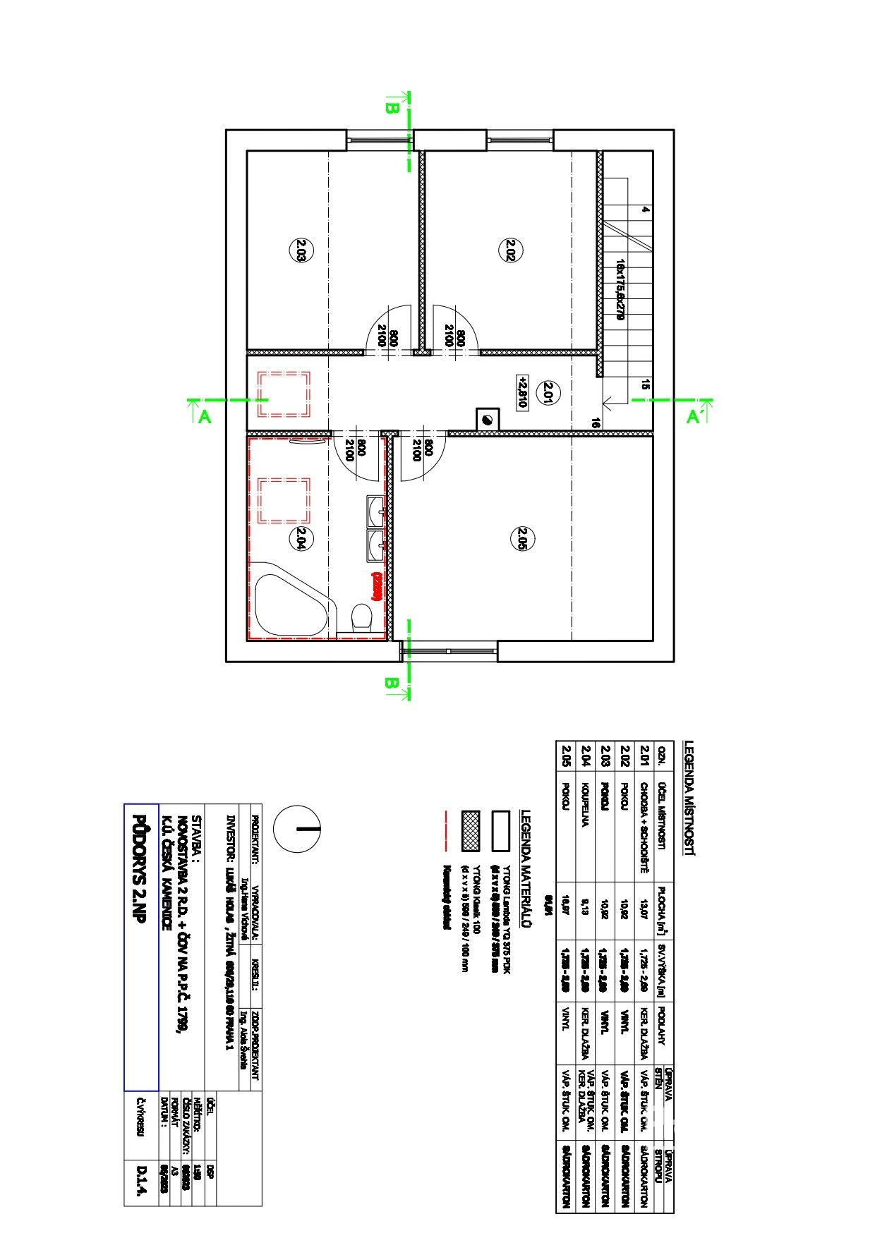
Dispozice: 5+kk
Zastavěná plocha: 76 m²
Užitná plocha: cca 120 m²
Pozemek: cca 850 m²
Vytápění: tepelné čerpadlo, podlahové topení
Energetická náročnost: třída B – velmi úsporná (dle PENB)
Střecha: sedlová, betonová taška
Zdivo: tvárnice Porfix
Okna: plastová s izolačním trojsklem
Podlahy: vinylová krytina
Dispozice a standardy
Každý dům nabízí:
Prostorný obývací pokoj s kuchyňským koutem
Tři ložnice
Pracovnu
Koupelnu
Samostatné WC
Technickou místnost
Zpevněnou plochu pro parkování dvou vozidel před domem
Dokončení proběhne ve vysokém standardu s důrazem na nízké provozní náklady, moderní technologie a funkční dispoziční řešení.
Výhody této nabídky
Krásná a klidná lokalita vhodná pro rodinný život
Moderní nízkoenergetický dům
Možnost ovlivnit finální podobu interiéru během výstavby
Výborná občanská vybavenost v docházkové vzdálenosti
Bezpečný model financování – platba až po kolaudaci
Dokumentace a financování
K nahlédnutí je připravena kompletní projektová dokumentace. Zájemcům rádi poskytneme také podmínky zvýhodněného financování při koupi ve fázi výstavby.
Pro více informací a domluvení schůzky nás neváhejte kontaktovat.
Pomocí naší hypoteční kalkulačky si můžete udělat orientační představu o výši měsíčních splátek hypotéky. O vše ostatní se pak postaráme my ve spolupráci s našimi obchodními partnery.
36 034 Kč
* Odhadovaná měsíční splátka vychází z výše úvěru Kč s pevnou úrokovou sazbou % po celou dobu trvání úvěru.
Uživatel serveru RealityMIX.cz (dále jen „Server“) dostupného na internetové adrese (URL) https://www.realitymix.cz, který provozuje společnost DALTEN media s.r.o., se sídlem Na Harfě 916/9a, Praha 9, 190 00, IČO: 271 35 306 (dále jen „Správce“) jako provozovateli tohoto Serveru uděluje svůj výslovný souhlas v souladu s ustanovením § 5 zákona č. 101/2000 Sb. O ochraně osobních údajů a o změně některých zákonů, v platném znění (dále jen „zákon o ochraně osobních údajů“), se zpracováním uživatelem poskytnutých osobních údajů a dalších dat.
Uživatel poskytuje Správci osobní údaje v rozsahu: jméno, příjmení, e-mailová adresa, telefonický kontakt a další data, a to z důvodu projeveného zájmu o nemovitost, kde prostřednictvím služby Serveru Správce osloví Uživatel inzerenta uvedeného v detailu
nemovitosti - Prosperity Financial Services a.s. (IČ 02745836) se zájmem o jeho služby. Tato společnost je součástí seskupení/sítě/franšízového modelu realitních kanceláří, jejich seznam můžete zobrazit kliknutím na tento odkaz.
Prosperity Living s.r.o. (IČ 23446731) , Prosperity Financial Services a.s. (IČ 02745836)
Uživatel tyto osobní údaje poskytuje dobrovolně a bere na vědomí, že součástí služeb Správce, které Správce Uživateli poskytuje, je vyhledání všech Uživateli vyhovujících (dle parametrů - cena, typ nemovitosti, lokalita atd.) nemovitostí. Správce za tímto účelem provozuje aplikace Hlídací pes a newsletter. Tyto služby je možné z každého zaslaného emailu odhlásit. Souhlas se zpracováním osobních údajů Uživatel poskytuje Správci na dobu neurčitou s tím, že svůj udělený souhlas může Uživatel kdykoliv na drese správce info@realitymix.cz odvolat. Správce garantuje Uživateli i další práva uvedené v ustanovení §11 a §21 zákoba č. 101/200 Sb. Ve znění pozdějších předpisů.
Více informací o zpracování údajů získáte zde (realitymix.cz/zasady-ochrany-osobnich-udaju)