Ve výhradním zastoupení nabízíme k prodeji krásnou novostavbu rodinného domu o dispozici 4+kk, situovanou v klidné části obce Prostřední Žleb, nedaleko vyhledávané přírodní oblasti Labské skály (tzv. Labák). Dům stojí na pozemku o výměře 103 m², přičemž k němu náleží rozlehlá zahrada o velikosti 750 m² – ideální pro relaxaci, pěstování i výstavbu terasy nebo pergoly.
Dispozice domu:
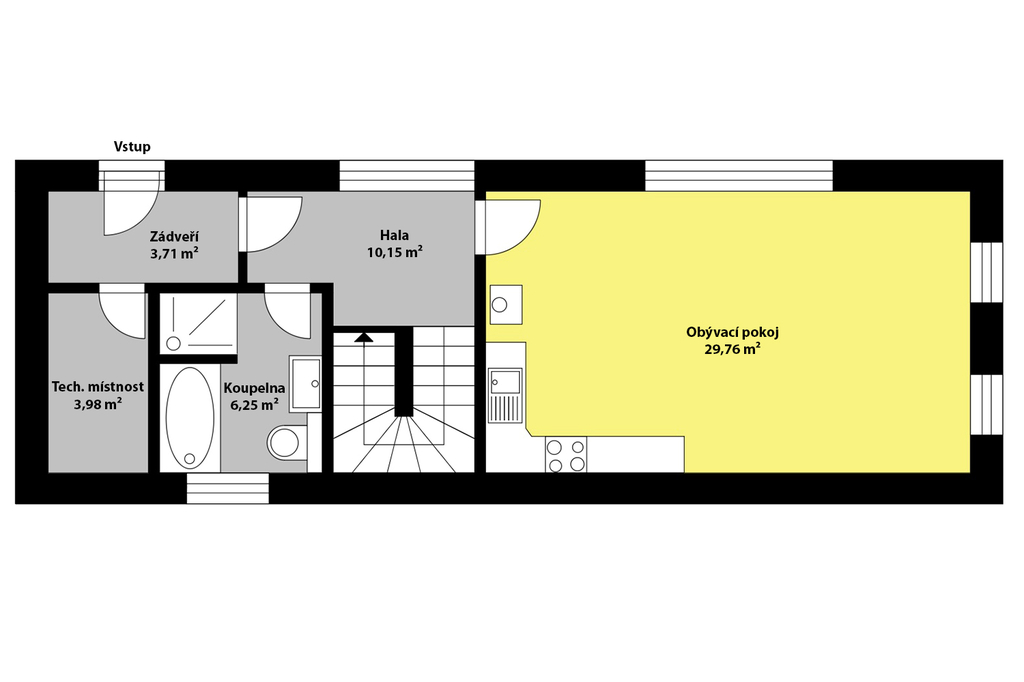
V přízemí se nachází vstupní předsíň, prostorná hala, koupelna a světlý obývací pokoj s kuchyňským koutem. Dominantou obývací části jsou krbová kamna s výměníkem, která zajišťují útulnou atmosféru a příjemné teplo v celém domě. Do patra vedou elegantní schody, odkud se vstupuje do ložnice, dětského pokoje a prostorné pracovny.
Velkým benefitem této nemovitosti je orientace všech obytných místností směrem do zeleně – hlavní okna i výhled z domu směřují do vlastní zahrady a na okolní přírodu, což zajišťuje absolutní soukromí, klid a krásné světelné podmínky po celý den.
Technické informace:
• Vytápění podlahovým topením napojeným na elektrokotel
• Krbová kamna s výměníkem, která vytopí celý dům
• Parkovací stání s možností postavit přístřešek až pro dvě auta
• Novostavba – bez nutnosti dalších investic
Lokalita:
Dům se nachází v tiché části Prostředního Žlebu, s výhledem do přírody a přímou blízkostí Labských skal – ideální pro milovníky přírody, turistiky, lezení či cyklistiky. Centrum Děčína je pohodlně dostupné během několika minut jízdy autem či vlakem.
Pomocí naší hypoteční kalkulačky si můžete udělat orientační představu o výši měsíčních splátek hypotéky. O vše ostatní se pak postaráme my ve spolupráci s našimi obchodními partnery.
28 139 Kč
* Odhadovaná měsíční splátka vychází z výše úvěru Kč s pevnou úrokovou sazbou % po celou dobu trvání úvěru.
Uživatel serveru RealityMIX.cz (dále jen „Server“) dostupného na internetové adrese (URL) https://www.realitymix.cz, který provozuje společnost DALTEN media s.r.o., se sídlem Na Harfě 916/9a, Praha 9, 190 00, IČO: 271 35 306 (dále jen „Správce“) jako provozovateli tohoto Serveru uděluje svůj výslovný souhlas v souladu s ustanovením § 5 zákona č. 101/2000 Sb. O ochraně osobních údajů a o změně některých zákonů, v platném znění (dále jen „zákon o ochraně osobních údajů“), se zpracováním uživatelem poskytnutých osobních údajů a dalších dat.
Uživatel poskytuje Správci osobní údaje v rozsahu: jméno, příjmení, e-mailová adresa, telefonický kontakt a další data, a to z důvodu projeveného zájmu o nemovitost, kde prostřednictvím služby Serveru Správce osloví Uživatel inzerenta uvedeného v detailu
nemovitosti - Pavlína Tučková (IČ 71195335 ) se zájmem o jeho služby. Tato společnost je součástí seskupení/sítě/franšízového modelu realitních kanceláří, jejich seznam můžete zobrazit kliknutím na tento odkaz.
Pavlína Tučková (IČ 71195335 ) , RaF - reality a finance (IČ 12013668 )
Uživatel tyto osobní údaje poskytuje dobrovolně a bere na vědomí, že součástí služeb Správce, které Správce Uživateli poskytuje, je vyhledání všech Uživateli vyhovujících (dle parametrů - cena, typ nemovitosti, lokalita atd.) nemovitostí. Správce za tímto účelem provozuje aplikace Hlídací pes a newsletter. Tyto služby je možné z každého zaslaného emailu odhlásit. Souhlas se zpracováním osobních údajů Uživatel poskytuje Správci na dobu neurčitou s tím, že svůj udělený souhlas může Uživatel kdykoliv na drese správce info@realitymix.cz odvolat. Správce garantuje Uživateli i další práva uvedené v ustanovení §11 a §21 zákoba č. 101/200 Sb. Ve znění pozdějších předpisů.
Více informací o zpracování údajů získáte zde (realitymix.cz/zasady-ochrany-osobnich-udaju)