Nabidka je již v REZERVACI. Nabízíme k prodeji víceúčelový dům v samotném centru Duchcova, na rohu ulic Osecká a Malinovského. Objekt je v katastru evidován jako stavba občanského vybavení čp. 967, což znamená velmi široké možnosti využití od podnikání v gastronomii, přes ubytovací služby, až po vlastní bydlení, případně jejich kombinaci. Tato variabilita výrazně zvyšuje atraktivitu nemovitosti nejen pro podnikatele, ale i pro investory a zájemce o vícegenerační či služební bydlení.
Popis nemovitosti
+ Lokalita: Centrum Duchcova, výborná dostupnost i viditelnost
+ Typ objektu: Stavba občanského vybavení vhodná pro podnikání, služby, ubytování i bydlení
+ Garáž: Vlastní garáž v areálu
+ Zastavěná plocha: 237,83 m
+ Celková užitná plocha 490 m2
+ Vlastní pozemek: 613 m2
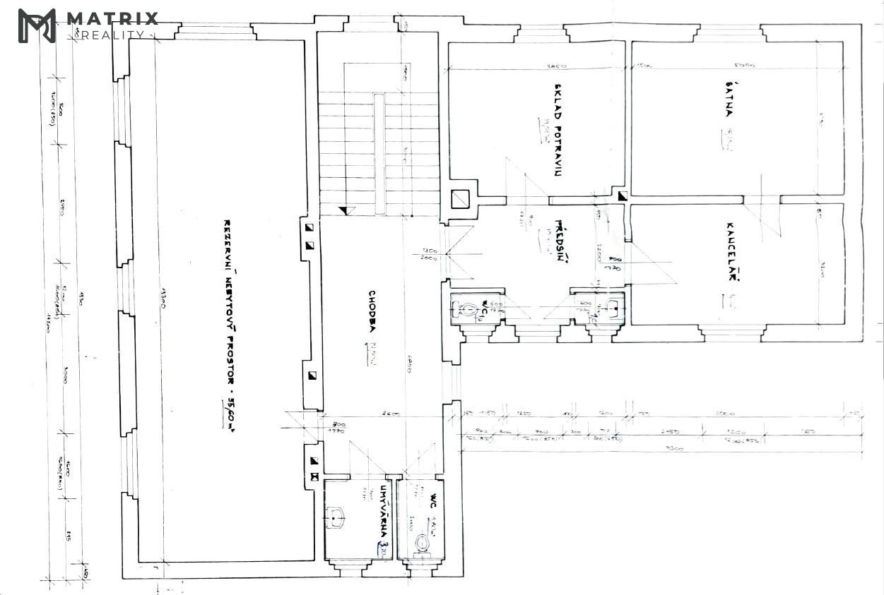
Dispozice:
+ Suterén: Skladové a provozní prostory
+ Přízemí: Restaurace, velký sál, kuchyně, sociální zařízení, samostatný prostor pro hernu, sklady
+ První patro: 4 pokoje (ubytování / rezidence), sociální zařízení, šatna, komora, sklad lůžkovin
+ Podkroví: Prostorná půda
Technické parametry:
+ Vytápění: Plynové
+ IS: Elektřina, vodovod, kanalizace, zemní plyn
+ Stav: Dům je průběžně udržován, přízemí plastová okna, patro špaletová, střešní krytina r. 2004
+ Venkovní úpravy: Dvě krytá posezení, upravené plochy, zeleň, plot
Další informace
+ Široké využití: Stabilní příjem z nájmu restaurace, možnost dlouhodobého i krátkodobého ubytování, či vlastní bydlení spojené s podnikáním
+ Komfort: Vlastní garáž, parkování na pozemku
+ Potenciál dalšího růstu: Objekt nabízí další zhodnocení modernizací nebo rozšířením služeb
Investiční potenciál a možnosti využití
Díky zápisu jako stavba občanského vybavení je možné propojit podnikání s bydlením či dlouhodobým ubytováním zaměstnanců, což dává domu nadstandardní flexibilitu. Po zohlednění minimálních investic do modernizace lze u této nemovitosti dosáhnout hrubé výnosnosti více jak 12% ročně. Konkrétní propočet závisí na zvoleném způsobu využití a rádi jej poskytneme při osobní prohlídce.
Tato nabídka je mimořádnou příležitostí pro investory, firmy i jednotlivce hledající spojení bydlení s podnikáním se zajímavým výnosem.
Pro více informací nebo sjednání prohlídky nás neváhejte kontaktovat.
Uživatel serveru RealityMIX.cz (dále jen „Server“) dostupného na internetové adrese (URL) https://www.realitymix.cz, který provozuje společnost DALTEN media s.r.o., se sídlem Na Harfě 916/9a, Praha 9, 190 00, IČO: 271 35 306 (dále jen „Správce“) jako provozovateli tohoto Serveru uděluje svůj výslovný souhlas v souladu s ustanovením § 5 zákona č. 101/2000 Sb. O ochraně osobních údajů a o změně některých zákonů, v platném znění (dále jen „zákon o ochraně osobních údajů“), se zpracováním uživatelem poskytnutých osobních údajů a dalších dat.
Uživatel poskytuje Správci osobní údaje v rozsahu: jméno, příjmení, e-mailová adresa, telefonický kontakt a další data, a to z důvodu projeveného zájmu o nemovitost, kde prostřednictvím služby Serveru Správce osloví Uživatel inzerenta uvedeného v detailu
nemovitosti - Matrix Reality a.s. (IČ 28170750) se zájmem o jeho služby.
Uživatel tyto osobní údaje poskytuje dobrovolně a bere na vědomí, že součástí služeb Správce, které Správce Uživateli poskytuje, je vyhledání všech Uživateli vyhovujících (dle parametrů - cena, typ nemovitosti, lokalita atd.) nemovitostí. Správce za tímto účelem provozuje aplikace Hlídací pes a newsletter. Tyto služby je možné z každého zaslaného emailu odhlásit. Souhlas se zpracováním osobních údajů Uživatel poskytuje Správci na dobu neurčitou s tím, že svůj udělený souhlas může Uživatel kdykoliv na drese správce info@realitymix.cz odvolat. Správce garantuje Uživateli i další práva uvedené v ustanovení §11 a §21 zákoba č. 101/200 Sb. Ve znění pozdějších předpisů.
Více informací o zpracování údajů získáte zde (realitymix.cz/zasady-ochrany-osobnich-udaju)