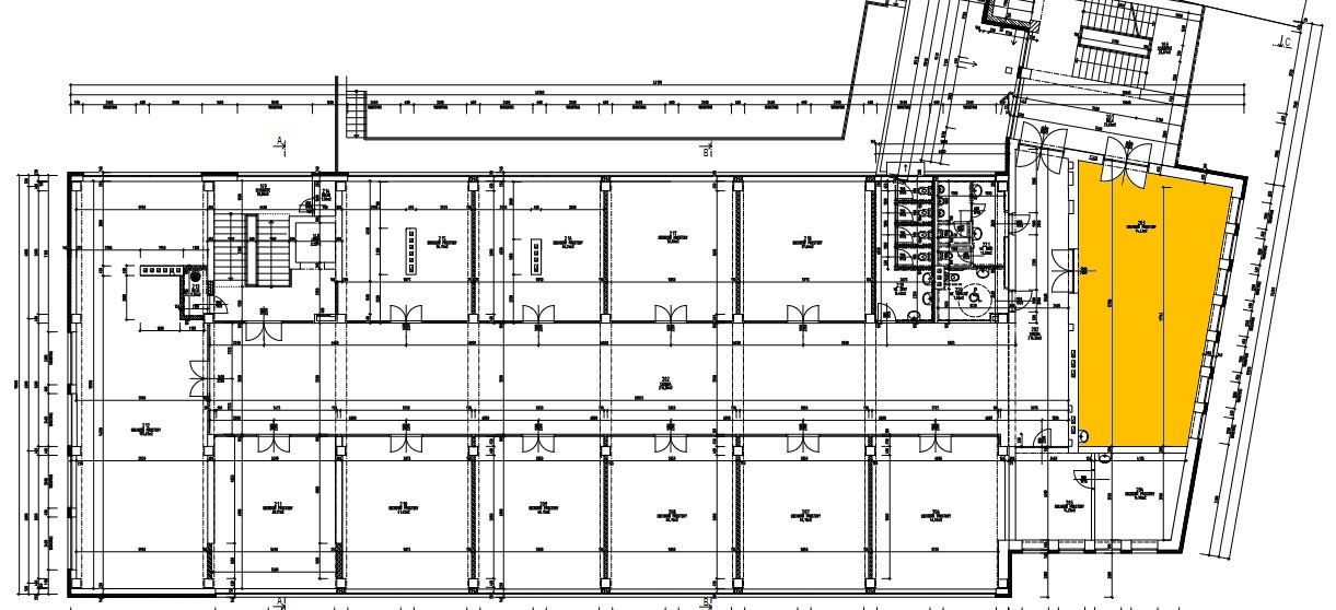
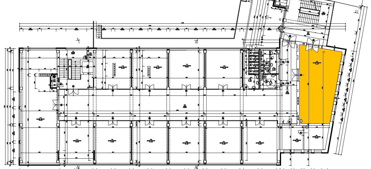
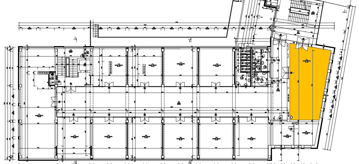
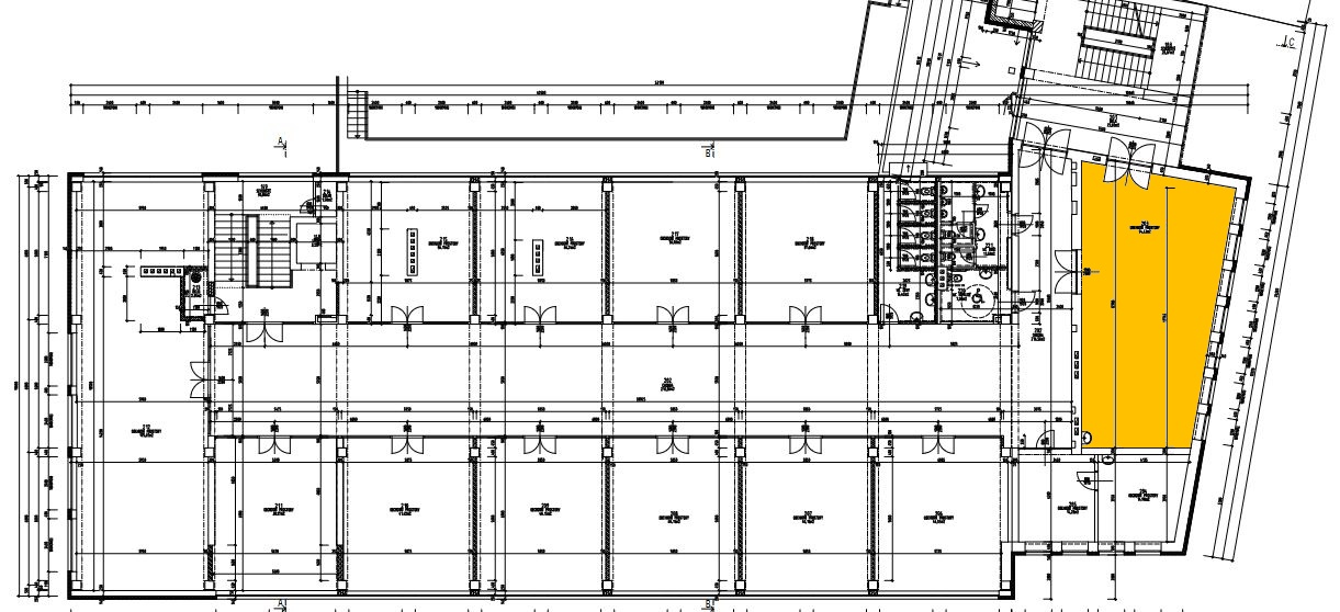
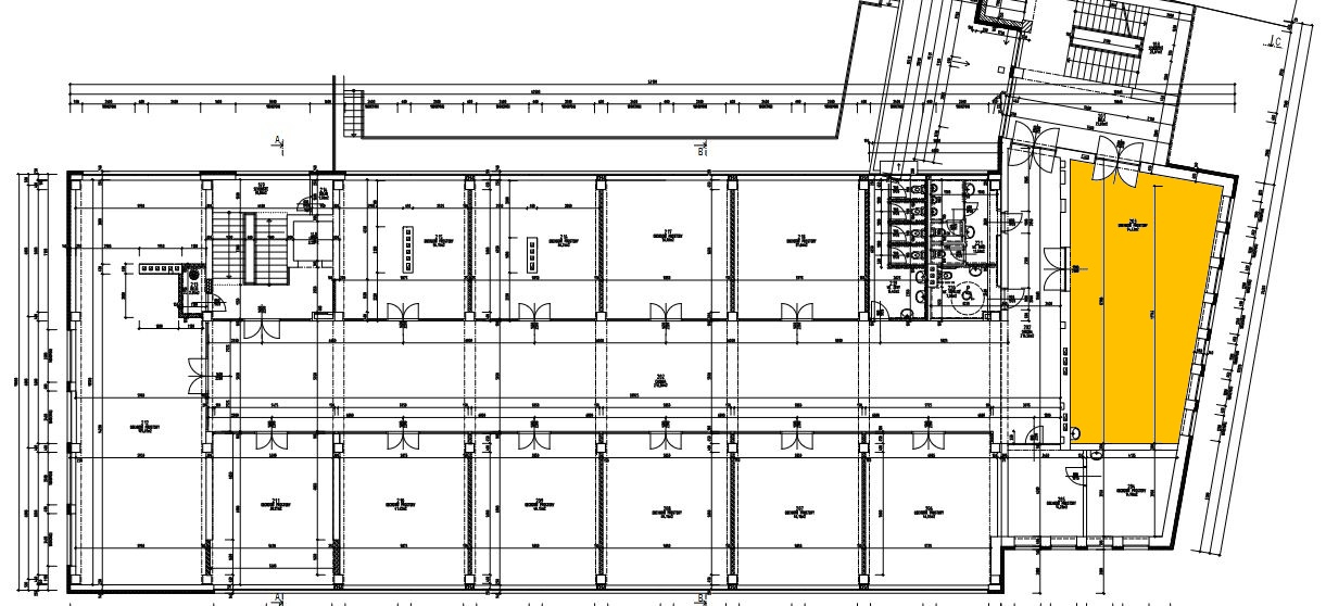
Pronájem obchodní jednotky v právě rekonstruované budově e-Fi galerie v Jihlavě. Frekventované místo blízko centra. Parkování zajištěno u objektu.Výtah, WC, internet, úklid zajištěn. Nabízíme pronájem obchodní jednotky v prvním patře rekonstruované budovy e-Fi galerie na adrese Žižkova 13, Jihlava.
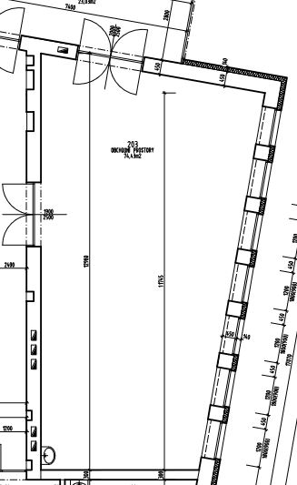
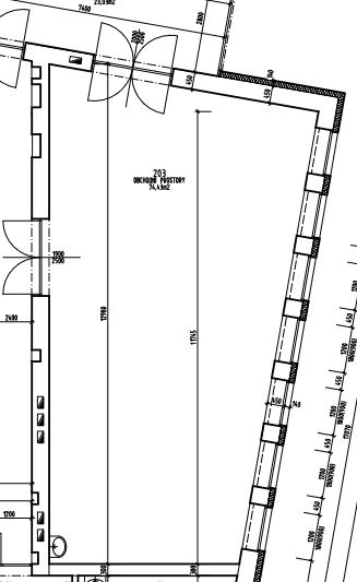
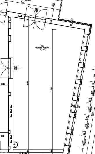
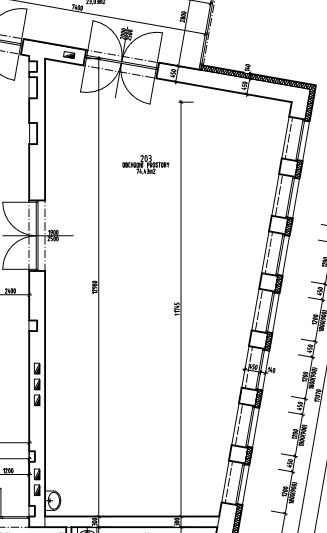
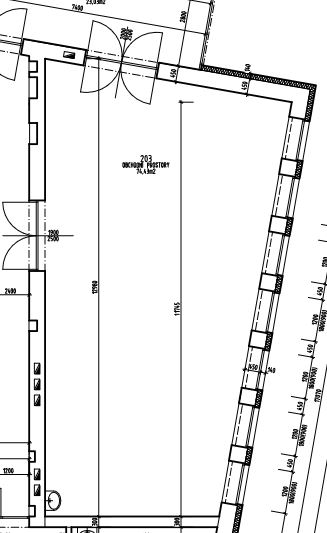
Nabízená obchodní jednotka je o výměře 74,49 m2.
V rámci rekonstrukce a opravy budovy zde vznikl nový osobní výtah, byla provedena výměna oken, zateplení pláště budovy, podlahové topení, vlastní parkoviště ve dvorní části budovy.
V jednotce je možné provozovat jak obchodní a kancelářskou činnost, tak i služby jako kosmetika, tetovací salón, nechtařské studio apod.
Celková cena pronájmu je 29.621,- Kč za měsíc, včetně energií (vlastní elektroměr) a služeb.
Vratná kauce 1x měsíční nájem.
Neplatíte provizi RK!!
Rezervujte si pronájem obchodních jednotek a zajistěte si tak ten nejvhodnější prostor pro Vaše podnikání!!!
Na rozjezd Vašeho podnikání Vám na první měsíc slevíme 100% nájemného!!!
V budově jsou k pronájmu volné i další kancelářské, nebo obchodní prostory. Bližší informace u makléře zakázky.
Uživatel serveru RealityMIX.cz (dále jen „Server“) dostupného na internetové adrese (URL) https://www.realitymix.cz, který provozuje společnost DALTEN media s.r.o., se sídlem Na Harfě 916/9a, Praha 9, 190 00, IČO: 271 35 306 (dále jen „Správce“) jako provozovateli tohoto Serveru uděluje svůj výslovný souhlas v souladu s ustanovením § 5 zákona č. 101/2000 Sb. O ochraně osobních údajů a o změně některých zákonů, v platném znění (dále jen „zákon o ochraně osobních údajů“), se zpracováním uživatelem poskytnutých osobních údajů a dalších dat.
Uživatel poskytuje Správci osobní údaje v rozsahu: jméno, příjmení, e-mailová adresa, telefonický kontakt a další data, a to z důvodu projeveného zájmu o nemovitost, kde prostřednictvím služby Serveru Správce osloví Uživatel inzerenta uvedeného v detailu
nemovitosti - e-Finance, a.s. (IČ 26272504) se zájmem o jeho služby.
Uživatel tyto osobní údaje poskytuje dobrovolně a bere na vědomí, že součástí služeb Správce, které Správce Uživateli poskytuje, je vyhledání všech Uživateli vyhovujících (dle parametrů - cena, typ nemovitosti, lokalita atd.) nemovitostí. Správce za tímto účelem provozuje aplikace Hlídací pes a newsletter. Tyto služby je možné z každého zaslaného emailu odhlásit. Souhlas se zpracováním osobních údajů Uživatel poskytuje Správci na dobu neurčitou s tím, že svůj udělený souhlas může Uživatel kdykoliv na drese správce info@realitymix.cz odvolat. Správce garantuje Uživateli i další práva uvedené v ustanovení §11 a §21 zákoba č. 101/200 Sb. Ve znění pozdějších předpisů.
Více informací o zpracování údajů získáte zde (realitymix.cz/zasady-ochrany-osobnich-udaju)