Prodej rodinného domu se zahradou v oblíbené části Kladna – Habešovna
Nabízíme prostorný rodinný dům se zahradou v oblíbené části Kladna – Habešovna
Toužíte po vlastním domě se zahradou v lokalitě, kde máte vše na dosah ruky, a přesto si můžete užívat klid a soukromí?
Přesně to nabízí tato jedinečná nemovitost v prestižní kladenské čtvrti Habešovna.
Klidné zázemí v srdci města.
Za domem se nachází krásná zahrada o rozloze 272 m², která nabízí prostor pro odpočinek, grilování s přáteli či pěstování vlastní zeleniny — a to vše jen pár kroků od centra města.
Perfektní poloha s veškerou občanskou vybaveností.
Habešovna patří k nejvyhledávanějším lokalitám v Kladně. V docházkové vzdálenosti najdete:
školy a školky,
nákupní centrum Central Kladno, supermarkety, kavárny i restaurace,
sportovní areály Sletiště, aquapark, zimní stadion a fitness centra,
lesopark Lapák a Sítenské údolí pro procházky a sportovní vyžití.
Díky výbornému dopravnímu spojení se rychle dostanete do Prahy – dálnice D6 je jen pár minut jízdy, na letišti jste za cca 15 minut a metro Veleslavín je dostupné za 25 minut.
Dům s charakterem – připravený na modernizaci
Nemovitost byla postavena v roce 1924 a nese v sobě kouzlo dobové architektury. Je plně obyvatelná, zároveň však nabízí skvělou příležitost k rekonstrukci podle vašich představ.
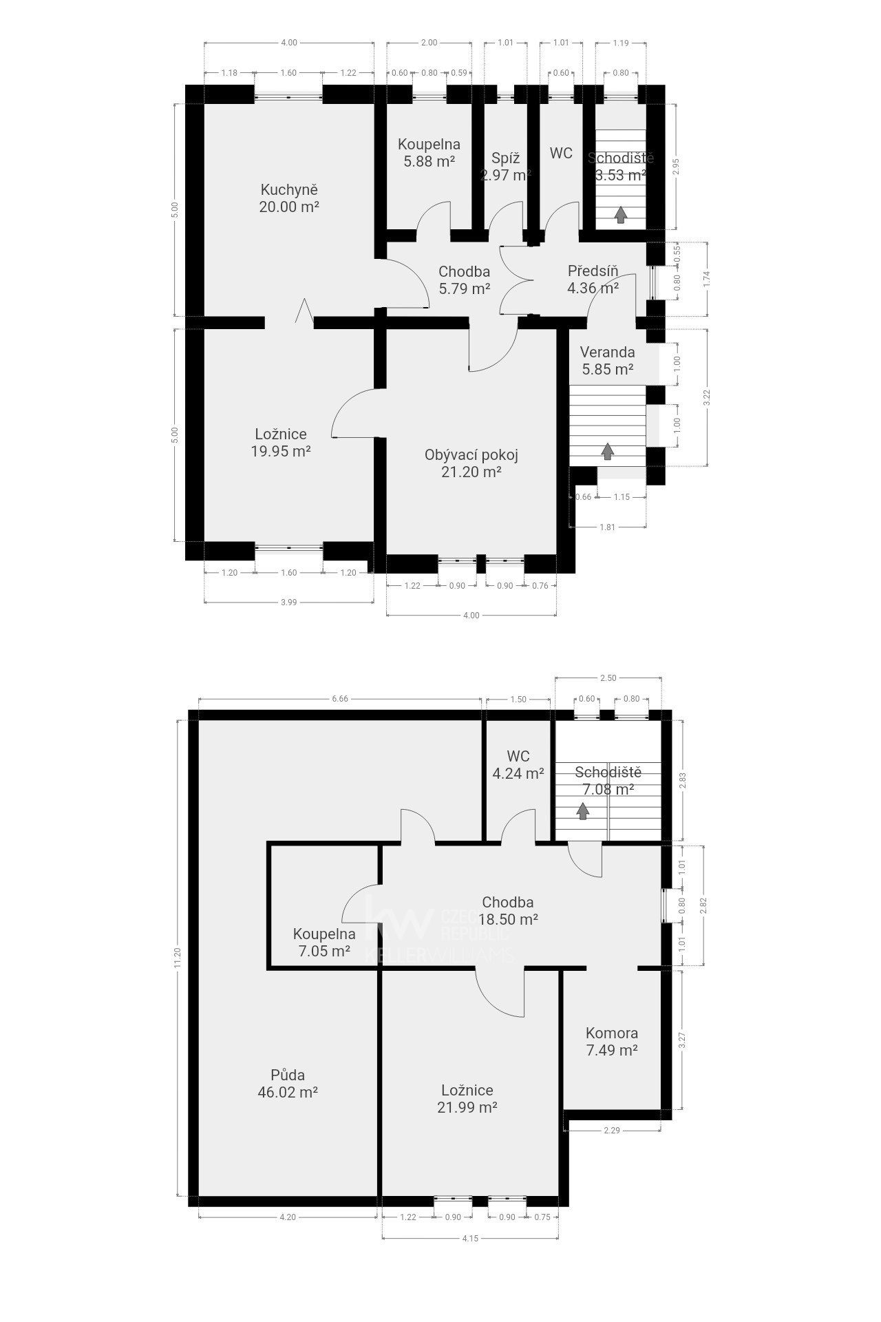
Dispozice domu:
Přízemí (86 m²): prostorný obývací pokoj, ložnice, kuchyně, koupelna, WC, spíž, předsíň se vstupem do sklepa a do patra
Patro (59 m²): ložnice, koupelna, WC, chodba + půda 46 m² vhodná pro vestavbu dalších pokojů
Sklep (18 m²): ideální pro skladování či vinotéku
Garáž (25 m²)
Dvůr s dvěma dílnami nebo kůlnami – praktický prostor pro kutily nebo uskladnění
Pro koho je dům vhodný
pro rodiny, které chtějí pohodlné bydlení se zahradou a kompletní občanskou vybaveností v dosahu
pro ty, kteří hledají dům s potenciálem a chtějí si vytvořit domov přesně podle vlastních představ
Shrnutí
Tato nemovitost představuje dokonalou rovnováhu mezi městským komfortem a soukromím. Nabízí velkorysý pozemek, skvělou lokalitu a příležitost vytvořit si vysněné bydlení.
Kontaktujte nás a domluvte si prohlídku – možná právě tento dům se stane vaším novým domovem.
Veškeré zveřejněné údaje obsažené v tomto inzerátu mají pouze informativní charakter a nejsou nabídkou ve smyslu § 1731 nebo § 1732 občanského zákoníku, ani se nejedná o veřejný příslib dle § 1733 občanského zákoníku. Z této nabídky tak nikomu nevzniká nárok na uzavření smlouvy. Společnost Keller Williams Czech Republic zprostředkovává údaje (informace) nabyté v dobré víře od vlastníka nemovité věci a z tohoto důvodu nenese odpovědnost ze jejich úplnost, správnost a přesnost.
Pomocí naší hypoteční kalkulačky si můžete udělat orientační představu o výši měsíčních splátek hypotéky. O vše ostatní se pak postaráme my ve spolupráci s našimi obchodními partnery.
40 447 Kč
* Odhadovaná měsíční splátka vychází z výše úvěru Kč s pevnou úrokovou sazbou % po celou dobu trvání úvěru.
Uživatel serveru RealityMIX.cz (dále jen „Server“) dostupného na internetové adrese (URL) https://www.realitymix.cz, který provozuje společnost DALTEN media s.r.o., se sídlem Na Harfě 916/9a, Praha 9, 190 00, IČO: 271 35 306 (dále jen „Správce“) jako provozovateli tohoto Serveru uděluje svůj výslovný souhlas v souladu s ustanovením § 5 zákona č. 101/2000 Sb. O ochraně osobních údajů a o změně některých zákonů, v platném znění (dále jen „zákon o ochraně osobních údajů“), se zpracováním uživatelem poskytnutých osobních údajů a dalších dat.
Uživatel poskytuje Správci osobní údaje v rozsahu: jméno, příjmení, e-mailová adresa, telefonický kontakt a další data, a to z důvodu projeveného zájmu o nemovitost, kde prostřednictvím služby Serveru Správce osloví Uživatel inzerenta uvedeného v detailu
nemovitosti - Keller Williams Czech Republic (IČ 07796340) se zájmem o jeho služby. Tato společnost je součástí seskupení/sítě/franšízového modelu realitních kanceláří, jejich seznam můžete zobrazit kliknutím na tento odkaz.
Keller Williams Czech Republic (IČ 07796340) , Nemovito by Keller Williams (IČ 10826971) , Keller Williams Czech Republic (IČ 07796340) , Keller Williams - centrála (IČ 06521924)
Uživatel tyto osobní údaje poskytuje dobrovolně a bere na vědomí, že součástí služeb Správce, které Správce Uživateli poskytuje, je vyhledání všech Uživateli vyhovujících (dle parametrů - cena, typ nemovitosti, lokalita atd.) nemovitostí. Správce za tímto účelem provozuje aplikace Hlídací pes a newsletter. Tyto služby je možné z každého zaslaného emailu odhlásit. Souhlas se zpracováním osobních údajů Uživatel poskytuje Správci na dobu neurčitou s tím, že svůj udělený souhlas může Uživatel kdykoliv na drese správce info@realitymix.cz odvolat. Správce garantuje Uživateli i další práva uvedené v ustanovení §11 a §21 zákoba č. 101/200 Sb. Ve znění pozdějších předpisů.
Více informací o zpracování údajů získáte zde (realitymix.cz/zasady-ochrany-osobnich-udaju)