Skladovací hala s kancelářským zázemím 1 300 m² – Luby u Chebu
Hledáte prostor, který můžete využít pro skladování a logistiku, nebo investici s ročním výnosem okolo 9 %? Tato zrekonstruovaná hala v Lubech u Chebu nabízí hotové technologie i strategickou polohu blízko německých hranic.
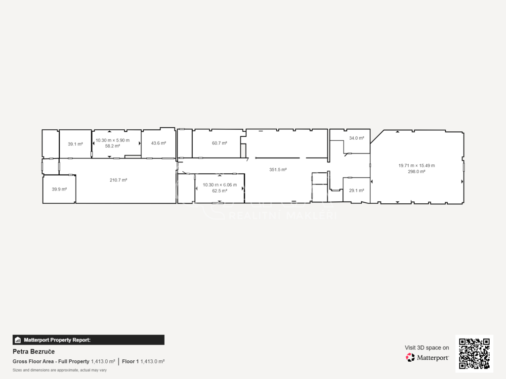
Dispozice a široké možnosti využití:
Budova poskytuje celkovou užitnou plochu 1 700 m². V prvním nadzemním podlaží získáte 1 300 m² volného prostoru (včetně rekonstruovaného prostoru kanceláří s kuchyňským koutem), zatímco v suterénu se nachází 400 m² včetně opraveného sociálního zázemí (oddělené šatny se sprchou a WC pro muže a ženy). Prostor je ideální nejen pro lehkou výrobu, montáž a klasické skladování, ale díky své poloze a velikosti skvěle poslouží i jako logistické centrum, e-commerce fulfillment, servis strojů a zařízení nebo prodejní showroom.
Technické parametry a úspory:
Nemusíte řešit nákladné rekonstrukce, klíčové technologie jsou již hotové. K dispozici je nová elektroinstalace s dostatečnou kapacitou (nová rozvodna příkon 3 × 160 A, sazba C02D), nové rozvody vody i kanalizace napojené na čističku v areálu. O vytápění se stará nový kotel na tuhá paliva s možností využití vlastních briket, přičemž systém je stavebně připraven i na případné napojení tepelného čerpadla. Stropy s výškou 3,8 m jsou zateplené foukanou izolací (25–30 cm) pro lepší tepelný komfort, přičemž zbývá dokončit jen zhruba třetinu haly. Objekt má nová plastová okna a fasáda je připravena na zateplení (ideální pro čerpání dotací v kombinaci s fotovoltaikou).
Přístup a logistika:
Hala disponuje novými elektrickými vjezdovými vraty (2,94 × 3,3 m) a dalšími dvěma vraty na koncích budovy s možností využití nákladové rampy. Pohodlný příjezd je zajištěn přímo z místní komunikace s bezproblémovým parkováním v areálu a možností dalšího rozšíření zpevněných ploch podél budovy.
Strategická lokalita:
Bývalý areál STRUNA leží pouhých 25 km od Chebu s rychlým napojením na dálnici D6 směr Praha a 18 km od mezinárodního tahu E49. Je to ideální odrazový můstek pro byznys s dosahem do celého Německa.
Pro investory:
Při aktuální kupní ceně 6 790 000 Kč a lokálním tržním nájemném generuje nemovitost atraktivní potenciální roční výnos z pronájmu okolo 9 %.
Areál v Lubech má strategickou polohu nedaleko německých hranic, což z něj činí ideální místo pro výrobu, skladování či logistiku s mezinárodním dosahem.
V případě zájmu nás neváhejte kontaktovat, rádi vám areál ukážeme.
Pomocí naší hypoteční kalkulačky si můžete udělat orientační představu o výši měsíčních splátek hypotéky. O vše ostatní se pak postaráme my ve spolupráci s našimi obchodními partnery.
27 491 Kč
* Odhadovaná měsíční splátka vychází z výše úvěru Kč s pevnou úrokovou sazbou % po celou dobu trvání úvěru.
Uživatel serveru RealityMIX.cz (dále jen „Server“) dostupného na internetové adrese (URL) https://www.realitymix.cz, který provozuje společnost DALTEN media s.r.o., se sídlem Na Harfě 916/9a, Praha 9, 190 00, IČO: 271 35 306 (dále jen „Správce“) jako provozovateli tohoto Serveru uděluje svůj výslovný souhlas v souladu s ustanovením § 5 zákona č. 101/2000 Sb. O ochraně osobních údajů a o změně některých zákonů, v platném znění (dále jen „zákon o ochraně osobních údajů“), se zpracováním uživatelem poskytnutých osobních údajů a dalších dat.
Uživatel poskytuje Správci osobní údaje v rozsahu: jméno, příjmení, e-mailová adresa, telefonický kontakt a další data, a to z důvodu projeveného zájmu o nemovitost, kde prostřednictvím služby Serveru Správce osloví Uživatel inzerenta uvedeného v detailu
nemovitosti - QARA s.r.o. (IČ 01740113) se zájmem o jeho služby. Tato společnost je součástí seskupení/sítě/franšízového modelu realitních kanceláří, jejich seznam můžete zobrazit kliknutím na tento odkaz.
QARA s.r.o. Ostrava (IČ 01740113) , QARA s.r.o. Brno (IČ 01740113) , QARA s.r.o. (IČ 01740113)
Uživatel tyto osobní údaje poskytuje dobrovolně a bere na vědomí, že součástí služeb Správce, které Správce Uživateli poskytuje, je vyhledání všech Uživateli vyhovujících (dle parametrů - cena, typ nemovitosti, lokalita atd.) nemovitostí. Správce za tímto účelem provozuje aplikace Hlídací pes a newsletter. Tyto služby je možné z každého zaslaného emailu odhlásit. Souhlas se zpracováním osobních údajů Uživatel poskytuje Správci na dobu neurčitou s tím, že svůj udělený souhlas může Uživatel kdykoliv na drese správce info@realitymix.cz odvolat. Správce garantuje Uživateli i další práva uvedené v ustanovení §11 a §21 zákoba č. 101/200 Sb. Ve znění pozdějších předpisů.
Více informací o zpracování údajů získáte zde (realitymix.cz/zasady-ochrany-osobnich-udaju)