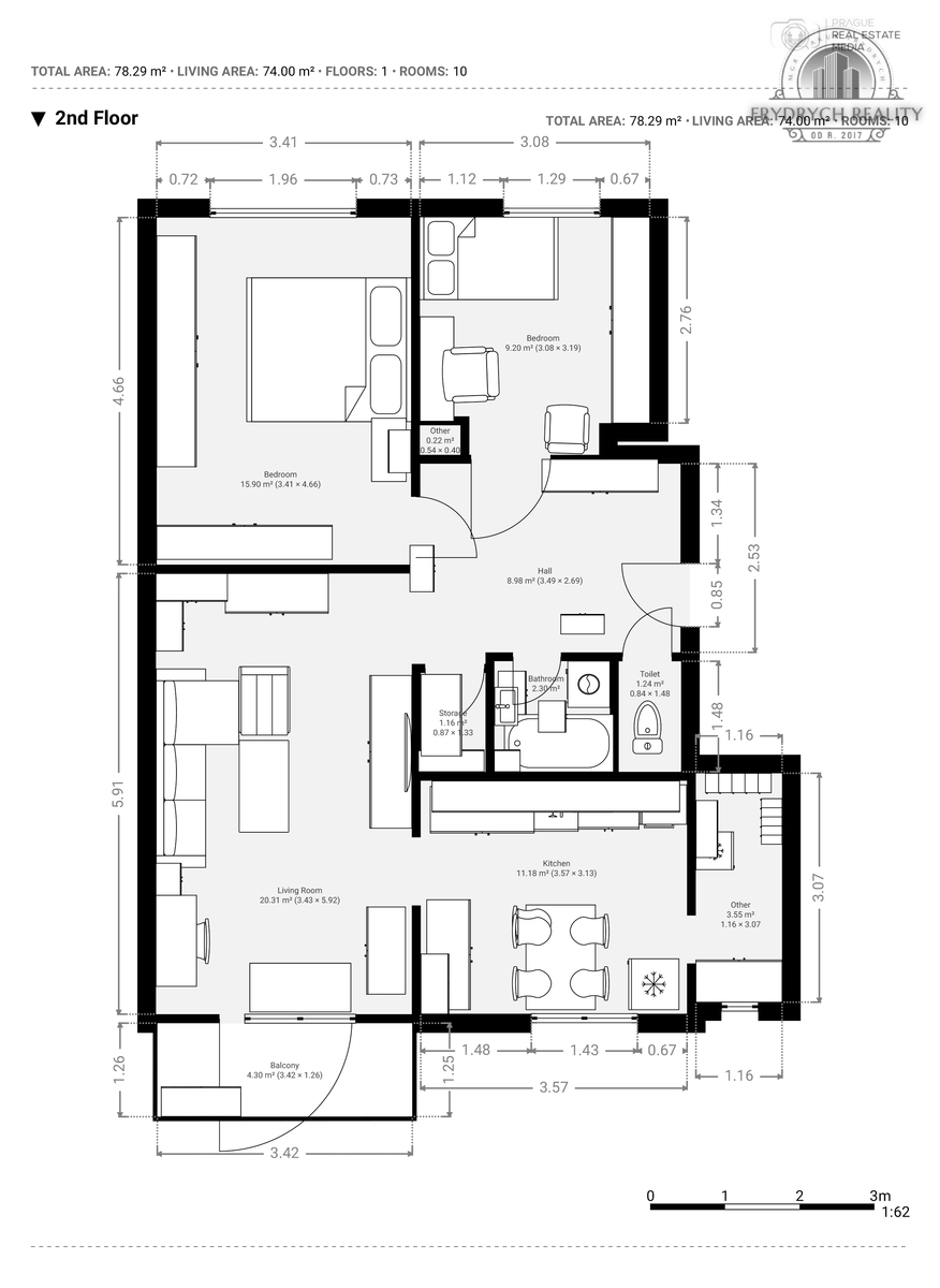
Byt 3+1 s lodžií, garáží a vlastní zahrádkou s bazénem.
Panelová bytovka bez výtahu, kde se nachází 7 bytů.
Byt je v 2. nadzemním podlaží - dispozice 3+1 a cca 92 m², k tomu lodžie, sklep, kotelna a hlavně garáž v přízemí domu.
Byt je v udržovaném původním stavu. Bydleli tu čtyři lidé, nyní dva a byt je plně funkční.
Výhody:
- Lodžie v obývacím pokoji je orientovaná na jih stejně jako kuchyně. Ložnice směřují na sever.
- Garáž v přízemí znamená dost velký sklad a nebo parkování pod střechou.
- K bytu patří sklad a kotelna, tedy dalších cca 10-12 m² .
- Podíl na pozemku kolem domu znamená 247 m² vlastního prostoru – současní majitelé jej využívají jako zahrádku s bazénem.
Zdroj tepla je řešený kotlem na tuhá paliva ve sklepě, který ohřívá i vodu v zásobníku. Ten se umí dohřívat také elektrickým bojlerem.
Roční náklady na topení se dle majitelů pohybují kolem 20.000 Kč.
Fond oprav cca 1250 Kč.
Celkové náklady pro čtyřčlennou domácnost byly kolem 6 tisíc.
Dům je v dojezdové vzdálenosti od Mělníka (cca 30 minut autem nebo autobusem) a do Prahy se dostanete zhruba 30–50 minut podle zvolené trasy a dopravy.
Pomocí naší hypoteční kalkulačky si můžete udělat orientační představu o výši měsíčních splátek hypotéky. O vše ostatní se pak postaráme my ve spolupráci s našimi obchodními partnery.
21 256 Kč
* Odhadovaná měsíční splátka vychází z výše úvěru Kč s pevnou úrokovou sazbou % po celou dobu trvání úvěru.
Prodáváte nemovitost a potřebujete zjistit její reálnou hodnotu?
Uživatel serveru RealityMIX.cz (dále jen „Server“) dostupného na internetové adrese (URL) https://www.realitymix.cz, který provozuje společnost DALTEN media s.r.o., se sídlem Na Harfě 916/9a, Praha 9, 190 00, IČO: 271 35 306 (dále jen „Správce“) jako provozovateli tohoto Serveru uděluje svůj výslovný souhlas v souladu s ustanovením § 5 zákona č. 101/2000 Sb. O ochraně osobních údajů a o změně některých zákonů, v platném znění (dále jen „zákon o ochraně osobních údajů“), se zpracováním uživatelem poskytnutých osobních údajů a dalších dat.
Uživatel poskytuje Správci osobní údaje v rozsahu: jméno, příjmení, e-mailová adresa, telefonický kontakt a další data, a to z důvodu projeveného zájmu o nemovitost, kde prostřednictvím služby Serveru Správce osloví Uživatel inzerenta uvedeného v detailu
nemovitosti - Frydrych reality (IČ 14376571) se zájmem o jeho služby.
Uživatel tyto osobní údaje poskytuje dobrovolně a bere na vědomí, že součástí služeb Správce, které Správce Uživateli poskytuje, je vyhledání všech Uživateli vyhovujících (dle parametrů - cena, typ nemovitosti, lokalita atd.) nemovitostí. Správce za tímto účelem provozuje aplikace Hlídací pes a newsletter. Tyto služby je možné z každého zaslaného emailu odhlásit. Souhlas se zpracováním osobních údajů Uživatel poskytuje Správci na dobu neurčitou s tím, že svůj udělený souhlas může Uživatel kdykoliv na drese správce info@realitymix.cz odvolat. Správce garantuje Uživateli i další práva uvedené v ustanovení §11 a §21 zákoba č. 101/200 Sb. Ve znění pozdějších předpisů.
Více informací o zpracování údajů získáte zde (realitymix.cz/zasady-ochrany-osobnich-udaju)